New Homes » Kanto » Kanagawa Prefecture » Yokohama Isogo-ku
 
| | Yokohama, Kanagawa Prefecture Isogo-ku, 神奈川県横浜市磯子区 |
| Blue Line "Yoshino-cho" walk 17 minutes ブルーライン「吉野町」歩17分 |
| Isogo-ku, is the emergence of newly built single-family to Maruyama 1-chome 磯子区丸山1丁目に新築戸建の登場です |
| South wide balcony, It is a property with a feeling of opening of the front road public road 6m. Also it is also attractive for there LDK18 quires more. Other details, Document request, Reservation of guidance, please feel free to contact us. 南側ワイドバルコニー、前面道路公道6mの開放感のある物件です。LDK18帖以上も有るのも魅力的です。その他詳細、資料請求、ご案内のご予約はお気軽にお問合せ下さい。 |
Features pickup 特徴ピックアップ | | 2 along the line more accessible / LDK18 tatami mats or more / Super close / Facing south / System kitchen / Bathroom Dryer / Yang per good / All room storage / Flat to the station / Siemens south road / Around traffic fewer / Or more before road 6m / Shaping land / Washbasin with shower / Face-to-face kitchen / Wide balcony / Toilet 2 places / Bathroom 1 tsubo or more / South balcony / Warm water washing toilet seat / The window in the bathroom / Mu front building / Ventilation good / All living room flooring / Built garage / Water filter / Three-story or more / Maintained sidewalk / Flat terrain 2沿線以上利用可 /LDK18畳以上 /スーパーが近い /南向き /システムキッチン /浴室乾燥機 /陽当り良好 /全居室収納 /駅まで平坦 /南側道路面す /周辺交通量少なめ /前道6m以上 /整形地 /シャワー付洗面台 /対面式キッチン /ワイドバルコニー /トイレ2ヶ所 /浴室1坪以上 /南面バルコニー /温水洗浄便座 /浴室に窓 /前面棟無 /通風良好 /全居室フローリング /ビルトガレージ /浄水器 /3階建以上 /整備された歩道 /平坦地 | Price 価格 | | 33,800,000 yen 3380万円 | Floor plan 間取り | | 4LDK 4LDK | Units sold 販売戸数 | | 1 units 1戸 | Total units 総戸数 | | 1 units 1戸 | Land area 土地面積 | | 60.2 sq m (registration) 60.2m2(登記) | Building area 建物面積 | | 109.44 sq m (measured) 109.44m2(実測) | Driveway burden-road 私道負担・道路 | | Nothing, Southeast 6m width 無、南東6m幅 | Completion date 完成時期(築年月) | | December 2013 2013年12月 | Address 住所 | | Maruyama, Yokohama, Kanagawa Prefecture Isogo-ku 1 神奈川県横浜市磯子区丸山1 | Traffic 交通 | | Blue Line "Yoshino-cho" walk 17 minutes JR Keihin Tohoku Line "Negishi" walk 23 minutes ブルーライン「吉野町」歩17分 JR京浜東北線「根岸」歩23分
| Related links 関連リンク | | [Related Sites of this company] 【この会社の関連サイト】 | Person in charge 担当者より | | Rep Saito Yoshihiro Age: 20 Daigyokai Experience: 3 years customers will propose a nice house to become a smile. 担当者斎藤 義広年齢:20代業界経験:3年お客様が笑顔になる素敵なお住まいをご提案いたします。 | Contact お問い合せ先 | | TEL: 0800-603-0562 [Toll free] mobile phone ・ Also available from PHS Caller ID is not notified Please contact the "saw SUUMO (Sumo)" If it does not lead, If the real estate company TEL:0800-603-0562【通話料無料】携帯電話・PHSからもご利用いただけます 発信者番号は通知されません 「SUUMO(スーモ)を見た」と問い合わせください つながらない方、不動産会社の方は
| Building coverage, floor area ratio 建ぺい率・容積率 | | 60% ・ 200% 60%・200% | Time residents 入居時期 | | Consultation 相談 | Land of the right form 土地の権利形態 | | Ownership 所有権 | Structure and method of construction 構造・工法 | | Wooden three-story 木造3階建 | Use district 用途地域 | | Semi-industrial 準工業 | Overview and notices その他概要・特記事項 | | Contact: Saito Yoshihiro, Facilities: Public Water Supply, This sewage, City gas, Building confirmation number: 3211122, Parking: car space 担当者:斎藤 義広、設備:公営水道、本下水、都市ガス、建築確認番号:3211122、駐車場:カースペース | Company profile 会社概要 | | <Mediation> Minister of Land, Infrastructure and Transport (3) No. 006,185 (one company) National Housing Industry Association (Corporation) metropolitan area real estate Fair Trade Council member Asahi Housing Corporation Yokohama Yubinbango221-0835 Yokohama-shi, Kanagawa, Kanagawa-ku, Tsuruya-cho, 2-26 - 2 fourth Yasuda Building second floor <仲介>国土交通大臣(3)第006185号(一社)全国住宅産業協会会員 (公社)首都圏不動産公正取引協議会加盟朝日住宅(株)横浜店〒221-0835 神奈川県横浜市神奈川区鶴屋町2-26ー2 第4安田ビル2階 |
 Local appearance photo
現地外観写真
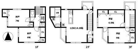
Floor plan間取り図  33,800,000 yen, 4LDK, Land area 60.2 sq m , Building area 109.44 sq m
3380万円、4LDK、土地面積60.2m2、建物面積109.44m2
 Local photos, including front road
前面道路含む現地写真
 Local appearance photo
現地外観写真
 Local photos, including front road
前面道路含む現地写真
 Local appearance photo
現地外観写真
 Local photos, including front road
前面道路含む現地写真
 Local photos, including front road
前面道路含む現地写真
Location
|