|
|
Yokohama, Kanagawa Prefecture Isogo-ku,
神奈川県横浜市磯子区
|
|
Keikyu main line "Sugita" walk 12 minutes
京急本線「杉田」歩12分
|
|
Day is good in the south road.
南道路で日当たり良好です。
|
|
Two single car space ・ Living environment is good.
カースペース二台・住環境良好です。
|
Features pickup 特徴ピックアップ | | Parking two Allowed / Super close / Facing south / System kitchen / Bathroom Dryer / Yang per good / All room storage / Siemens south road / A quiet residential area / LDK15 tatami mats or more / Around traffic fewer / Or more before road 6m / Shaping land / Washbasin with shower / Toilet 2 places / Bathroom 1 tsubo or more / 2-story / 2 or more sides balcony / South balcony / Otobasu / Warm water washing toilet seat / Underfloor Storage / The window in the bathroom / TV monitor interphone / Leafy residential area / Mu front building / Ventilation good / All living room flooring / Water filter / City gas / Located on a hill / A large gap between the neighboring house / Maintained sidewalk 駐車2台可 /スーパーが近い /南向き /システムキッチン /浴室乾燥機 /陽当り良好 /全居室収納 /南側道路面す /閑静な住宅地 /LDK15畳以上 /周辺交通量少なめ /前道6m以上 /整形地 /シャワー付洗面台 /トイレ2ヶ所 /浴室1坪以上 /2階建 /2面以上バルコニー /南面バルコニー /オートバス /温水洗浄便座 /床下収納 /浴室に窓 /TVモニタ付インターホン /緑豊かな住宅地 /前面棟無 /通風良好 /全居室フローリング /浄水器 /都市ガス /高台に立地 /隣家との間隔が大きい /整備された歩道 |
Price 価格 | | 42,800,000 yen 4280万円 |
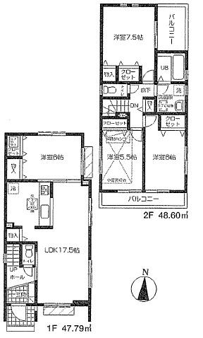
Floor plan 間取り | | 4LDK 4LDK |
Units sold 販売戸数 | | 1 units 1戸 |
Total units 総戸数 | | 3 units 3戸 |
Land area 土地面積 | | 107.3 sq m (measured) 107.3m2(実測) |
Building area 建物面積 | | 96.39 sq m (measured) 96.39m2(実測) |
Driveway burden-road 私道負担・道路 | | Nothing, South 6.5m width 無、南6.5m幅 |
Completion date 完成時期(築年月) | | December 2013 2013年12月 |
Address 住所 | | Yokohama, Kanagawa Prefecture Isogo-ku, Sugita 2 神奈川県横浜市磯子区杉田2 |
Traffic 交通 | | Keikyu main line "Sugita" walk 12 minutes 京急本線「杉田」歩12分
|
Person in charge 担当者より | | Rep Arakawa Homareotoko Age: 40 Daigyokai experience: you have to cherish the relationship of trust with 9-year customer. 担当者荒川 誉男年齢:40代業界経験:9年お客様との信頼関係を大切にしています。 |
Contact お問い合せ先 | | TEL: 0800-603-0562 [Toll free] mobile phone ・ Also available from PHS Caller ID is not notified Please contact the "saw SUUMO (Sumo)" If it does not lead, If the real estate company TEL:0800-603-0562【通話料無料】携帯電話・PHSからもご利用いただけます 発信者番号は通知されません 「SUUMO(スーモ)を見た」と問い合わせください つながらない方、不動産会社の方は
|
Building coverage, floor area ratio 建ぺい率・容積率 | | Fifty percent ・ Hundred percent 50%・100% |
Time residents 入居時期 | | Consultation 相談 |
Land of the right form 土地の権利形態 | | Ownership 所有権 |
Structure and method of construction 構造・工法 | | Wooden 2-story 木造2階建 |
Use district 用途地域 | | One low-rise 1種低層 |
Overview and notices その他概要・特記事項 | | Contact: Arakawa Homareotoko, Facilities: Public Water Supply, This sewage, City gas, Building confirmation number: 01157Y, Parking: car space 担当者:荒川 誉男、設備:公営水道、本下水、都市ガス、建築確認番号:01157Y、駐車場:カースペース |
Company profile 会社概要 | | <Mediation> Minister of Land, Infrastructure and Transport (3) No. 006,185 (one company) National Housing Industry Association (Corporation) metropolitan area real estate Fair Trade Council member Asahi Housing Corporation Yokohama Yubinbango221-0835 Yokohama-shi, Kanagawa, Kanagawa-ku, Tsuruya-cho, 2-26 - 2 fourth Yasuda Building second floor <仲介>国土交通大臣(3)第006185号(一社)全国住宅産業協会会員 (公社)首都圏不動産公正取引協議会加盟朝日住宅(株)横浜店〒221-0835 神奈川県横浜市神奈川区鶴屋町2-26ー2 第4安田ビル2階 |