New Homes » Kanto » Kanagawa Prefecture » Yokohama Isogo-ku
 
| | Yokohama, Kanagawa Prefecture Isogo-ku, 神奈川県横浜市磯子区 |
| Blue Line "Gumyoji" walk 18 minutes ブルーライン「弘明寺」歩18分 |
| 3-wire is 4 Station available Europe-style house 3線4駅利用可能なヨーロッパ風住宅です |
Features pickup 特徴ピックアップ | | 2 along the line more accessible / LDK18 tatami mats or more / Energy-saving water heaters / System kitchen / Bathroom Dryer / All room storage / A quiet residential area / Face-to-face kitchen / Toilet 2 places / Double-glazing / Warm water washing toilet seat / The window in the bathroom / TV monitor interphone / Leafy residential area / Built garage / Dish washing dryer / Walk-in closet / Water filter / Three-story or more / City gas / Floor heating 2沿線以上利用可 /LDK18畳以上 /省エネ給湯器 /システムキッチン /浴室乾燥機 /全居室収納 /閑静な住宅地 /対面式キッチン /トイレ2ヶ所 /複層ガラス /温水洗浄便座 /浴室に窓 /TVモニタ付インターホン /緑豊かな住宅地 /ビルトガレージ /食器洗乾燥機 /ウォークインクロゼット /浄水器 /3階建以上 /都市ガス /床暖房 | Price 価格 | | 34,800,000 yen 3480万円 | Floor plan 間取り | | 4LDK 4LDK | Units sold 販売戸数 | | 1 units 1戸 | Total units 総戸数 | | 4 units 4戸 | Land area 土地面積 | | 62.71 sq m (18.96 tsubo) (Registration) 62.71m2(18.96坪)(登記) | Building area 建物面積 | | 101.97 sq m (30.84 tsubo) (Registration) 101.97m2(30.84坪)(登記) | Driveway burden-road 私道負担・道路 | | Nothing, Northwest 6.8m width 無、北西6.8m幅 | Completion date 完成時期(築年月) | | December 2013 2013年12月 | Address 住所 | | Yokohama, Kanagawa Prefecture Isogo-ku, Okamura 6-5-62 神奈川県横浜市磯子区岡村6-5-62 | Traffic 交通 | | Blue Line "Gumyoji" walk 18 minutes Keikyu main line "Idoketani" bus 13 minutes Naka Ayumi Kubo 1 minute JR Negishi Line "Isogo" bus 16 minutes Naka Ayumi Kubo 1 minute ブルーライン「弘明寺」歩18分 京急本線「井土ヶ谷」バス13分仲久保歩1分 JR根岸線「磯子」バス16分仲久保歩1分
| Person in charge 担当者より | | The person in charge Co., Ltd. off 担当者株式会社フ | Contact お問い合せ先 | | TEL: 0800-805-5715 [Toll free] mobile phone ・ Also available from PHS Caller ID is not notified Please contact the "saw SUUMO (Sumo)" If it does not lead, If the real estate company TEL:0800-805-5715【通話料無料】携帯電話・PHSからもご利用いただけます 発信者番号は通知されません 「SUUMO(スーモ)を見た」と問い合わせください つながらない方、不動産会社の方は
| Building coverage, floor area ratio 建ぺい率・容積率 | | 60% ・ 200% 60%・200% | Land of the right form 土地の権利形態 | | Ownership 所有権 | Structure and method of construction 構造・工法 | | Wooden three-story 木造3階建 | Use district 用途地域 | | One dwelling 1種住居 | Overview and notices その他概要・特記事項 | | Contact: Corporation off, Facilities: Public Water Supply, This sewage, City gas, Building confirmation number: H25KBI04487, Parking: car space 担当者:株式会社フ、設備:公営水道、本下水、都市ガス、建築確認番号:H25KBI04487、駐車場:カースペース | Company profile 会社概要 | | <Mediation> Governor of Kanagawa Prefecture (1) No. 028576 (Ltd.) Face Residence Yubinbango212-0014 Kawasaki-shi, Kanagawa-ku, Saiwai Omiya-cho, 1310 Muza Kawasaki second floor <仲介>神奈川県知事(1)第028576号(株)フェイスレジデンス〒212-0014 神奈川県川崎市幸区大宮町1310 ミューザ川崎2階 |
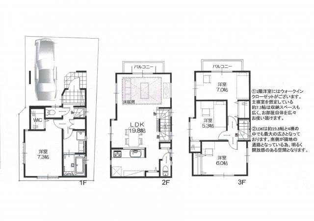
Floor plan間取り図  34,800,000 yen, 4LDK, Land area 62.71 sq m , Building area 101.97 sq m
3480万円、4LDK、土地面積62.71m2、建物面積101.97m2
 Other
その他
 Same specifications photos (Other introspection)
同仕様写真(その他内観)
 Same specifications photos (Other introspection)
同仕様写真(その他内観)
Otherその他  LDK floor heating
LDK床暖房
 Same specifications photos (Other introspection)
同仕様写真(その他内観)
 Same specifications photos (Other introspection)
同仕様写真(その他内観)
 Same specifications photos (Other introspection)
同仕様写真(その他内観)
Location
|