New Homes » Kanto » Kanagawa Prefecture » Yokohama Izumi-ku
 
| | Yokohama-shi, Kanagawa-ku, Izumi 神奈川県横浜市泉区 |
| Sagami Railway Izumino Line "Ryokuentoshi" walk 19 minutes 相鉄いずみ野線「緑園都市」歩19分 |
| [Totsuka ・ Izumi-ku residence looking for specialty stores. I aligned photo. ] Down payment is also available for purchase at $ 0.00. 100% + expenses loan will be available. Become a reference building visit. It will guide you to within one hour of your phone. 【戸塚・泉区住い探し専門店。写真そろってます。】頭金0円でも購入可能。100%+諸費用ローン利用できます。参考建物ご覧になれます。お電話から1時間以内にご案内致します。 |
| Corresponding to the flat-35S, LDK20 tatami mats or more, System kitchen, Bathroom Dryer, All room storage, A quiet residential area, Or more before road 6mese-style room, Washbasin with shower, Face-to-face kitchen, Toilet 2 places, Bathroom 1 tsubo or more, 2-story, TV with bathroom, Underfloor Storage, The window in the bathroom, Leafy residential area, Dish washing dryer, Water filter, Living stairs, Attic storage フラット35Sに対応、LDK20畳以上、システムキッチン、浴室乾燥機、全居室収納、閑静な住宅地、前道6m以上、和室、シャワー付洗面台、対面式キッチン、トイレ2ヶ所、浴室1坪以上、2階建、TV付浴室、床下収納、浴室に窓、緑豊かな住宅地、食器洗乾燥機、浄水器、リビング階段、屋根裏収納 |
Features pickup 特徴ピックアップ | | Corresponding to the flat-35S / LDK20 tatami mats or more / System kitchen / Bathroom Dryer / All room storage / A quiet residential area / Or more before road 6m / Japanese-style room / Washbasin with shower / Face-to-face kitchen / Toilet 2 places / Bathroom 1 tsubo or more / 2-story / TV with bathroom / Underfloor Storage / The window in the bathroom / Leafy residential area / Dish washing dryer / Water filter / Living stairs / Attic storage フラット35Sに対応 /LDK20畳以上 /システムキッチン /浴室乾燥機 /全居室収納 /閑静な住宅地 /前道6m以上 /和室 /シャワー付洗面台 /対面式キッチン /トイレ2ヶ所 /浴室1坪以上 /2階建 /TV付浴室 /床下収納 /浴室に窓 /緑豊かな住宅地 /食器洗乾燥機 /浄水器 /リビング階段 /屋根裏収納 | Price 価格 | | 29,800,000 yen 2980万円 | Floor plan 間取り | | 4LDK 4LDK | Units sold 販売戸数 | | 1 units 1戸 | Total units 総戸数 | | 1 units 1戸 | Land area 土地面積 | | 101.34 sq m (measured) 101.34m2(実測) | Building area 建物面積 | | 100.19 sq m (measured) 100.19m2(実測) | Driveway burden-road 私道負担・道路 | | Nothing, East 6.5m width 無、東6.5m幅 | Completion date 完成時期(築年月) | | March 2014 2014年3月 | Address 住所 | | Yokohama-shi, Kanagawa-ku, Izumi Okozu cho 神奈川県横浜市泉区岡津町 | Traffic 交通 | | Sagami Railway Izumino Line "Ryokuentoshi" walk 19 minutes 相鉄いずみ野線「緑園都市」歩19分
| Related links 関連リンク | | [Related Sites of this company] 【この会社の関連サイト】 | Person in charge 担当者より | | Rep Hasegawa Chu History Age: 30 Daigyokai Experience: 14 years Totsuka ・ Buying and selling of Izumi-ku area ・ That rental Please leave! ! 担当者長谷川 宙史年齢:30代業界経験:14年戸塚区・泉区エリアの売買・賃貸の事はお任せ下さい!! | Contact お問い合せ先 | | TEL: 0800-600-1853 [Toll free] mobile phone ・ Also available from PHS Caller ID is not notified Please contact the "saw SUUMO (Sumo)" If it does not lead, If the real estate company TEL:0800-600-1853【通話料無料】携帯電話・PHSからもご利用いただけます 発信者番号は通知されません 「SUUMO(スーモ)を見た」と問い合わせください つながらない方、不動産会社の方は
| Building coverage, floor area ratio 建ぺい率・容積率 | | 60% ・ 200% 60%・200% | Time residents 入居時期 | | March 2014 schedule 2014年3月予定 | Land of the right form 土地の権利形態 | | Ownership 所有権 | Structure and method of construction 構造・工法 | | Wooden 2-story 木造2階建 | Use district 用途地域 | | One low-rise 1種低層 | Overview and notices その他概要・特記事項 | | Contact: Hasegawa Chu History, Facilities: Public Water Supply, This sewage, Individual LPG, Building confirmation number: the H25 building certification No. KBI04294, Parking: car space 担当者:長谷川 宙史、設備:公営水道、本下水、個別LPG、建築確認番号:第H25確認建築KBI04294号、駐車場:カースペース | Company profile 会社概要 | | <Mediation> Kanagawa Governor (2) the first 026,917 No. Mitsuba housing (Ltd.) Yubinbango244-0003 Kanagawa Prefecture, Totsuka-ku, Yokohama-shi Totsuka-cho, 120 <仲介>神奈川県知事(2)第026917号ミツバハウジング(株)〒244-0003 神奈川県横浜市戸塚区戸塚町120 |
 Local appearance photo
現地外観写真
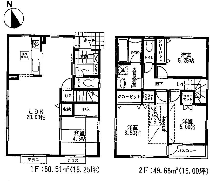
Floor plan間取り図  29,800,000 yen, 4LDK, Land area 101.34 sq m , Building area 100.19 sq m
2980万円、4LDK、土地面積101.34m2、建物面積100.19m2
Compartment figure区画図  29,800,000 yen, 4LDK, Land area 101.34 sq m , Building area 100.19 sq m
2980万円、4LDK、土地面積101.34m2、建物面積100.19m2
Local appearance photo現地外観写真  Local (September 2013) Shooting
現地(2013年9月)撮影
Livingリビング  Enforcement example
施行例
Bathroom浴室  Enforcement example (same specifications)
施行例(同仕様)
Kitchenキッチン  Enforcement example (same specifications)
施行例(同仕様)
Wash basin, toilet洗面台・洗面所  Enforcement example (same specifications)
施行例(同仕様)
Local photos, including front road前面道路含む現地写真  Local (September 2013) Shooting
現地(2013年9月)撮影
Shopping centreショッピングセンター  Ryokuentoshi Shopping Plaza Sotetsu to life 1240m
緑園都市ショッピングプラザ相鉄ライフまで1240m
Same specifications photos (appearance)同仕様写真(外観)  Example of construction
施工例
Bathroom浴室  Enforcement example (same specifications)
施行例(同仕様)
Local photos, including front road前面道路含む現地写真  Local (September 2013) Shooting
現地(2013年9月)撮影
Supermarketスーパー  1066m until the super fresh Museum TAIGA Okozu shop
スーパー生鮮館TAIGA岡津店まで1066m
 Local appearance photo
現地外観写真
 Local appearance photo
現地外観写真
Presentプレゼント  Walk from JR "Totsuka" station 4 minutes. Store it becomes calm atmosphere to feel the warmth of the wood. Let's talk about slowly dream of my home with a cup of coffee.
JR「戸塚」駅から歩いて4分。店内は木のぬくもりを感じさせる落ち着いた雰囲気になっております。コーヒーを飲みながらゆっくりと夢のマイホームについてお話ししましょう。
You will receive this brochureこんなパンフレットが届きます ![You will receive this brochure. [Totsuka ・ Izumi-ku residence looking for specialty stores. ] Down payment is also available for purchase at $ 0.00. 100% + expenses loan will be available. It will guide you to within one hour of your phone.](/images/kanagawa/yokohamashiizumi/c61dd60043.jpg) [Totsuka ・ Izumi-ku residence looking for specialty stores. ] Down payment is also available for purchase at $ 0.00. 100% + expenses loan will be available. It will guide you to within one hour of your phone.
【戸塚・泉区住い探し専門店。】頭金0円でも購入可能。100%+諸費用ローン利用できます。お電話から1時間以内にご案内致します。
Location
|