New Homes » Kanto » Kanagawa Prefecture » Kanazawa-ku, Yokohama
 
| | Kanagawa Prefecture Kanazawa-ku, Yokohama 神奈川県横浜市金沢区 |
| Keikyu main line "Kanazawa Hakkei" walk 12 minutes 京急本線「金沢八景」歩12分 |
| [Color select You can choose now if interior. ] Earthquake and fire, Not lose the typhoon is "reinforced concrete". Day view good. You can use 2 Station. 【今なら内装のカラーセレクトが選べます。】 地震や火災、台風に負けない『鉄筋コンクリート造』です。日当たり眺望良好。2駅利用できます。 |
| [Facility ・ specification] System kitchen, Bathroom Dryer, All room storage, LDK15 tatami mats or more, Washbasin with shower, Face-to-face kitchen, Toilet 2 places, Double-glazing, Otobasu, TV monitor interphone, All living room flooring, Water filter ■ "Kanazawa Hakkei" station and "Mutsuura" 2 Station Available station. To the station, You can go almost flat. ■ Up to about Coop 250m. Mutsuura about up to elementary school 450m. 【設備・仕様】システムキッチン、浴室乾燥機、全居室収納、LDK15畳以上、シャワー付洗面台、対面式キッチン、トイレ2ヶ所、複層ガラス、オートバス、TVモニタ付インターホン、全居室フローリング、浄水器■「金沢八景」駅と「六浦」駅の2駅利用可。駅まで、ほとんど平坦で行けます。■コープまで約250m。六浦小学校まで約450m。 |
Features pickup 特徴ピックアップ | | System kitchen / Bathroom Dryer / Yang per good / All room storage / A quiet residential area / LDK15 tatami mats or more / Washbasin with shower / Face-to-face kitchen / Toilet 2 places / Double-glazing / Otobasu / TV monitor interphone / Leafy residential area / Ventilation good / All living room flooring / Good view / Water filter / Three-story or more / City gas システムキッチン /浴室乾燥機 /陽当り良好 /全居室収納 /閑静な住宅地 /LDK15畳以上 /シャワー付洗面台 /対面式キッチン /トイレ2ヶ所 /複層ガラス /オートバス /TVモニタ付インターホン /緑豊かな住宅地 /通風良好 /全居室フローリング /眺望良好 /浄水器 /3階建以上 /都市ガス | Event information イベント情報 | | Local tours (please make a reservation beforehand) schedule / Published in a property close from the Company. We will immediately support us. 現地見学会(事前に必ず予約してください)日程/公開中当社から近い物件です。 すぐにご対応いたします。 | Price 価格 | | 32,800,000 yen ~ 34,800,000 yen 3280万円 ~ 3480万円 | Floor plan 間取り | | 2LDK + S (storeroom) 2LDK+S(納戸) | Units sold 販売戸数 | | 3 units 3戸 | Total units 総戸数 | | 8 units 8戸 | Land area 土地面積 | | 59.07 sq m ~ 71.66 sq m (measured) 59.07m2 ~ 71.66m2(実測) | Building area 建物面積 | | 91.74 sq m ~ 104.09 sq m (measured) 91.74m2 ~ 104.09m2(実測) | Driveway burden-road 私道負担・道路 | | Road width: 5.5m, Asphaltic pavement, Driveway 240.41 sq m 1 / 8 道路幅:5.5m、アスファルト舗装、私道240.41m2 1/8 | Completion date 完成時期(築年月) | | 2 months after the contract 契約後2ヶ月 | Address 住所 | | Kanagawa Prefecture Kanazawa-ku, Yokohama Mutsuura 2 神奈川県横浜市金沢区六浦2 | Traffic 交通 | | Keikyu main line "Kanazawa Hakkei" walk 12 minutes Keikyū Zushi Line "Mutsuura" walk 10 minutes Seaside Line "Kanazawa Hakkei" walk 13 minutes 京急本線「金沢八景」歩12分 京急逗子線「六浦」歩10分 シーサイドライン「金沢八景」歩13分
| Related links 関連リンク | | [Related Sites of this company] 【この会社の関連サイト】 | Person in charge 担当者より | | Personnel Daisuke Miyaji Age: 30 Daigyokai experience: we have the best in the business thinking that build a relationship of trust with 11-year customer. Lasting relations will have thought that if you can even after the Mai home of your delivery has been completed. Please feel free to contact us in that if local of the Company's properties in Kanazawa-ku,. 担当者宮地大輔年齢:30代業界経験:11年お客様との信頼関係を築く事を一番に考えて営業をしております。マイホームのお引渡しが終わった後も末永いお付き合いが出来ればと思っております。金沢区の物件の事なら地元の当社にお気軽にご相談下さい。 | Contact お問い合せ先 | | TEL: 0800-603-3773 [Toll free] mobile phone ・ Also available from PHS Caller ID is not notified Please contact the "saw SUUMO (Sumo)" If it does not lead, If the real estate company TEL:0800-603-3773【通話料無料】携帯電話・PHSからもご利用いただけます 発信者番号は通知されません 「SUUMO(スーモ)を見た」と問い合わせください つながらない方、不動産会社の方は
| Building coverage, floor area ratio 建ぺい率・容積率 | | Kenpei rate: 60%, Volume ratio: 150% 建ペい率:60%、容積率:150% | Time residents 入居時期 | | 2 months after the contract 契約後2ヶ月 | Land of the right form 土地の権利形態 | | Ownership 所有権 | Structure and method of construction 構造・工法 | | RC3 story RC3階建 | Use district 用途地域 | | One middle and high 1種中高 | Land category 地目 | | Residential land 宅地 | Other limitations その他制限事項 | | Residential land development construction regulation area 宅地造成工事規制区域 | Overview and notices その他概要・特記事項 | | Contact: Daisuke Miyaji, Building confirmation number: H-21SBC01973 担当者:宮地大輔、建築確認番号:H-21SBC01973 | Company profile 会社概要 | | <Mediation> Kanagawa Governor (2) the first 025,155 No. Century 21 Corp. Yokohama Housing Information Center Yubinbango236-0005 Kanagawa Prefecture Kanazawa-ku, Yokohama Namiki 1-17-4-11 <仲介>神奈川県知事(2)第025155号センチュリー21(株)横浜住宅情報センター〒236-0005 神奈川県横浜市金沢区並木1-17-4-11 |
Rendering (appearance)完成予想図(外観)  Rendering
完成予想図
Local photos, including front road前面道路含む現地写真  Local (January 2013) Shooting
現地(2013年1月)撮影
Local appearance photo現地外観写真  H Building Local (January 2013) Shooting
H号棟 現地(2013年1月)撮影
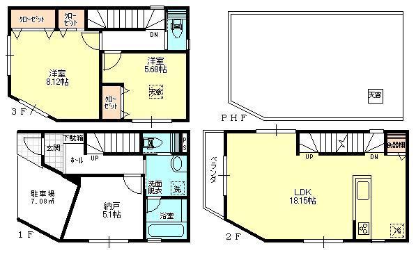
Floor plan間取り図  (F Building), Price 34,800,000 yen, 2LDK+S, Land area 69.82 sq m , Building area 104.09 sq m
(F号棟)、価格3480万円、2LDK+S、土地面積69.82m2、建物面積104.09m2
Local appearance photo現地外観写真  F Building Local (January 2013) Shooting
F号棟 現地(2013年1月)撮影
Local photos, including front road前面道路含む現地写真  Local (September 2011) Shooting
現地(2011年9月)撮影
Junior high school中学校  675m to Yokohama Municipal Mutsuura junior high school
横浜市立六浦中学校まで675m
 The entire compartment Figure
全体区画図
Floor plan間取り図  (G Building), Price 32,800,000 yen, 2LDK+S, Land area 71.66 sq m , Building area 91.74 sq m
(G号棟)、価格3280万円、2LDK+S、土地面積71.66m2、建物面積91.74m2
Local photos, including front road前面道路含む現地写真  Local (September 2011) Shooting
現地(2011年9月)撮影
Primary school小学校  579m to Yokohama Municipal Mutsuura Elementary School
横浜市立六浦小学校まで579m
Floor plan間取り図  (H Building), Price 33,800,000 yen, 2LDK+S, Land area 59.07 sq m , Building area 98.1 sq m
(H号棟)、価格3380万円、2LDK+S、土地面積59.07m2、建物面積98.1m2
Other Environmental Photoその他環境写真  950m to Kanazawa Hakkei Station
金沢八景駅まで950m
 Mutsuura 800m to the Train Station
六浦駅まで800m
Hospital病院  1374m to National Public Officers Mutual Aid Association Federation Yokohama Minami mutual aid hospital
国家公務員共済組合連合会横浜南共済病院まで1374m
Supermarketスーパー  To York Mart 580m
ヨークマートまで580m
Post office郵便局  1003m until Mutsuura Station post office
六浦駅前郵便局まで1003m
Other Environmental Photoその他環境写真  Mutsuura 600m until the district center
六浦地区センターまで600m
 Hakkeijima to Sea Paradise 3800m
八景島シーパラダイスまで3800m
Location
|