|
|
Kanagawa Prefecture Kanazawa-ku, Yokohama
神奈川県横浜市金沢区
|
|
Keikyu main line "Kanazawa Bunko" bus 11 minutes summer mountain walk 3 minutes
京急本線「金沢文庫」バス11分夏山歩3分
|
|
Living environment is good in the corner lot in the beautiful subdivision that has been Readjustment. The building housing performance evaluation acquisition, Strong seismic grade earthquake 3!
区画整理されたきれいな分譲地内の角地で住環境良好です。建物は住宅性能評価取得、地震に強い耐震等級3!
|
|
City gas ・ This sewage! Car Space Available!
都市ガス・本下水!カースペース有!
|
Features pickup 特徴ピックアップ | | Construction housing performance with evaluation / Design house performance with evaluation / Corresponding to the flat-35S / Parking two Allowed / Facing south / System kitchen / Bathroom Dryer / Yang per good / All room storage / A quiet residential area / Corner lot / Japanese-style room / Washbasin with shower / Face-to-face kitchen / Toilet 2 places / Bathroom 1 tsubo or more / 2-story / South balcony / Double-glazing / Zenshitsuminami direction / Warm water washing toilet seat / The window in the bathroom / All room 6 tatami mats or more / City gas / Readjustment land within 建設住宅性能評価付 /設計住宅性能評価付 /フラット35Sに対応 /駐車2台可 /南向き /システムキッチン /浴室乾燥機 /陽当り良好 /全居室収納 /閑静な住宅地 /角地 /和室 /シャワー付洗面台 /対面式キッチン /トイレ2ヶ所 /浴室1坪以上 /2階建 /南面バルコニー /複層ガラス /全室南向き /温水洗浄便座 /浴室に窓 /全居室6畳以上 /都市ガス /区画整理地内 |
Price 価格 | | 42,800,000 yen 4280万円 |
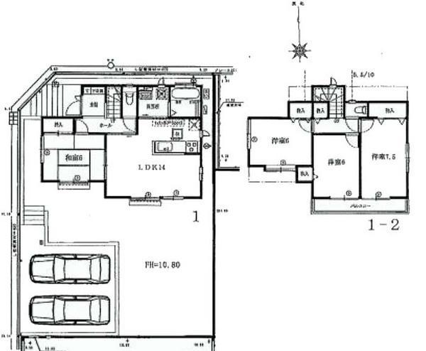
Floor plan 間取り | | 4LDK 4LDK |
Units sold 販売戸数 | | 1 units 1戸 |
Total units 総戸数 | | 1 units 1戸 |
Land area 土地面積 | | 163.95 sq m (measured) 163.95m2(実測) |
Building area 建物面積 | | 93.98 sq m (measured) 93.98m2(実測) |
Driveway burden-road 私道負担・道路 | | Nothing, North 4.5m width, West 7m width 無、北4.5m幅、西7m幅 |
Completion date 完成時期(築年月) | | January 2014 2014年1月 |
Address 住所 | | Kanagawa Prefecture Kanazawa-ku, Yokohama Kamariyanishi 1 神奈川県横浜市金沢区釜利谷西1 |
Traffic 交通 | | Keikyu main line "Kanazawa Bunko" bus 11 minutes summer mountain walk 3 minutes 京急本線「金沢文庫」バス11分夏山歩3分
|
Related links 関連リンク | | [Related Sites of this company] 【この会社の関連サイト】 |
Person in charge 担当者より | | [Regarding this property.] Car space parallel two possible! Loose Nantei, Day is good to take the garden 7.8m! 【この物件について】カースペース並列2台可能!ゆったり南庭、庭先7.8mとれて日当たり良好です! |
Contact お問い合せ先 | | TEL: 0800-809-8496 [Toll free] mobile phone ・ Also available from PHS Caller ID is not notified Please contact the "saw SUUMO (Sumo)" If it does not lead, If the real estate company TEL:0800-809-8496【通話料無料】携帯電話・PHSからもご利用いただけます 発信者番号は通知されません 「SUUMO(スーモ)を見た」と問い合わせください つながらない方、不動産会社の方は
|
Building coverage, floor area ratio 建ぺい率・容積率 | | Fifty percent ・ 80% 50%・80% |
Time residents 入居時期 | | January 2014 2014年1月 |
Land of the right form 土地の権利形態 | | Ownership 所有権 |
Structure and method of construction 構造・工法 | | Wooden 2-story 木造2階建 |
Use district 用途地域 | | One low-rise 1種低層 |
Other limitations その他制限事項 | | Organize code: 10871, 整理コード:10871、 |
Overview and notices その他概要・特記事項 | | Facilities: Public Water Supply, This sewage, City gas, Building confirmation number: 13-05760-1, Parking: car space 設備:公営水道、本下水、都市ガス、建築確認番号:13-05760-1、駐車場:カースペース |
Company profile 会社概要 | | <Mediation> Governor of Kanagawa Prefecture (5) Article 020560 No. Century 21 (Ltd.) My Home Sales Division 1 Yubinbango220-0004 Kanagawa Prefecture, Nishi-ku, Yokohama-shi Kitasaiwai 2-8-4 Yokohama Nishiguchi KN building first floor <仲介>神奈川県知事(5)第020560号センチュリー21(株)マイホーム営業1課〒220-0004 神奈川県横浜市西区北幸2-8-4 横浜西口KNビル1階 |