New Homes » Kanto » Kanagawa Prefecture » Kohoku-ku, Yokohama
 
| | Yokohama-shi, Kanagawa-ku, Kohoku 神奈川県横浜市港北区 |
| Tokyu Toyoko Line "Myorenji" walk 7 minutes 東急東横線「妙蓮寺」歩7分 |
| Comfortable floor heating from the foot of the warm Also with Ease tableware washing dryer cleanup Washbasin with shower to change the living comfortable Please do not hesitate to make inquiries from the document request! 足元からポカポカの快適床暖房 後片付けもラクラクな食器洗乾燥機付 暮らしを快適に変えるシャワー付洗面台 まずは資料請求からお気軽にお問い合わせください! |
| Corresponding to the flat-35S, Super close, System kitchen, Bathroom Dryer, Yang per good, Flat to the station, Immediate Available, Facing south, LDK15 tatami mats or more, Shaping land, Washbasin with shower, Face-to-face kitchen, Toilet 2 places, Bathroom 1 tsubo or more, 2-story, South balcony, Double-glazing, Warm water washing toilet seat, TV with bathroom, Underfloor Storage, The window in the bathroom, TV monitor interphone, High-function toilet, Ventilation good, All living room flooring, Dish washing dryer, Water filter, City gas, All rooms are two-sided lighting, Flat terrain, Floor heating フラット35Sに対応、スーパーが近い、システムキッチン、浴室乾燥機、陽当り良好、駅まで平坦、即入居可、南向き、LDK15畳以上、整形地、シャワー付洗面台、対面式キッチン、トイレ2ヶ所、浴室1坪以上、2階建、南面バルコニー、複層ガラス、温水洗浄便座、TV付浴室、床下収納、浴室に窓、TVモニタ付インターホン、高機能トイレ、通風良好、全居室フローリング、食器洗乾燥機、浄水器、都市ガス、全室2面採光、平坦地、床暖房 |
Features pickup 特徴ピックアップ | | Corresponding to the flat-35S / Immediate Available / Super close / Facing south / System kitchen / Bathroom Dryer / Yang per good / Flat to the station / LDK15 tatami mats or more / Shaping land / Washbasin with shower / Face-to-face kitchen / Toilet 2 places / Bathroom 1 tsubo or more / 2-story / South balcony / Double-glazing / Warm water washing toilet seat / TV with bathroom / Underfloor Storage / The window in the bathroom / TV monitor interphone / High-function toilet / Ventilation good / All living room flooring / Dish washing dryer / Water filter / City gas / All rooms are two-sided lighting / Flat terrain / Floor heating フラット35Sに対応 /即入居可 /スーパーが近い /南向き /システムキッチン /浴室乾燥機 /陽当り良好 /駅まで平坦 /LDK15畳以上 /整形地 /シャワー付洗面台 /対面式キッチン /トイレ2ヶ所 /浴室1坪以上 /2階建 /南面バルコニー /複層ガラス /温水洗浄便座 /TV付浴室 /床下収納 /浴室に窓 /TVモニタ付インターホン /高機能トイレ /通風良好 /全居室フローリング /食器洗乾燥機 /浄水器 /都市ガス /全室2面採光 /平坦地 /床暖房 | Price 価格 | | 44,960,000 yen ・ 47,200,000 yen 4496万円・4720万円 | Floor plan 間取り | | 4LDK 4LDK | Units sold 販売戸数 | | 2 units 2戸 | Total units 総戸数 | | 3 units 3戸 | Land area 土地面積 | | 85.17 sq m ・ 88.27 sq m (registration) 85.17m2・88.27m2(登記) | Building area 建物面積 | | 93.45 sq m ・ 97.3 sq m (registration) 93.45m2・97.3m2(登記) | Driveway burden-road 私道負担・道路 | | Road width: 9.9m, Asphaltic pavement 道路幅:9.9m、アスファルト舗装 | Completion date 完成時期(築年月) | | 2013 in late February 2013年2月下旬 | Address 住所 | | Yokohama-shi, Kanagawa-ku, Kohoku Shinoharahigashi 2 神奈川県横浜市港北区篠原東2 | Traffic 交通 | | Tokyu Toyoko Line "Myorenji" walk 7 minutes Blue Line "Kishinekoen" walk 15 minutes Tokyu Toyoko Line "Hakuraku" walk 21 minutes 東急東横線「妙蓮寺」歩7分 ブルーライン「岸根公園」歩15分 東急東横線「白楽」歩21分
| Related links 関連リンク | | [Related Sites of this company] 【この会社の関連サイト】 | Person in charge 担当者より | | [Regarding this property.] Kohoku-ku ・ Kanagawa-ku, ・ Leave Tsurumi-ku Property if the Republic of home sales. There are a lot of property information, such as the non-public property. Please feel free to contact. 【この物件について】港北区・神奈川区・鶴見区の物件なら共和住宅販売へお任せ。未公開物件など物件情報たくさんあります。お気軽にご連絡ください。 | Contact お問い合せ先 | | TEL: 0800-602-5414 [Toll free] mobile phone ・ Also available from PHS Caller ID is not notified Please contact the "saw SUUMO (Sumo)" If it does not lead, If the real estate company TEL:0800-602-5414【通話料無料】携帯電話・PHSからもご利用いただけます 発信者番号は通知されません 「SUUMO(スーモ)を見た」と問い合わせください つながらない方、不動産会社の方は
| Building coverage, floor area ratio 建ぺい率・容積率 | | Building coverage 60% Volume rate of 200% 建ぺい率60% 容積率200% | Time residents 入居時期 | | Immediate available 即入居可 | Land of the right form 土地の権利形態 | | Ownership 所有権 | Structure and method of construction 構造・工法 | | Wooden 2-story 木造2階建 | Use district 用途地域 | | One dwelling 1種住居 | Land category 地目 | | Residential land 宅地 | Other limitations その他制限事項 | | Quasi-fire zones 準防火地域 | Company profile 会社概要 | | <Mediation> Governor of Kanagawa Prefecture (1) No. 027655 (Ltd.) Republic of home sales Yubinbango221-0014 Kanagawa Prefecture, Kanagawa-ku, Yokohama-shi Irie 1-33-28 <仲介>神奈川県知事(1)第027655号(株)共和住宅販売〒221-0014 神奈川県横浜市神奈川区入江1-33-28 |
Local appearance photo現地外観写真  Local shooting
現地撮影
Livingリビング  Indoor shooting
室内撮影
Kitchenキッチン  Indoor shooting
室内撮影
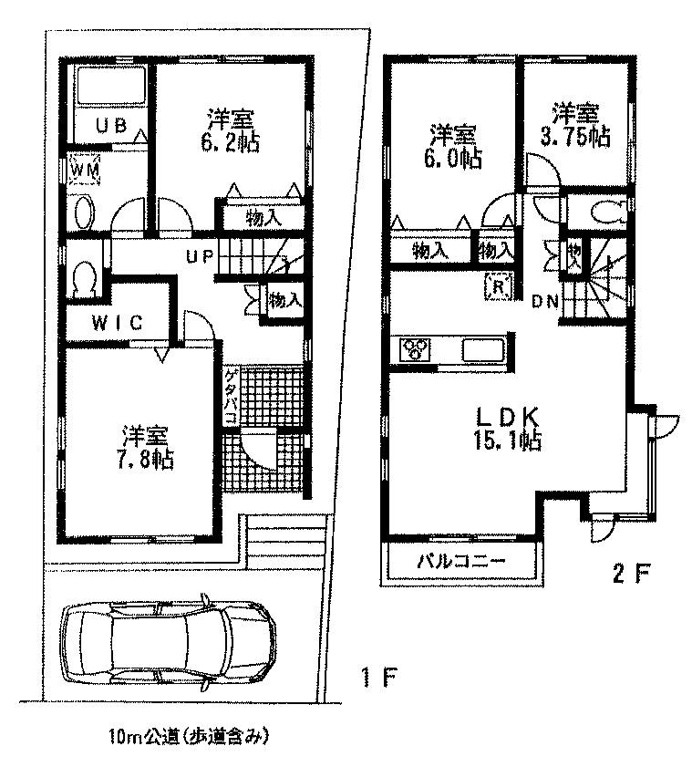
Floor plan間取り図  (A), Price 44,960,000 yen, 4LDK, Land area 88.27 sq m , Building area 97.3 sq m
(A)、価格4496万円、4LDK、土地面積88.27m2、建物面積97.3m2
Bathroom浴室  Indoor shooting
室内撮影
Non-living roomリビング以外の居室  Indoor shooting
室内撮影
Entrance玄関  Local shooting
現地撮影
Wash basin, toilet洗面台・洗面所  Indoor shooting
室内撮影
Receipt収納  Indoor shooting
室内撮影
Toiletトイレ  Indoor shooting
室内撮影
Balconyバルコニー  Local shooting
現地撮影
Supermarketスーパー  York Mart Myorenji to the store 827m
ヨークマート妙蓮寺店まで827m
View photos from the dwelling unit住戸からの眺望写真  View taken from the local
現地からの眺望撮影
 The entire compartment Figure
全体区画図
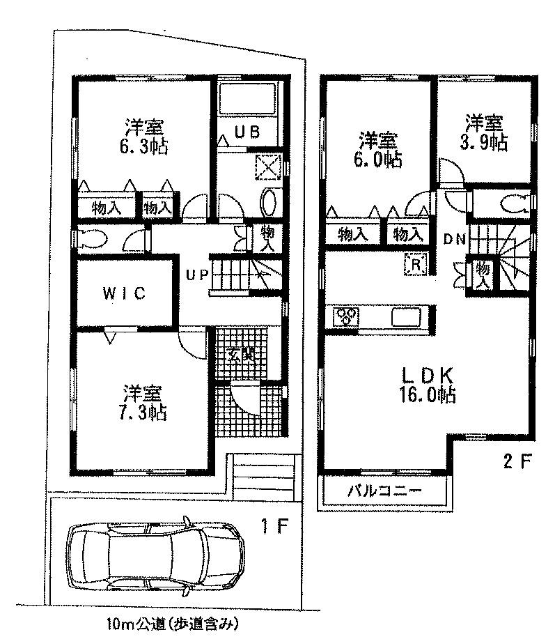
Floor plan間取り図  (B), Price 47,200,000 yen, 4LDK, Land area 85.17 sq m , Building area 93.45 sq m
(B)、価格4720万円、4LDK、土地面積85.17m2、建物面積93.45m2
Non-living roomリビング以外の居室  Indoor shooting
室内撮影
Receipt収納  Indoor shooting
室内撮影
Supermarketスーパー  892m to the top Kishine shop
トップ岸根店まで892m
Drug storeドラッグストア  622m to health care Seijo Myorenji shop
ヘルスケアセイジョー妙蓮寺店まで622m
Junior high school中学校  1332m to Yokohama Municipal Shinohara Junior High School
横浜市立篠原中学校まで1332m
Primary school小学校  914m to Yokohama Municipal Shinohara Elementary School
横浜市立篠原小学校まで914m
Location
|