|
|
Yokohama-shi, Kanagawa-ku, Kohoku
神奈川県横浜市港北区
|
|
Green Line "Takada" walk 13 minutes
グリーンライン「高田」歩13分
|
|
City gas, Corner lot, Flat terrain, 2 along the line more accessible, 2-story, System kitchen, A quiet residential area, TV monitor interphone
都市ガス、角地、平坦地、2沿線以上利用可、2階建、システムキッチン、閑静な住宅地、TVモニタ付インターホン
|
|
City gas, Corner lot, Flat terrain, 2 along the line more accessible, 2-story, System kitchen, A quiet residential area, TV monitor interphone
都市ガス、角地、平坦地、2沿線以上利用可、2階建、システムキッチン、閑静な住宅地、TVモニタ付インターホン
|
Features pickup 特徴ピックアップ | | 2 along the line more accessible / System kitchen / A quiet residential area / Corner lot / 2-story / TV monitor interphone / City gas / Flat terrain 2沿線以上利用可 /システムキッチン /閑静な住宅地 /角地 /2階建 /TVモニタ付インターホン /都市ガス /平坦地 |
Price 価格 | | 33,500,000 yen 3350万円 |
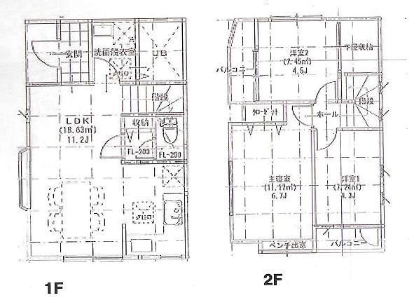
Floor plan 間取り | | 3LDK 3LDK |
Units sold 販売戸数 | | 1 units 1戸 |
Total units 総戸数 | | 1 units 1戸 |
Land area 土地面積 | | 59.76 sq m (measured) 59.76m2(実測) |
Building area 建物面積 | | 59.51 sq m (measured) 59.51m2(実測) |
Driveway burden-road 私道負担・道路 | | Nothing, Southwest 4m width 無、南西4m幅 |
Completion date 完成時期(築年月) | | June 2013 2013年6月 |
Address 住所 | | Yokohama-shi, Kanagawa-ku, Kohoku Shimoda-cho, 5 神奈川県横浜市港北区下田町5 |
Traffic 交通 | | Green Line "Takada" walk 13 minutes Green Line "Hiyoshihon town" walk 24 minutes Tokyu Toyoko Line "Hiyoshi" walk 27 minutes グリーンライン「高田」歩13分 グリーンライン「日吉本町」歩24分 東急東横線「日吉」歩27分
|
Related links 関連リンク | | [Related Sites of this company] 【この会社の関連サイト】 |
Person in charge 担当者より | | Rep Hando Tsuyoshi Please feel free to contact us! It supports a bright future! 担当者半藤 剛お気軽にお問合せ下さい!明るい未来をサポートします! |
Contact お問い合せ先 | | TEL: 0800-603-0785 [Toll free] mobile phone ・ Also available from PHS Caller ID is not notified Please contact the "saw SUUMO (Sumo)" If it does not lead, If the real estate company TEL:0800-603-0785【通話料無料】携帯電話・PHSからもご利用いただけます 発信者番号は通知されません 「SUUMO(スーモ)を見た」と問い合わせください つながらない方、不動産会社の方は
|
Building coverage, floor area ratio 建ぺい率・容積率 | | Fifty percent ・ Hundred percent 50%・100% |
Time residents 入居時期 | | Consultation 相談 |
Land of the right form 土地の権利形態 | | Ownership 所有権 |
Structure and method of construction 構造・工法 | | Wooden 2-story 木造2階建 |
Use district 用途地域 | | One low-rise 1種低層 |
Other limitations その他制限事項 | | Setback: upon 13.44 sq m セットバック:要13.44m2 |
Overview and notices その他概要・特記事項 | | Contact: Hando Tsuyoshi, Facilities: This sewage, City gas, Building confirmation number: 05122 担当者:半藤 剛、設備:本下水、都市ガス、建築確認番号:05122 |
Company profile 会社概要 | | <Mediation> Minister of Land, Infrastructure and Transport (7) No. 003744 No. Asahi Land and Building Co., Ltd. Zhongshan branch sales Division 1 Yubinbango226-0011 Yokohama-shi, Kanagawa-ku, green Nakayama-cho, 306-1 Miyoshi's seed building first floor <仲介>国土交通大臣(7)第003744号朝日土地建物(株)中山支店営業1課〒226-0011 神奈川県横浜市緑区中山町306-1 ミヨシズシードビル1階 |