New Homes » Kanto » Kanagawa Prefecture » Kohoku-ku, Yokohama
 
| | Yokohama-shi, Kanagawa-ku, Kohoku 神奈川県横浜市港北区 |
| Tokyu Toyoko Line "Okurayama" walk 14 minutes 東急東横線「大倉山」歩14分 |
| Open feeling good & amp; sunshine good of a quiet residential area in Shintei three buildings birth !! Pledge LDK21.5 is a must-see. Spacious moments of family gatherings of space 開放感良好&日照良好の閑静な住宅街に新邸3棟誕生!!LDK21.5帖は必見。ゆったりとした空間の家族団欒のひと時を |
Features pickup 特徴ピックアップ | | 2 along the line more accessible / LDK20 tatami mats or more / Super close / Facing south / Bathroom Dryer / Face-to-face kitchen / Toilet 2 places / Bathroom 1 tsubo or more / 2-story / Warm water washing toilet seat / Underfloor Storage / TV monitor interphone / Water filter / City gas / Attic storage 2沿線以上利用可 /LDK20畳以上 /スーパーが近い /南向き /浴室乾燥機 /対面式キッチン /トイレ2ヶ所 /浴室1坪以上 /2階建 /温水洗浄便座 /床下収納 /TVモニタ付インターホン /浄水器 /都市ガス /屋根裏収納 | Price 価格 | | 44,600,000 yen 4460万円 | Floor plan 間取り | | 4LDK 4LDK | Units sold 販売戸数 | | 1 units 1戸 | Land area 土地面積 | | 101.73 sq m (registration) 101.73m2(登記) | Building area 建物面積 | | 101.07 sq m (registration) 101.07m2(登記) | Driveway burden-road 私道負担・道路 | | Nothing, Northeast 4.5m width 無、北東4.5m幅 | Completion date 完成時期(築年月) | | November 2013 2013年11月 | Address 住所 | | Yokohama-shi, Kanagawa-ku, Kohoku Morooka cho 神奈川県横浜市港北区師岡町 | Traffic 交通 | | Tokyu Toyoko Line "Okurayama" walk 14 minutes JR Yokohama Line "Kikuna" walk 17 minutes Tokyu Toyoko Line "Kikuna" walk 17 minutes 東急東横線「大倉山」歩14分 JR横浜線「菊名」歩17分 東急東横線「菊名」歩17分
| Related links 関連リンク | | [Related Sites of this company] 【この会社の関連サイト】 | Person in charge 担当者より | | Rep Yasaka Yusuke Age: 30 Daigyokai Experience: 1 year customer peace of mind ・ So that will be advanced looking consent has been you live, Support with full force ・ I will propose! ! All in order of happiness and your smile, , , ! ! We look forward to your visit! ! 担当者八坂 裕介年齢:30代業界経験:1年お客様が安心・納得されたお住まい探しを進められますよう、全力でサポート・ご提案させていただきます!!全てはお客様の笑顔と幸せの為に、、、!!ご来店お待ちしております!! | Contact お問い合せ先 | | TEL: 0800-603-9908 [Toll free] mobile phone ・ Also available from PHS Caller ID is not notified Please contact the "saw SUUMO (Sumo)" If it does not lead, If the real estate company TEL:0800-603-9908【通話料無料】携帯電話・PHSからもご利用いただけます 発信者番号は通知されません 「SUUMO(スーモ)を見た」と問い合わせください つながらない方、不動産会社の方は
| Building coverage, floor area ratio 建ぺい率・容積率 | | Fifty percent ・ Hundred percent 50%・100% | Time residents 入居時期 | | Consultation 相談 | Land of the right form 土地の権利形態 | | Ownership 所有権 | Structure and method of construction 構造・工法 | | Wooden 2-story 木造2階建 | Use district 用途地域 | | One low-rise 1種低層 | Overview and notices その他概要・特記事項 | | Contact: Yasaka Yusuke, Facilities: Public Water Supply, This sewage, City gas, Building confirmation number: No. 13UDI3S Ken 00155 担当者:八坂 裕介、設備:公営水道、本下水、都市ガス、建築確認番号:第13UDI3S建00155号 | Company profile 会社概要 | | <Mediation> Governor of Kanagawa Prefecture (1) No. 027423 (Ltd.) Gift Yubinbango222-0037 Yokohama-shi, Kanagawa-ku, Kohoku Okurayama 1-23-18 Habitation Okurayama first floor <仲介>神奈川県知事(1)第027423号(株)ギフト〒222-0037 神奈川県横浜市港北区大倉山1-23-18 アビタシオン大倉山1階 |
Local appearance photo現地外観写真  Building 2 appearance
2号棟外観
Livingリビング  Building 2 Living
2号棟リビング
Local appearance photo現地外観写真  1 Building appearance
1号棟外観
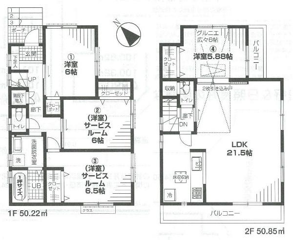
Floor plan間取り図  44,600,000 yen, 4LDK, Land area 101.73 sq m , Building area 101.07 sq m 2 Building floor plan
4460万円、4LDK、土地面積101.73m2、建物面積101.07m2 2号棟間取図
Local appearance photo現地外観写真  Building 2 appearance
2号棟外観
Bathroom浴室  Building 2 bathroom
2号棟浴室
Kitchenキッチン  Building 2 Kitchen
2号棟キッチン
Non-living roomリビング以外の居室  Building 2 Western-style
2号棟洋室
Wash basin, toilet洗面台・洗面所  Building 2 bathroom
2号棟浴室
Receipt収納  Building 2 Western-style housing
2号棟洋室収納
Toiletトイレ  Building 2 toilet
2号棟トイレ
Local photos, including front road前面道路含む現地写真  Frontal road
前面道路
Supermarketスーパー  Maruetsu Okurayama to the store 830m
マルエツ 大倉山店まで830m
Local appearance photo現地外観写真  3 Building appearance
3号棟外観
Local photos, including front road前面道路含む現地写真  Frontal road
前面道路
Supermarketスーパー  1020m until the Olympic hypermarket Okurayama shop
Olympicハイパーマーケット大倉山店まで1020m
Primary school小学校  380m to Yokohama Municipal Morooka Elementary School
横浜市立師岡小学校まで380m
Junior high school中学校  Tarumachi 1100m until junior high school
樽町中学校まで1100m
Kindergarten ・ Nursery幼稚園・保育園  1760m until Kikuna Kindergarten
菊名愛児園まで1760m
Location
|