New Homes » Kanto » Kanagawa Prefecture » Kohoku-ku, Yokohama
 
| | Yokohama-shi, Kanagawa-ku, Kohoku 神奈川県横浜市港北区 |
| JR Yokohama Line "Shin" walk 13 minutes JR横浜線「新横浜」歩13分 |
| LDK15 Pledge or more of the two-storey. 2 Station 2 routes available. LDK15帖以上の二階建て。2駅2路線利用可能。 |
| Blue Line Kishine-kōen Station walk 11 minutes. To Yokohama Station 8 minutes. Tokaido Shinkansen train station, Walk from Shin-Yokohama Station 13 minutes. It is a quiet residential area. ブルーライン岸根公園駅徒歩11分。横浜駅まで8分。東海道新幹線利用駅、新横浜駅まで徒歩13分。閑静な住宅街です。 |
Features pickup 特徴ピックアップ | | Corresponding to the flat-35S / Year Available / 2 along the line more accessible / System kitchen / Bathroom Dryer / Yang per good / All room storage / A quiet residential area / LDK15 tatami mats or more / Around traffic fewer / Japanese-style room / garden / Washbasin with shower / Face-to-face kitchen / Toilet 2 places / Bathroom 1 tsubo or more / 2-story / Double-glazing / Zenshitsuminami direction / Warm water washing toilet seat / Underfloor Storage / The window in the bathroom / TV monitor interphone / Ventilation good / Walk-in closet / All rooms are two-sided lighting / Development subdivision in フラット35Sに対応 /年内入居可 /2沿線以上利用可 /システムキッチン /浴室乾燥機 /陽当り良好 /全居室収納 /閑静な住宅地 /LDK15畳以上 /周辺交通量少なめ /和室 /庭 /シャワー付洗面台 /対面式キッチン /トイレ2ヶ所 /浴室1坪以上 /2階建 /複層ガラス /全室南向き /温水洗浄便座 /床下収納 /浴室に窓 /TVモニタ付インターホン /通風良好 /ウォークインクロゼット /全室2面採光 /開発分譲地内 | Price 価格 | | 45 million yen 4500万円 | Floor plan 間取り | | 4LDK 4LDK | Units sold 販売戸数 | | 1 units 1戸 | Land area 土地面積 | | 127.42 sq m (measured) 127.42m2(実測) | Building area 建物面積 | | 97.71 sq m (measured) 97.71m2(実測) | Driveway burden-road 私道負担・道路 | | Nothing, West 5.5m width 無、西5.5m幅 | Completion date 完成時期(築年月) | | June 2013 2013年6月 | Address 住所 | | Kanagawa Prefecture, Kohoku-ku, Yokohama, Shinohara-cho 神奈川県横浜市港北区篠原町 | Traffic 交通 | | JR Yokohama Line "Shin" walk 13 minutes Blue Line "Kishinekoen" walk 11 minutes JR横浜線「新横浜」歩13分 ブルーライン「岸根公園」歩11分
| Related links 関連リンク | | [Related Sites of this company] 【この会社の関連サイト】 | Person in charge 担当者より | | Rep Kageyama Tomoyuki Age: 30 Daigyokai experience: we deal with in seven years around the Kawasaki Yokohama. It and the surrounding environment of the area, Of course, please feel free to contact us any thing is if there is a thing that was worrisome for the property. Thank you. 担当者影山 智行年齢:30代業界経験:7年横浜川崎を中心に扱っております。エリアの事や周辺環境、もちろん物件について気になったことがあればどんなことでもお気軽にご相談ください。宜しくお願い致します。 | Contact お問い合せ先 | | TEL: 0800-603-9830 [Toll free] mobile phone ・ Also available from PHS Caller ID is not notified Please contact the "saw SUUMO (Sumo)" If it does not lead, If the real estate company TEL:0800-603-9830【通話料無料】携帯電話・PHSからもご利用いただけます 発信者番号は通知されません 「SUUMO(スーモ)を見た」と問い合わせください つながらない方、不動産会社の方は
| Building coverage, floor area ratio 建ぺい率・容積率 | | Fifty percent ・ 80% 50%・80% | Time residents 入居時期 | | Consultation 相談 | Land of the right form 土地の権利形態 | | Ownership 所有権 | Structure and method of construction 構造・工法 | | Wooden 2-story 木造2階建 | Use district 用途地域 | | One low-rise 1種低層 | Other limitations その他制限事項 | | Height district, Quasi-fire zones, Site area minimum Yes 高度地区、準防火地域、敷地面積最低限度有 | Overview and notices その他概要・特記事項 | | Contact: Kageyama Tomoyuki, Facilities: Public Water Supply, Centralized septic tank, City gas, Parking: car space 担当者:影山 智行、設備:公営水道、集中浄化槽、都市ガス、駐車場:カースペース | Company profile 会社概要 | | <Mediation> Governor of Kanagawa Prefecture (1) No. 027350 (Ltd.) Fast home Yubinbango223-0053 Yokohama-shi, Kanagawa-ku, Kohoku Tsunashimanishi 1-2-9 <仲介>神奈川県知事(1)第027350号(株)ファーストホーム〒223-0053 神奈川県横浜市港北区綱島西1-2-9 |
Local appearance photo現地外観写真  Local (July 2013) Shooting
現地(2013年7月)撮影
Livingリビング  Indoor (July 2013) Shooting
室内(2013年7月)撮影
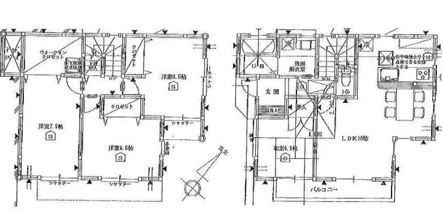
Floor plan間取り図  45 million yen, 4LDK, Land area 127.42 sq m , Building area 97.71 sq m Floor
4500万円、4LDK、土地面積127.42m2、建物面積97.71m2 間取り
Bathroom浴室  Indoor (July 2013) Shooting
室内(2013年7月)撮影
Kitchenキッチン  Indoor (July 2013) Shooting
室内(2013年7月)撮影
Non-living roomリビング以外の居室  Indoor (July 2013) Shooting
室内(2013年7月)撮影
Entrance玄関  Local (July 2013) Shooting
現地(2013年7月)撮影
Wash basin, toilet洗面台・洗面所  Indoor (July 2013) Shooting
室内(2013年7月)撮影
Receipt収納  Indoor (July 2013) Shooting
室内(2013年7月)撮影
Toiletトイレ  Indoor (July 2013) Shooting
室内(2013年7月)撮影
Non-living roomリビング以外の居室  Indoor (July 2013) Shooting
室内(2013年7月)撮影
 Indoor (July 2013) Shooting
室内(2013年7月)撮影
 Indoor (July 2013) Shooting
室内(2013年7月)撮影
Location
|