New Homes » Kanto » Kanagawa Prefecture » Kohoku-ku, Yokohama
 
| | Yokohama-shi, Kanagawa-ku, Kohoku 神奈川県横浜市港北区 |
| JR Yokohama Line "small desk" walk 8 minutes JR横浜線「小机」歩8分 |
| ◆ 11 / 25 to 2 million yen price cut! ! Designer house from Kozukue Station 8-minute walk. The rest is five buildings! ◆ With the roof of the roof balcony! Sense of openness is good! ◆ Local guides are available! ◆11/25に200万円値下げ!!小机駅から徒歩8分のデザイナーズ住宅。残り5棟です!◆屋上のルーフバルコニー付き!開放感良好です!◆現地案内可能です! |
| ◆ Property Point !! ・ A, C Building 2013 / 11 is scheduled for completion of the. D in the second quarter ~ F Building is next February. ・ An 8-minute walk popularity of designer houses from Kozukue Station ・ Although currently it is incomplete, Since there is a property that has been completed of the other site you will in a room look! You can guide! ◆ ◆ Detailed materials for this property, Current and local photos now, You can send another listing also collectively in the vicinity of Kozukue Station! First of all, please contact us ◆ ◆ Corresponding to the flat-35S, 2 along the line more accessible, System kitchen, Bathroom Dryer, LDK15 tatami mats or more, Washbasin with shower, Toilet 2 places, 2-story, Double-glazing, Warm water washing toilet seat, The window in the bathroom, With a TV monitor interphone .. ◆物件Point!!・A、C号棟は2013/11の完成予定です。第二期のD ~ F号棟は来年2月です。・人気のデザイナーズ住宅が小机駅から徒歩8分・現在未完成ですが、他現場の完成している物件がありますので室内ご覧になれます!ご案内可能です!◆◆この物件の詳しい資料、今現在の現地写真と、小机駅付近の別の物件情報もまとめてお送りする事ができます!まずはお問い合わせ下さい◆◆フラット35Sに対応、2沿線以上利用可、システムキッチン、浴室乾燥機、LDK15畳以上、シャワー付洗面台、トイレ2ヶ所、2階建、複層ガラス、温水洗浄便座、浴室に窓、TVモニタ付インターホン.. |
Features pickup 特徴ピックアップ | | Corresponding to the flat-35S / 2 along the line more accessible / System kitchen / Bathroom Dryer / LDK15 tatami mats or more / Washbasin with shower / Toilet 2 places / 2-story / Double-glazing / Warm water washing toilet seat / The window in the bathroom / TV monitor interphone / Dish washing dryer / City gas / Floor heating フラット35Sに対応 /2沿線以上利用可 /システムキッチン /浴室乾燥機 /LDK15畳以上 /シャワー付洗面台 /トイレ2ヶ所 /2階建 /複層ガラス /温水洗浄便座 /浴室に窓 /TVモニタ付インターホン /食器洗乾燥機 /都市ガス /床暖房 | Event information イベント情報 | | Local guide Board (Please be sure to ask in advance) schedule / Every Saturday, Sunday and public holidays time / 9:00 ~ 21:00 ※ Local guide the Board does not matter special time. For example, a weekday night 20 pm ~ , 21 pm ~ Also we will correspond in such. (Except Wednesday) Please feel free to tell us. -=-=-=-=-=-=-=-=-=-=-=-=-=-=-=-=-=-=-=--=-=-=-=-=-=-=-=-=-=-=-=-=-=-=-=-=-=-=--=-=-=-=-=-=-=-=-=-=-=-=-=-=-=-=-=-=-=-=-=-=- ■ ■ ■ Mortgage Consultation Notice ■ ■ ■ Tell ・ The Corporation, We have carried out at any time mortgage Consultation. You can estimate the properties that you can buy from the annual income, Loan estimates the property to be worried about, Any cost that take time to actually buy real estate? , Specific financial planning simulation Please leave. Such as anxiety and questions in the case of real estate purchase, In words that our professional staff is easy to understand even the general public, Carefully eliminated ・ We support. Also, Since this can be a guide when looking for property on the net, Please feel free to contact us first. →→→ toll-free [0800-808-9889] ←←← access map http: / / www.teru-c.co.jp / company / map.html ※ Wednesday will be a regular holiday. In the case of Wednesday, Please contact us from the bottom of the orange document request button. -=-=-=-=-=-=-=-=-=-=-=-=-=-=-=-=-=-=-=--=-=-=-=-=-=-=-=-=-=-=-=-=-=-=-=-=-=-=--=-=-=-=-=-=-=-=-=-=-=-=-=-=-=-=-=-=-=-=-=-=- 現地案内会(事前に必ずお問い合わせください)日程/毎週土日祝時間/9:00 ~ 21:00※現地案内会は特別時間は問いません。例えば平日夜20時 ~ 、21時 ~ などでも対応いたします。(水曜日を除く)お気軽にお申し付けください。-=-=-=-=-=-=-=-=-=-=-=-=-=-=-=-=-=-=-=--=-=-=-=-=-=-=-=-=-=-=-=-=-=-=-=-=-=-=--=-=-=-=-=-=-=-=-=-=-=-=-=-=-=-=-=-=-=-=-=-=-■■■住宅ローン相談会のお知らせ■■■テル・コーポレーションでは、随時住宅ローン相談会を実施しております。年収から買える物件を試算したり、気になる物件のローン試算、実際不動産を購入する際どんな費用がかかるの?なども含め、具体的な資金計画シュミレーションもお任せください。不動産ご購入の際の不安や疑問点などは、弊社の専門のスタッフが一般の方々でもわかりやすい言葉で、丁寧に解消・サポートいたします。また、ネットで物件を探す際の目安にもなりますので、まずお気軽にお問い合わせください。 →→→フリーダイヤル 【0800-808-9889】←←← アクセスマップ http://www.teru-c.co.jp/company/map.html ※水曜日は定休日となります。水曜日の場合は、下部のオレンジ色資料請求ボタンよりお問い合わせください。-=-=-=-=-=-=-=-=-=-=-=-=-=-=-=-=-=-=-=--=-=-=-=-=-=-=-=-=-=-=-=-=-=-=-=-=-=-=--=-=-=-=-=-=-=-=-=-=-=-=-=-=-=-=-=-=-=-=-=-=- | Price 価格 | | 37,958,000 yen ~ 42,958,000 yen 3795万8000円 ~ 4295万8000円 | Floor plan 間取り | | 4LDK 4LDK | Units sold 販売戸数 | | 5 units 5戸 | Total units 総戸数 | | 6 units 6戸 | Land area 土地面積 | | 92.69 sq m ~ 127.78 sq m (28.03 tsubo ~ 38.65 tsubo) (measured) 92.69m2 ~ 127.78m2(28.03坪 ~ 38.65坪)(実測) | Building area 建物面積 | | 97.28 sq m ~ 99.77 sq m (29.42 tsubo ~ 30.18 tsubo) (measured) 97.28m2 ~ 99.77m2(29.42坪 ~ 30.18坪)(実測) | Driveway burden-road 私道負担・道路 | | Road width: 5.5m, Driveway part 80.41m2 (equity 6 minutes of 1) Yes separately There consent driveway traffic D ・ E Building inclined portion including 道路幅:5.5m、私道部分80.41m2(持分6分の1)有 別途私道通行承諾あり D・E号棟傾斜部分含 | Completion date 完成時期(築年月) | | November 2013 2013年11月 | Address 住所 | | Yokohama-shi, Kanagawa-ku, Kohoku small desk-cho 神奈川県横浜市港北区小机町 | Traffic 交通 | | JR Yokohama Line "small desk" walk 8 minutes Blue Line "Shin-Yokohama" walk 28 minutes Blue Line "Kishinekoen" walk 28 minutes JR横浜線「小机」歩8分 ブルーライン「新横浜」歩28分 ブルーライン「岸根公園」歩28分
| Related links 関連リンク | | [Related Sites of this company] 【この会社の関連サイト】 | Person in charge 担当者より | | Personnel Masayuki Arai industry experience: 3 years Yokohama real estate company Tel ・ Corporation is Arai. Since I myself am from Yokohama, Because although that the property is, of course, will answer also in detail such as the characteristics of each area, Please feel free to contact us! 担当者荒井 誠之業界経験:3年横浜の不動産会社テル・コーポレーションの荒井です。私自身が横浜出身ですので、物件の事はもちろんですが各エリアの特徴なども詳しくお答えしますので、お気軽にご相談下さい! | Contact お問い合せ先 | | TEL: 0800-808-9889 [Toll free] mobile phone ・ Also available from PHS Caller ID is not notified Please contact the "saw SUUMO (Sumo)" If it does not lead, If the real estate company TEL:0800-808-9889【通話料無料】携帯電話・PHSからもご利用いただけます 発信者番号は通知されません 「SUUMO(スーモ)を見た」と問い合わせください つながらない方、不動産会社の方は
| Building coverage, floor area ratio 建ぺい率・容積率 | | Kenpei rate: 60%, Volume ratio: 200% 建ペい率:60%、容積率:200% | Time residents 入居時期 | | Consultation 相談 | Land of the right form 土地の権利形態 | | Ownership 所有権 | Structure and method of construction 構造・工法 | | Wooden 2-story 木造2階建 | Use district 用途地域 | | One dwelling 1種住居 | Overview and notices その他概要・特記事項 | | Contact: Masayuki Arai, Building confirmation number: No. 13KAK Ken確 02015 担当者:荒井 誠之、建築確認番号:第13KAK建確02015号 | Company profile 会社概要 | | <Mediation> Kanagawa Governor (2) No. 025129 (Ltd.) Tel ・ Corporation Yubinbango220-0011 Kanagawa Prefecture, Nishi-ku, Yokohama-shi Takashima 2-6-32 <仲介>神奈川県知事(2)第025129号(株)テル・コーポレーション〒220-0011 神奈川県横浜市西区高島2-6-32 |
Otherその他  ※ Photo saw from our office, Minato Mirai of landscape. Slowly in this open and full of office, You can leisurely review of the property! Yokohama ・ Tel Save on Kawasaki of real estate ・ Please leave Corporation.
※写真は当社オフィスから見た、みなとみらいの風景。この開放的溢れるオフィスでゆっくり、ゆったりと物件を吟味できます!横浜・川崎の不動産のことならテル・コーポレーションにお任せ下さい。
Local photos, including front road前面道路含む現地写真  Local 2013 / 10 / 27 shooting Foremost is A Building! C Building is the deepest Scheduled for completion in 2013 / 11 is! ◆ Local guides are available! First of all, please contact us.
現地2013/10/27撮影 一番手前がA号棟!C号棟は一番奥です 完成予定は2013/11です! ◆現地案内可能です!まずはお問い合わせ下さい。
Livingリビング  Indoor (2013 / 10 / 27 shooting) Living is a picture. Living is a bright and very open!
室内(2013/10/27撮影) リビング写真です。リビングは明るくとても開放的です!
Kitchenキッチン  Indoor (2013 / 10 / 27 shooting) Kitchen is a picture. The kitchen is the space is wide housework is easy!
室内(2013/10/27撮影) キッチン写真です。 キッチンスペースが広く家事がしやすいです!
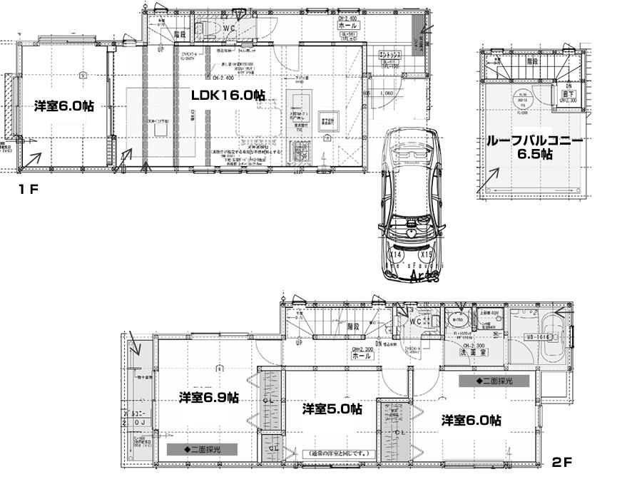
Floor plan間取り図  (A), Price 39,958,000 yen, 4LDK, Land area 97.1 sq m , Building area 99.77 sq m
(A)、価格3995万8000円、4LDK、土地面積97.1m2、建物面積99.77m2
Local appearance photo現地外観写真  Local 2013 / 10 / 27 shooting It should look photo of the C Building!
現地2013/10/27撮影 C号棟の外観写真になります!
Bathroom浴室  Indoor (2013 / 10 / 27 shooting) Bathroom is a picture. You can Oh it soak in slowly bathtub afield!
室内(2013/10/27撮影) 浴室写真です。足を伸ばしてゆっくり湯船につかることあできます!
Kitchenキッチン  Indoor (2013 / 10 / 27 shooting) Kitchen is a picture. The kitchen is equipped with storage
室内(2013/10/27撮影) キッチン写真です。 キッチンには収納付きです
Non-living roomリビング以外の居室  Indoor (2013 / 10 / 27 shooting) Western-style room is a picture.
室内(2013/10/27撮影) 洋室写真です。
Entrance玄関  Indoor (2013 / 10 / 27 shooting) Entrance is a photo.
室内(2013/10/27撮影) 玄関写真です。
Wash basin, toilet洗面台・洗面所  Indoor (2013 / 10 / 27 shooting) Washroom is a picture.
室内(2013/10/27撮影) 洗面所写真です。
Toiletトイレ  Indoor (2013 / 10 / 27 shooting) Toilet is a picture.
室内(2013/10/27撮影) トイレ写真です。
Primary school小学校  860m to Yokohama Municipal small desk Elementary School
横浜市立小机小学校まで860m
Other localその他現地  Local 2013 / 10 / 27 shooting It is a local photo of D Building!
現地2013/10/27撮影 D号棟の現地写真です!
Floor plan間取り図  (C), Price 37,958,000 yen, 4LDK, Land area 92.69 sq m , Building area 97.28 sq m
(C)、価格3795万8000円、4LDK、土地面積92.69m2、建物面積97.28m2
Local appearance photo現地外観写真  Local 2013 / 10 / 27 shooting It should look photo of A Building!
現地2013/10/27撮影 A号棟の外観写真になります!
Non-living roomリビング以外の居室  Indoor (2013 / 10 / 27 shooting) Western-style room is a picture.
室内(2013/10/27撮影) 洋室写真です。
Entrance玄関  Indoor (2013 / 10 / 27 shooting) Entrance is a photo.
室内(2013/10/27撮影) 玄関写真です。
 Other Equipment
その他設備
Junior high school中学校  790m to Yokohama Municipal Shirosato Junior High School
横浜市立城郷中学校まで790m
Other localその他現地  Local 2013 / 10 / 27 shooting It is a local photo of E Building!
現地2013/10/27撮影 E号棟の現地写真です!
Location
|