New Homes » Kanto » Kanagawa Prefecture » Kohoku-ku, Yokohama
 
| | Yokohama-shi, Kanagawa-ku, Kohoku 神奈川県横浜市港北区 |
| Tokyu Toyoko Line "Kikuna" walk 9 minutes 東急東横線「菊名」歩9分 |
| ● finally the final 1 building! ● imposing completed! New 2-story full of airy room! Birth in a quiet residential area! Exposure to the sun, Good view! LDK18.4 Pledge is a large space of relaxation! During upon your preview at any time! ●ついに最終1棟!●堂々完成!開放感に溢れるゆとりの新築2階建!閑静な住宅街に誕生!陽当り、眺望良好!LDK18.4帖は寛ぎの大空間です!ご内見随時承り中! |
| Immediate Available, LDK18 tatami mats or more, 2-story, Face-to-face kitchen, South balcony, Yang per good, Pre-ground survey, 2 along the line more accessible, Super close, Facing south, System kitchen, Bathroom Dryer, All room storage, A quiet residential area, Around traffic fewer, Shaping land, Washbasin with shower, Barrier-free, Toilet 2 places, Bathroom 1 tsubo or more, Double-glazing, Otobasu, Warm water washing toilet seat, TV with bathroom, Underfloor Storage, The window in the bathroom, TV monitor interphone, High-function toilet, Ventilation good, Good view, Dish washing dryer, Water filter, City gas, All rooms are two-sided lighting, A large gap between the neighboring house, Maintained sidewalk 即入居可、LDK18畳以上、2階建、対面式キッチン、南面バルコニー、陽当り良好、地盤調査済、2沿線以上利用可、スーパーが近い、南向き、システムキッチン、浴室乾燥機、全居室収納、閑静な住宅地、周辺交通量少なめ、整形地、シャワー付洗面台、バリアフリー、トイレ2ヶ所、浴室1坪以上、複層ガラス、オートバス、温水洗浄便座、TV付浴室、床下収納、浴室に窓、TVモニタ付インターホン、高機能トイレ、通風良好、眺望良好、食器洗乾燥機、浄水器、都市ガス、全室2面採光、隣家との間隔が大きい、整備された歩道 |
Features pickup 特徴ピックアップ | | Pre-ground survey / Immediate Available / 2 along the line more accessible / LDK18 tatami mats or more / Super close / Facing south / System kitchen / Bathroom Dryer / Yang per good / All room storage / A quiet residential area / Around traffic fewer / Shaping land / Washbasin with shower / Face-to-face kitchen / Barrier-free / Toilet 2 places / Bathroom 1 tsubo or more / 2-story / South balcony / Double-glazing / Otobasu / Warm water washing toilet seat / TV with bathroom / Underfloor Storage / The window in the bathroom / TV monitor interphone / High-function toilet / Ventilation good / Good view / Dish washing dryer / Water filter / City gas / All rooms are two-sided lighting / A large gap between the neighboring house / Maintained sidewalk 地盤調査済 /即入居可 /2沿線以上利用可 /LDK18畳以上 /スーパーが近い /南向き /システムキッチン /浴室乾燥機 /陽当り良好 /全居室収納 /閑静な住宅地 /周辺交通量少なめ /整形地 /シャワー付洗面台 /対面式キッチン /バリアフリー /トイレ2ヶ所 /浴室1坪以上 /2階建 /南面バルコニー /複層ガラス /オートバス /温水洗浄便座 /TV付浴室 /床下収納 /浴室に窓 /TVモニタ付インターホン /高機能トイレ /通風良好 /眺望良好 /食器洗乾燥機 /浄水器 /都市ガス /全室2面採光 /隣家との間隔が大きい /整備された歩道 | Event information イベント情報 | | Imposing completed! Please feel free to tell us is your preview hope etc.! 堂々完成!ご内見希望等はお気軽にお申し付けください! | Price 価格 | | 44,950,000 yen 4495万円 | Floor plan 間取り | | 4LDK 4LDK | Units sold 販売戸数 | | 1 units 1戸 | Total units 総戸数 | | 4 units 4戸 | Land area 土地面積 | | 103.72 sq m (31.37 tsubo) (measured) 103.72m2(31.37坪)(実測) | Building area 建物面積 | | 91.91 sq m (27.80 tsubo) (measured) 91.91m2(27.80坪)(実測) | Driveway burden-road 私道負担・道路 | | Road width: northeast side 4m public road 道路幅:北東側4m公道 | Completion date 完成時期(築年月) | | 2013 in late January 2013年1月下旬 | Address 住所 | | Yokohama-shi, Kanagawa-ku, Kohoku Kikuna 5 神奈川県横浜市港北区菊名5 | Traffic 交通 | | Tokyu Toyoko Line "Kikuna" walk 9 minutes Tokyu Toyoko Line "Okurayama" walk 19 minutes JR Yokohama Line "Kikuna" walk 9 minutes 東急東横線「菊名」歩9分 東急東横線「大倉山」歩19分 JR横浜線「菊名」歩9分
| Person in charge 担当者より | | It marked with a charge for each person in charge of real-estate and building FP customers. Realistic agent get by all the support from a variety of angles to the starting point of the real estate, It is unceasing at home company of smile! First, please feel free to contact us! Staff, We look forward to! 担当者宅建FPお客様毎に担当が付きます。リアルエージェントは不動産を起点に様々な角度からあらゆるサポートをさせて頂く、笑顔の絶えないアットホームな会社です!まずはお気軽にご相談下さい!スタッフ一同、心よりお待ちしております! | Contact お問い合せ先 | | TEL: 0800-809-8208 [Toll free] mobile phone ・ Also available from PHS Caller ID is not notified Please contact the "saw SUUMO (Sumo)" If it does not lead, If the real estate company TEL:0800-809-8208【通話料無料】携帯電話・PHSからもご利用いただけます 発信者番号は通知されません 「SUUMO(スーモ)を見た」と問い合わせください つながらない方、不動産会社の方は
| Building coverage, floor area ratio 建ぺい率・容積率 | | Kenpei rate: 50%, Volume ratio: 100% 建ペい率:50%、容積率:100% | Time residents 入居時期 | | Immediate available 即入居可 | Land of the right form 土地の権利形態 | | Ownership 所有権 | Structure and method of construction 構造・工法 | | Wooden 2-story 木造2階建 | Use district 用途地域 | | One low-rise 1種低層 | Land category 地目 | | Residential land 宅地 | Other limitations その他制限事項 | | Quasi-fire zones 準防火地域 | Overview and notices その他概要・特記事項 | | Contact: marked with a charge for each customer. , Building confirmation number: No. 08258 担当者:お客様毎に担当が付きます。、建築確認番号:08258号 | Company profile 会社概要 | | <Marketing alliance (mediated)> Governor of Kanagawa Prefecture (1) No. 028428 (Ltd.) realistic agent Yubinbango221-0825 Kanagawa Prefecture, Kanagawa-ku, Yokohama-shi Sorimachi 1-7-1 US-1 building the third floor <販売提携(媒介)>神奈川県知事(1)第028428号(株)リアルエージェント〒221-0825 神奈川県横浜市神奈川区反町1-7-1 US‐1ビル3階 |
Local appearance photo現地外観写真  Appearance (You can preview! )
外観(内見できます!)
Livingリビング  dining
ダイニング
View photos from the dwelling unit住戸からの眺望写真  Offer is Mt. Fuji on a clear day!
晴れた日には富士山が望めます!
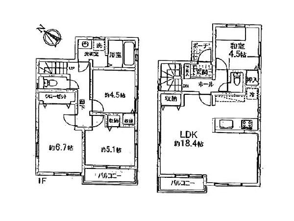
Floor plan間取り図  (4 Building), Price 44,950,000 yen, 4LDK, Land area 103.72 sq m , Building area 91.91 sq m
(4号棟)、価格4495万円、4LDK、土地面積103.72m2、建物面積91.91m2
Local appearance photo現地外観写真  Appearance (You can preview! )
外観(内見できます!)
 Living
リビング
Bathroom浴室  System bus
システムバス
Kitchenキッチン  System kitchen
システムキッチン
Non-living roomリビング以外の居室  Japanese style room
和室
Wash basin, toilet洗面台・洗面所  Bathroom vanity
洗面化粧台
 Toilet
トイレ
Local photos, including front road前面道路含む現地写真  Frontal road
前面道路
Supermarketスーパー  700m to Summit
サミットまで700m
Livingリビング  Living storage
リビング収納
Park公園  900m until Kikuna Sakurayama park
菊名桜山公園まで900m
Primary school小学校  Kikuna until elementary school 200m
菊名小学校まで200m
Junior high school中学校  1750m to Charter Middle School
大綱中学校まで1750m
Station駅  Kikuna 700m to the Train Station
菊名駅まで700m
Location
|