New Homes » Kanto » Kanagawa Prefecture » Kohoku-ku, Yokohama
 
| | Yokohama-shi, Kanagawa-ku, Kohoku 神奈川県横浜市港北区 |
| Tokyu Toyoko Line "Tsunashima" walk 9 minutes 東急東横線「綱島」歩9分 |
| Produce a warm family time is built-in garage all the living room spacious living space face-to-face kitchen with storage space to protect the important car from "Tsunashima Station" flat walk 9 minutes rain and wind 「綱島駅」平坦徒歩9分雨風から大切な愛車を守るビルトインガレージ全居室収納スペース付で広々住空間対面キッチンがご家族の温かい時間を演出 |
| ◆ All three buildings of new construction condominiums ◆ All building common LDK15 quires more Face-to-face kitchen ◆ Section of the southeast corner lot there ◆ Flat 35S available ◆ 10 years insurance housing with peace of mind ◆全3棟の新築分譲住宅◆全棟共通 LDK15帖以上 対面キッチン◆東南角地の区画あり◆フラット35S利用可能◆安心の10年保険付き住宅 |
Features pickup 特徴ピックアップ | | Facing south / System kitchen / Bathroom Dryer / Yang per good / Flat to the station / LDK15 tatami mats or more / Washbasin with shower / Face-to-face kitchen / Toilet 2 places / Bathroom 1 tsubo or more / South balcony / The window in the bathroom / TV monitor interphone / All living room flooring / Built garage / Three-story or more / City gas / All rooms are two-sided lighting / Flat terrain 南向き /システムキッチン /浴室乾燥機 /陽当り良好 /駅まで平坦 /LDK15畳以上 /シャワー付洗面台 /対面式キッチン /トイレ2ヶ所 /浴室1坪以上 /南面バルコニー /浴室に窓 /TVモニタ付インターホン /全居室フローリング /ビルトガレージ /3階建以上 /都市ガス /全室2面採光 /平坦地 | Price 価格 | | 35,960,000 yen ・ 37,960,000 yen 3596万円・3796万円 | Floor plan 間取り | | 3LDK 3LDK | Units sold 販売戸数 | | 2 units 2戸 | Total units 総戸数 | | 3 units 3戸 | Land area 土地面積 | | 51 sq m ・ 54.51 sq m (15.42 tsubo ・ 16.48 tsubo) (Registration) 51m2・54.51m2(15.42坪・16.48坪)(登記) | Building area 建物面積 | | 96.05 sq m ・ 98.53 sq m (29.05 tsubo ・ 29.80 tsubo) (Registration) 96.05m2・98.53m2(29.05坪・29.80坪)(登記) | Driveway burden-road 私道負担・道路 | | Road width: 6.7m ~ 7.6m 道路幅:6.7m ~ 7.6m | Completion date 完成時期(築年月) | | 2013 mid-December 2013年12月中旬 | Address 住所 | | Yokohama-shi, Kanagawa-ku, Kohoku Tsunashimahigashi 6 神奈川県横浜市港北区綱島東6 | Traffic 交通 | | Tokyu Toyoko Line "Tsunashima" walk 9 minutes Green Line "Hiyoshihon town" walk 30 minutes Tokyu Toyoko Line "Okurayama" walk 30 minutes 東急東横線「綱島」歩9分 グリーンライン「日吉本町」歩30分 東急東横線「大倉山」歩30分
| Related links 関連リンク | | [Related Sites of this company] 【この会社の関連サイト】 | Person in charge 担当者より | | [Regarding this property.] Kohoku-ku ・ Tsurumi-ku, ・ Leave it to the property if the Republic of home sales in Kanagawa-ku,. There are a lot of property information, such as the non-public property. Please feel free to contact. 【この物件について】港北区・鶴見区・神奈川区の物件なら共和住宅販売へお任せ。未公開物件など物件情報たくさんあります。お気軽にご連絡ください。 | Contact お問い合せ先 | | TEL: 0800-602-5414 [Toll free] mobile phone ・ Also available from PHS Caller ID is not notified Please contact the "saw SUUMO (Sumo)" If it does not lead, If the real estate company TEL:0800-602-5414【通話料無料】携帯電話・PHSからもご利用いただけます 発信者番号は通知されません 「SUUMO(スーモ)を見た」と問い合わせください つながらない方、不動産会社の方は
| Building coverage, floor area ratio 建ぺい率・容積率 | | Kenpei rate: 60%, Volume ratio: 200% 建ペい率:60%、容積率:200% | Time residents 入居時期 | | Consultation 相談 | Land of the right form 土地の権利形態 | | Ownership 所有権 | Structure and method of construction 構造・工法 | | Wooden three-story 木造3階建 | Use district 用途地域 | | Semi-industrial 準工業 | Land category 地目 | | Residential land 宅地 | Overview and notices その他概要・特記事項 | | Building confirmation number: 01802 建築確認番号:01802 | Company profile 会社概要 | | <Mediation> Governor of Kanagawa Prefecture (1) No. 027655 (Ltd.) Republic of home sales Yubinbango221-0014 Kanagawa Prefecture, Kanagawa-ku, Yokohama-shi Irie 1-33-28 <仲介>神奈川県知事(1)第027655号(株)共和住宅販売〒221-0014 神奈川県横浜市神奈川区入江1-33-28 |
Local appearance photo現地外観写真  Local shooting
現地撮影
Local photos, including front road前面道路含む現地写真  Local shooting
現地撮影
Floor plan間取り図  (B Building), Price 37,960,000 yen, 3LDK, Land area 51 sq m , Building area 98.53 sq m
(B号棟)、価格3796万円、3LDK、土地面積51m2、建物面積98.53m2
Shopping centreショッピングセンター  914m until ion Komaoka shop
イオン駒岡店まで914m
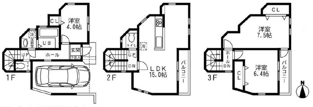
Floor plan間取り図  (C Building), Price 35,960,000 yen, 3LDK, Land area 54.51 sq m , Building area 96.05 sq m
(C号棟)、価格3596万円、3LDK、土地面積54.51m2、建物面積96.05m2
Shopping centreショッピングセンター  Until Life Garden Tsunashima 1535m
ライフガーデン綱島まで1535m
Drug storeドラッグストア  Uerushia 523m to Yokohama Tsunashimahigashi shop
ウエルシア横浜綱島東店まで523m
Junior high school中学校  1704m to Yokohama Municipal Tarumachi Junior High School
横浜市立樽町中学校まで1704m
Primary school小学校  559m to Yokohama Municipal Tsunashimahigashi Elementary School
横浜市立綱島東小学校まで559m
Post office郵便局  576m to Yokohama south Tsunashima post office
横浜南綱島郵便局まで576m
Park公園  1652m to Tsurumi Tarumachi park
鶴見川樽町公園まで1652m
Location
|