|
|
Yokohama-shi, Kanagawa-ku, Kohoku
神奈川県横浜市港北区
|
|
Blue Line "neoptile" walk 11 minutes
ブルーライン「新羽」歩11分
|
|
System kitchen, Bathroom Dryer, Yang per good, LDK15 tatami mats or more, Face-to-face kitchen, Toilet 2 places, Flat to the station, Double-glazing, Dish washing dryer, Water filter, Three-story or more, Living stairs, City gas
システムキッチン、浴室乾燥機、陽当り良好、LDK15畳以上、対面式キッチン、トイレ2ヶ所、駅まで平坦、複層ガラス、食器洗乾燥機、浄水器、3階建以上、リビング階段、都市ガ
|
|
System kitchen, Bathroom Dryer, Yang per good, LDK15 tatami mats or more, Face-to-face kitchen, Toilet 2 places, Flat to the station, Double-glazing, Dish washing dryer, Water filter, Three-story or more, Living stairs, City gas, Floor heating
システムキッチン、浴室乾燥機、陽当り良好、LDK15畳以上、対面式キッチン、トイレ2ヶ所、駅まで平坦、複層ガラス、食器洗乾燥機、浄水器、3階建以上、リビング階段、都市ガス、床暖房
|
Features pickup 特徴ピックアップ | | System kitchen / Bathroom Dryer / Yang per good / Flat to the station / LDK15 tatami mats or more / Face-to-face kitchen / Toilet 2 places / Double-glazing / Dish washing dryer / Water filter / Three-story or more / Living stairs / City gas / Floor heating システムキッチン /浴室乾燥機 /陽当り良好 /駅まで平坦 /LDK15畳以上 /対面式キッチン /トイレ2ヶ所 /複層ガラス /食器洗乾燥機 /浄水器 /3階建以上 /リビング階段 /都市ガス /床暖房 |
Price 価格 | | 42,800,000 yen ・ 43,800,000 yen 4280万円・4380万円 |
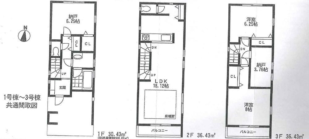
Floor plan 間取り | | 2LDK + 2S (storeroom) 2LDK+2S(納戸) |
Units sold 販売戸数 | | 3 units 3戸 |
Total units 総戸数 | | 4 units 4戸 |
Land area 土地面積 | | 62.64 sq m ~ 64.78 sq m (measured) 62.64m2 ~ 64.78m2(実測) |
Building area 建物面積 | | 111.36 sq m (measured) 111.36m2(実測) |
Driveway burden-road 私道負担・道路 | | Road width: 7.2m 道路幅:7.2m |
Completion date 完成時期(築年月) | | 2013 end of December 2013年12月末 |
Address 住所 | | Yokohama-shi, Kanagawa-ku, Kohoku Shin'yoshida east 8 神奈川県横浜市港北区新吉田東8 |
Traffic 交通 | | Blue Line "neoptile" walk 11 minutes Blue Line "north of Shin-Yokohama" walk 24 minutes Tokyu Toyoko Line "Tsunashima" walk 28 minutes ブルーライン「新羽」歩11分 ブルーライン「北新横浜」歩24分 東急東横線「綱島」歩28分
|
Related links 関連リンク | | [Related Sites of this company] 【この会社の関連サイト】 |
Person in charge 担当者より | | Person in charge of real-estate and building in the buttocks Taiki Age: 40s 担当者宅建殿内 泰喜年齢:40代 |
Contact お問い合せ先 | | TEL: 0800-603-0785 [Toll free] mobile phone ・ Also available from PHS Caller ID is not notified Please contact the "saw SUUMO (Sumo)" If it does not lead, If the real estate company TEL:0800-603-0785【通話料無料】携帯電話・PHSからもご利用いただけます 発信者番号は通知されません 「SUUMO(スーモ)を見た」と問い合わせください つながらない方、不動産会社の方は
|
Most price range 最多価格帯 | | 42 million yen (2 units) 4200万円台(2戸) |
Building coverage, floor area ratio 建ぺい率・容積率 | | Kenpei rate: 60%, Volume ratio: 200% 建ペい率:60%、容積率:200% |
Time residents 入居時期 | | Consultation 相談 |
Land of the right form 土地の権利形態 | | Ownership 所有権 |
Structure and method of construction 構造・工法 | | Wooden three-story 木造3階建 |
Use district 用途地域 | | Semi-industrial 準工業 |
Land category 地目 | | Residential land 宅地 |
Overview and notices その他概要・特記事項 | | Contact: Tonouchi Taiki, Building confirmation number: 01905 other 担当者:殿内 泰喜、建築確認番号:01905他 |
Company profile 会社概要 | | <Mediation> Minister of Land, Infrastructure and Transport (7) No. 003744 No. Asahi Land and Building Co., Ltd. Zhongshan branch sales Division 1 Yubinbango226-0011 Yokohama-shi, Kanagawa-ku, green Nakayama-cho, 306-1 Miyoshi's seed building first floor <仲介>国土交通大臣(7)第003744号朝日土地建物(株)中山支店営業1課〒226-0011 神奈川県横浜市緑区中山町306-1 ミヨシズシードビル1階 |