New Homes » Kanto » Kanagawa Prefecture » Kohoku-ku, Yokohama
 
| | Yokohama-shi, Kanagawa-ku, Kohoku 神奈川県横浜市港北区 |
| Green Line "Takada" walk 6 minutes グリーンライン「高田」歩6分 |
| A quiet residential area the river is also a well-equipped near the compartment Pat housed in two walk-in closet 川も近く区画の整った閑静な住宅街 2つのウォークインクローゼットで収納もバッチリ |
| 2 along the line more accessible, LDK20 tatami mats or more, Southwestward, Three-story or more 2沿線以上利用可、LDK20畳以上、南西向き、3階建以上 |
Features pickup 特徴ピックアップ | | 2 along the line more accessible / LDK20 tatami mats or more / Southwestward / Three-story or more 2沿線以上利用可 /LDK20畳以上 /南西向き /3階建以上 | Price 価格 | | 50,600,000 yen 5060万円 | Floor plan 間取り | | 4LDK 4LDK | Units sold 販売戸数 | | 1 units 1戸 | Total units 総戸数 | | 1 units 1戸 | Land area 土地面積 | | 109.35 sq m (registration) 109.35m2(登記) | Building area 建物面積 | | 79.83 sq m (registration) 79.83m2(登記) | Driveway burden-road 私道負担・道路 | | Nothing 無 | Completion date 完成時期(築年月) | | March 2013 2013年3月 | Address 住所 | | Yokohama-shi, Kanagawa-ku, Kohoku Shin'yoshida Higashi 2-chome 神奈川県横浜市港北区新吉田東2丁目 | Traffic 交通 | | Green Line "Takada" walk 6 minutes Green Line "Hiyoshihon town" walk 20 minutes Green Line "Higashiyamata" walk 24 minutes グリーンライン「高田」歩6分 グリーンライン「日吉本町」歩20分 グリーンライン「東山田」歩24分
| Related links 関連リンク | | [Related Sites of this company] 【この会社の関連サイト】 | Contact お問い合せ先 | | TEL: 0800-602-5836 [Toll free] mobile phone ・ Also available from PHS Caller ID is not notified Please contact the "saw SUUMO (Sumo)" If it does not lead, If the real estate company TEL:0800-602-5836【通話料無料】携帯電話・PHSからもご利用いただけます 発信者番号は通知されません 「SUUMO(スーモ)を見た」と問い合わせください つながらない方、不動産会社の方は
| Building coverage, floor area ratio 建ぺい率・容積率 | | 60% ・ 200% 60%・200% | Time residents 入居時期 | | Consultation 相談 | Land of the right form 土地の権利形態 | | Ownership 所有権 | Structure and method of construction 構造・工法 | | Wooden three-story 木造3階建 | Use district 用途地域 | | One dwelling 1種住居 | Overview and notices その他概要・特記事項 | | Building confirmation number:., Parking: Garage 建築確認番号:.、駐車場:車庫 | Company profile 会社概要 | | <Mediation> Governor of Kanagawa Prefecture (1) the first 027,887 No. living space Real Estate Sales Co., Ltd. Yubinbango231-0011 Yokohama-shi, Kanagawa, Naka-ku, Ota-cho, 1-1 Kanagawa living space building <仲介>神奈川県知事(1)第027887号住空間不動産販売(株)〒231-0011 神奈川県横浜市中区太田町1-1 神奈川住空間ビル |
Rendering (appearance)完成予想図(外観)  Complete image
完成イメージ
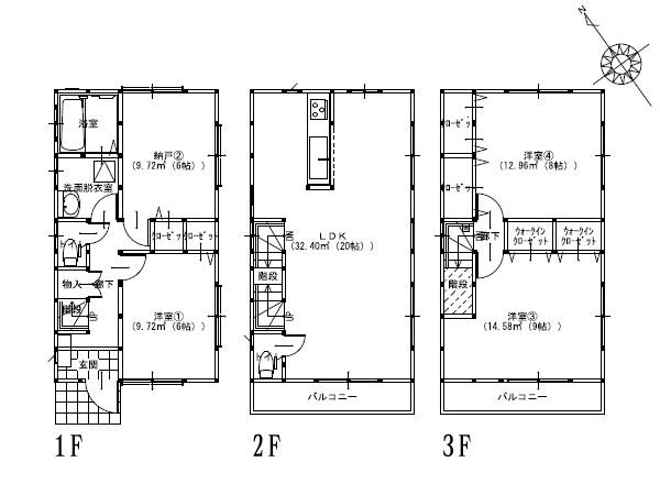
Floor plan間取り図  50,600,000 yen, 4LDK, Land area 109.35 sq m , Building area 79.83 sq m floor plan
5060万円、4LDK、土地面積109.35m2、建物面積79.83m2 間取り図
Supermarketスーパー  843m until Inageya Yokohama Tsunashima shop
いなげや横浜綱島店まで843m
Junior high school中学校  923m to Yokohama Municipal Nitta junior high school
横浜市立新田中学校まで923m
 1307m to Yokohama Municipal Hiyoshidai West Junior High School
横浜市立日吉台西中学校まで1307m
 1530m to Yokohama Municipal Takada Junior High School
横浜市立高田中学校まで1530m
Primary school小学校  Yokohama Municipal Shin'yoshida 936m until the second elementary school
横浜市立新吉田第二小学校まで936m
 1070m to Yokohama Municipal Takatahigashi Elementary School
横浜市立高田東小学校まで1070m
 1250m to Yokohama Municipal Shin'yoshida Elementary School
横浜市立新吉田小学校まで1250m
Kindergarten ・ Nursery幼稚園・保育園  381m until Elmer nursery of forest
森のエルマー保育園まで381m
Location
|