New Homes » Kanto » Kanagawa Prefecture » Kohoku-ku, Yokohama
 
| | Yokohama-shi, Kanagawa-ku, Kohoku 神奈川県横浜市港北区 |
| JR Yokohama Line "small desk" walk 10 minutes JR横浜線「小机」歩10分 |
| Good location, a 10-minute walk from the station ☆ Flat 35S corresponding ☆ Spacious living-dining, Face-to-face counter kitchen ☆ With a large Grenier ☆ With underground garage ☆ All room pair glass ☆ 1F shutter 駅より徒歩10分の好立地 ☆フラット35S対応 ☆広々リビングダイニング、対面カウンターキッチン ☆大型グルニエ付 ☆地下ガレージ付 ☆全居室ペアガラス ☆1Fシャッター |
| Immediate Available, Or more before road 6m, 2 along the line more accessible, LDK15 tatami mats or more, Yang per good, All room 6 tatami mats or more, Pre-ground survey, Seismic fit, Super close, It is close to the city, Summer resort, System kitchen, Bathroom Dryer, All room storage, A quiet residential area, Around traffic fewerese-style room, Washbasin with shower, Face-to-face kitchen, Wide balcony, Toilet 2 places, Bathroom 1 tsubo or more, 2-story, South balcony, Double-glazing, Otobasu, Warm water washing toilet seat, Nantei, Underfloor Storage, The window in the bathroom, TV monitor interphone, High-function toilet, Leafy residential area, Urban neighborhood, Mu front building, Ventilation good, Water filter, City gas, All rooms are two-sided lighting, A large gap between the neighboring house, Maintained sidewalk, Flat terrain 即入居可、前道6m以上、2沿線以上利用可、LDK15畳以上、陽当り良好、全居室6畳以上、地盤調査済、耐震適合、スーパーが近い、市街地が近い、避暑地、システムキッチン、浴室乾燥機、全居室収納、閑静な住宅地、周辺交通量少なめ、和室、シャワー付洗面台、対面式キッチン、ワイドバルコニー、トイレ2ヶ所、浴室1坪以上、2階建、南面バルコニー、複層ガラス、オートバス、温水洗浄便座、南庭、床下収納、浴室に窓、TVモニタ付インターホン、高機能トイレ、緑豊かな住宅地、都市近郊、前面棟無、通風良好、浄水器、都市ガス、全室2面採光、隣家との間隔が大きい、整備された歩道、平坦地 |
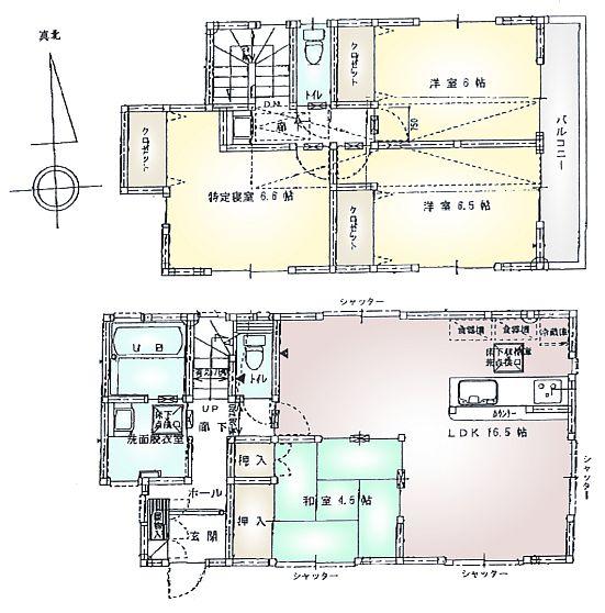
Features pickup 特徴ピックアップ | | Pre-ground survey / Seismic fit / Immediate Available / 2 along the line more accessible / Super close / It is close to the city / Summer resort / System kitchen / Bathroom Dryer / Yang per good / All room storage / A quiet residential area / LDK15 tatami mats or more / Around traffic fewer / Or more before road 6m / Japanese-style room / Washbasin with shower / Face-to-face kitchen / Wide balcony / Toilet 2 places / Bathroom 1 tsubo or more / 2-story / South balcony / Double-glazing / Otobasu / Warm water washing toilet seat / Nantei / Underfloor Storage / The window in the bathroom / TV monitor interphone / High-function toilet / Leafy residential area / Urban neighborhood / Mu front building / Ventilation good / All room 6 tatami mats or more / Water filter / City gas / All rooms are two-sided lighting / A large gap between the neighboring house / Maintained sidewalk / Flat terrain 地盤調査済 /耐震適合 /即入居可 /2沿線以上利用可 /スーパーが近い /市街地が近い /避暑地 /システムキッチン /浴室乾燥機 /陽当り良好 /全居室収納 /閑静な住宅地 /LDK15畳以上 /周辺交通量少なめ /前道6m以上 /和室 /シャワー付洗面台 /対面式キッチン /ワイドバルコニー /トイレ2ヶ所 /浴室1坪以上 /2階建 /南面バルコニー /複層ガラス /オートバス /温水洗浄便座 /南庭 /床下収納 /浴室に窓 /TVモニタ付インターホン /高機能トイレ /緑豊かな住宅地 /都市近郊 /前面棟無 /通風良好 /全居室6畳以上 /浄水器 /都市ガス /全室2面採光 /隣家との間隔が大きい /整備された歩道 /平坦地 | Price 価格 | | 43 million yen 4300万円 | Floor plan 間取り | | 4LDK 4LDK | Units sold 販売戸数 | | 1 units 1戸 | Total units 総戸数 | | 6 units 6戸 | Land area 土地面積 | | 132.36 sq m (registration) 132.36m2(登記) | Building area 建物面積 | | 97.7 sq m (measured) 97.7m2(実測) | Driveway burden-road 私道負担・道路 | | Road width: 6.5m, Concrete pavement 道路幅:6.5m、コンクリート舗装 | Completion date 完成時期(築年月) | | In late August 2013 2013年8月下旬 | Address 住所 | | Yokohama-shi, Kanagawa-ku, Kohoku small desk-cho 神奈川県横浜市港北区小机町 | Traffic 交通 | | JR Yokohama Line "small desk" walk 10 minutes JR Yokohama Line "lintel" walk 30 minutes Blue Line "Shin-Yokohama" walk 30 minutes JR横浜線「小机」歩10分 JR横浜線「鴨居」歩30分 ブルーライン「新横浜」歩30分
| Related links 関連リンク | | [Related Sites of this company] 【この会社の関連サイト】 | Person in charge 担当者より | | Person in charge of real-estate and building Sasaki IchiMinoru Age: 40 Daigyokai Experience: 18 years 担当者宅建佐々木 一稔年齢:40代業界経験:18年 | Contact お問い合せ先 | | TEL: 0800-600-6698 [Toll free] mobile phone ・ Also available from PHS Caller ID is not notified Please contact the "saw SUUMO (Sumo)" If it does not lead, If the real estate company TEL:0800-600-6698【通話料無料】携帯電話・PHSからもご利用いただけます 発信者番号は通知されません 「SUUMO(スーモ)を見た」と問い合わせください つながらない方、不動産会社の方は
| Building coverage, floor area ratio 建ぺい率・容積率 | | Kenpei rate: 60%, Volume ratio: 200% 建ペい率:60%、容積率:200% | Time residents 入居時期 | | Immediate available 即入居可 | Land of the right form 土地の権利形態 | | Ownership 所有権 | Structure and method of construction 構造・工法 | | Wooden 2-story (framing method) 木造2階建(軸組工法) | Use district 用途地域 | | One dwelling 1種住居 | Land category 地目 | | Residential land 宅地 | Other limitations その他制限事項 | | Regulations have by the Landscape Act, Height district, Quasi-fire zones, Irregular land, On-site step Yes, Contact road and the step Yes 景観法による規制有、高度地区、準防火地域、不整形地、敷地内段差有、接道と段差有 | Overview and notices その他概要・特記事項 | | Contact: Sasaki IchiMinoru, Building confirmation number: 01508 担当者:佐々木 一稔、建築確認番号:01508 | Company profile 会社概要 | | <Mediation> Governor of Tokyo (1) No. 089264 (Corporation) Tokyo Metropolitan Government Building Lots and Buildings Transaction Business Association (Corporation) metropolitan area real estate Fair Trade Council member (Ltd.) Urban Home Machida branch Yubinbango194-0022 Tokyo Machida Morino 1-34-10 first Yazawa building first floor <仲介>東京都知事(1)第089264号(公社)東京都宅地建物取引業協会会員 (公社)首都圏不動産公正取引協議会加盟(株)アーバンホーム町田支店〒194-0022 東京都町田市森野1-34-10 第1矢沢ビル1階 |
Floor plan間取り図  (E Building), Price 43 million yen, 4LDK, Land area 132.36 sq m , Building area 97.7 sq m
(E号棟)、価格4300万円、4LDK、土地面積132.36m2、建物面積97.7m2
The entire compartment Figure全体区画図  layout drawing
配置図
 Supermarket
スーパー
 Primary school
小学校
 Junior high school
中学校
Location
|