New Homes » Kanto » Kanagawa Prefecture » Yokohama City Konan-ku


Yokohama-shi, Kanagawa-ku, Konan
JR Negishi Line "Konandai" walk 19 minutes
Model house published in! New urban area of ​​European taste on top of the southern tiers of the hill, All 12 House birth! !
Features pickup
Design house performance with evaluation / Measures to conserve energy / Energy-saving water heaters / Bathroom Dryer / A quiet residential area / Security enhancement / Toilet 2 places / Otobasu / Warm water washing toilet seat / Leafy residential area / All living room flooring / Located on a hill / Floor heating
Event information
Model House (please visitors to direct local) schedule / During the public time / 10:00 ~ 18:00 weekday of your visit, please contact us in advance (12 / 27~1 / 3 will be taken as the winter holiday)
Property name
Glowing Square Yokohama Konandai / Notice advertising
Price
Undecided
Floor plan
3LDK ~ 4LDK
Units sold
Undecided
Total units
12 units
Land area
125.04 sq m ~ 141.72 sq m
Building area
96.46 sq m ~ 102.4 sq m
Driveway burden-road
Road width: 4.5m ・ 6.5m, Asphaltic pavement
Completion date
2013 in late November
Address
Yokohama-shi, Kanagawa-ku, Konan Hinominami 7-6202-180
Traffic
JR Negishi Line "Konandai" walk 19 minutes
JR Negishi Line "Hongodai" walk 18 minutes
Related links
[Related Sites of this company]
Contact
Information Desk TEL: 0120-567-033 please contact the "saw SUUMO (Sumo)"
Sale schedule
Sales start from early February ※ price ・ Units sold is undecided. ※ Acts that lead to secure the contract or reservation of the application and the application order to sale can not be absolutely. ※ For sale period classification and sale dwelling unit is undetermined, Property data are inscribed thing of all sales target dwelling unit. Determination information is explicitly in the new sale ad.
Building coverage, floor area ratio
Kenpei rate: 40%, Volume ratio: 80%
Time residents
1 month after the contract
Land of the right form
Ownership
Structure and method of construction
Wooden 2-story (framing method)
Construction
Ltd. Hosodakomuten
Use district
One low-rise
Land category
Residential land
Overview and notices
Building confirmation number: No. 13UDIW Ken No. 00854 (2013 June 14 date) Other
Company profile
<Seller> Minister of Land, Infrastructure and Transport (13) No. 000483 (one company) National Housing Industry Association (Corporation) metropolitan area real estate Fair Trade Council member (Ltd.) Hosodakomuten Yubinbango166-0004 Suginami-ku, Tokyo Asagayaminami 3-35-21


Cityscape Rendering
Cityscape Rendering

Living

Living. Living-dining ((2013 November shooting) Sun plug widely spacious living
Living-dining ((2013 November shooting) Sun plug widely spacious living

Kitchen

Kitchen. Kitchen (2013 November shooting) Face-to-face counter-type kitchen ・ Dishwasher ・ All-in-one water supply plug ・ Drawer storage of soft closers
Kitchen (2013 November shooting) Face-to-face counter-type kitchen ・ Dishwasher ・ All-in-one water supply plug ・ Drawer storage of soft closers

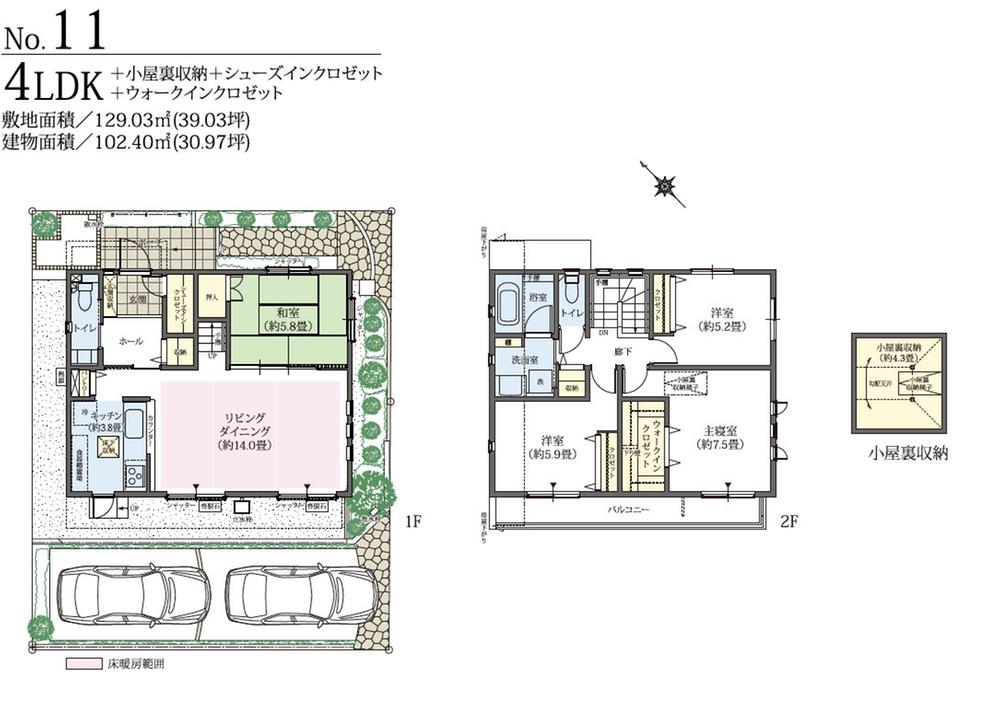
Floor plan

Floor plan. (NO.11), Price TBD , 4LDK, Land area 129.03 sq m , Building area 102.4 sq m
(NO.11), Price TBD , 4LDK, Land area 129.03 sq m , Building area 102.4 sq m

Bathroom

Bathroom. Bathroom (2013 November shooting) Bathroom heating dryer ・ Otobasu ・ Thermo Floor ・ Kururin poi drainage port
Bathroom (2013 November shooting) Bathroom heating dryer ・ Otobasu ・ Thermo Floor ・ Kururin poi drainage port

Entrance hall (2013 November shooting)
Entrance hall (2013 November shooting)

Vanity (2013 November shooting)
Vanity (2013 November shooting)

Receipt

Receipt. Indoor (13 May 2011) shooting shoes in cloak
Indoor (13 May 2011) shooting shoes in cloak

Other introspection

Other introspection. Indoor (13 May 2011) shooting 2 Kaiyoshitsu
Indoor (13 May 2011) shooting 2 Kaiyoshitsu

The entire compartment Figure
The entire compartment Figure



Location