New Homes » Kanto » Kanagawa Prefecture » Yokohama City Konan-ku
 
| | Yokohama-shi, Kanagawa-ku, Konan 神奈川県横浜市港南区 |
| Blue Line "Kaminagaya" walk 18 minutes ブルーライン「上永谷」歩18分 |
| Weekly, soil ・ Sunday (holiday) is from 10 am, Since we have held a local sales meetings, Please come directly to the local. Also payment amount and interest rate of the monthly mortgage, We will explain on the spot. 毎週、土・日曜日(祝日)は午前10時より、現地販売会を開催していますので、直接現地にお越しください。住宅ローンの金利や毎月の支払金額も、その場でご説明いたします。 |
| ※ Nagano elementary school 9 minute walk (700m) ※ Kaminagaya junior high school 2-minute walk (100m) is useful to the school by within a 10-minute walk. ※ Shimonagaya fourth park a 2-minute walk (150m) also play freely in small children. ※ The building has storage space in each room. ※永野小学校徒歩9分(700m)※上永谷中学校徒歩2分(100m)徒歩10分圏内で通学に便利です。※下永谷第4公園徒歩2分(150m)は小さいお子様も自由に遊べます。※建物は各部屋に収納スペースがあります。 |
Local guide map 現地案内図 | | Local guide map 現地案内図 | Features pickup 特徴ピックアップ | | Parking two Allowed / LDK18 tatami mats or more / Fiscal year Available / System kitchen / All room storage / A quiet residential area / Corner lot / Japanese-style room / Washbasin with shower / Face-to-face kitchen / Barrier-free / Toilet 2 places / Bathroom 1 tsubo or more / 2-story / Double-glazing / Otobasu / Warm water washing toilet seat / Underfloor Storage / TV monitor interphone / Walk-in closet / Water filter / City gas 駐車2台可 /LDK18畳以上 /年度内入居可 /システムキッチン /全居室収納 /閑静な住宅地 /角地 /和室 /シャワー付洗面台 /対面式キッチン /バリアフリー /トイレ2ヶ所 /浴室1坪以上 /2階建 /複層ガラス /オートバス /温水洗浄便座 /床下収納 /TVモニタ付インターホン /ウォークインクロゼット /浄水器 /都市ガス | Event information イベント情報 | | Local sales meetings (please visitors to direct local) schedule / Every Saturday, Sunday and public holidays time / 10:00 ~ 17:00 in local Since it is always waiting salesman, Housing loans (preferential interest rates) also please feel free to contact us. 現地販売会(直接現地へご来場ください)日程/毎週土日祝時間/10:00 ~ 17:00現地では営業マンが常に待機していますので、住宅ローン等(金利優遇)もお気軽にご相談ください。 | Property name 物件名 | | Libre Garden Shimonagaya リーブルガーデン下永谷 | Price 価格 | | 32,800,000 yen ~ 35,800,000 yen 3280万円 ~ 3580万円 | Floor plan 間取り | | 3LDK ~ 4LDK 3LDK ~ 4LDK | Units sold 販売戸数 | | 5 units 5戸 | Total units 総戸数 | | 11 units 11戸 | Land area 土地面積 | | 125.17 sq m ~ 129.28 sq m (37.86 tsubo ~ 39.10 tsubo) (measured) 125.17m2 ~ 129.28m2(37.86坪 ~ 39.10坪)(実測) | Building area 建物面積 | | 94.8 sq m ~ 99.37 sq m (28.67 tsubo ~ 30.05 tsubo) (measured) 94.8m2 ~ 99.37m2(28.67坪 ~ 30.05坪)(実測) | Driveway burden-road 私道負担・道路 | | 4.80 sq m , 111.42 sq m × 1 / 6, 102.96 sq m × 1 / 6 4.80m2、111.42m2×1/6、102.96m2×1/6 | Completion date 完成時期(築年月) | | 2013 early November 2013年11月上旬 | Address 住所 | | Yokohama-shi, Kanagawa-ku, Konan Shimonagaya 2-1635-1 神奈川県横浜市港南区下永谷2-1635-1 | Traffic 交通 | | Blue Line "Kaminagaya" walk 18 minutes Blue Line "Shimonagaya" walk 21 minutes ブルーライン「上永谷」歩18分 ブルーライン「下永谷」歩21分
| Related links 関連リンク | | [Related Sites of this company] 【この会社の関連サイト】 | Person in charge 担当者より | | [Regarding this property.] Since the house has been completed, You can check carefully the room and appearance. 【この物件について】住宅は完成していますので、室内や外観をじっくりとご確認いただけます。 | Contact お問い合せ先 | | TEL: 0800-600-1064 [Toll free] mobile phone ・ Also available from PHS Caller ID is not notified Please contact the "saw SUUMO (Sumo)" If it does not lead, If the real estate company TEL:0800-600-1064【通話料無料】携帯電話・PHSからもご利用いただけます 発信者番号は通知されません 「SUUMO(スーモ)を見た」と問い合わせください つながらない方、不動産会社の方は
| Most price range 最多価格帯 | | 35 million yen (3 units) 3500万円台(3戸) | Building coverage, floor area ratio 建ぺい率・容積率 | | Building coverage: 50% Volume ratio: 80% 建ぺい率:50% 容積率:80% | Time residents 入居時期 | | Consultation 相談 | Land of the right form 土地の権利形態 | | Ownership 所有権 | Structure and method of construction 構造・工法 | | Wooden 2-story (framing method) 木造2階建(軸組工法) | Use district 用途地域 | | One low-rise 1種低層 | Land category 地目 | | Residential land 宅地 | Other limitations その他制限事項 | | Residential land development construction regulation area, Site area minimum Yes, Shade limit Yes 宅地造成工事規制区域、敷地面積最低限度有、日影制限有 | Overview and notices その他概要・特記事項 | | Building confirmation number: No. H25 confirmation architecture KBI01609 other 建築確認番号:第H25確認建築KBI01609号他 | Company profile 会社概要 | | <Marketing alliance (agency)> Governor of Kanagawa Prefecture (1) No. 027694 (Ltd.) Mines Home Yubinbango215-0014 Kawasaki City, Kanagawa Prefecture Aso-ku, Hakusan 4-1-3 Green Plaza 18 <販売提携(代理)>神奈川県知事(1)第027694号(株)マインズホーム〒215-0014 神奈川県川崎市麻生区白山4-1-3 グリーンプラザ18 |
The entire compartment Figure全体区画図  Compartment figure
区画図
Local appearance photo現地外観写真  Local (11 May 2013) Shooting
現地(2013年11月)撮影
Kitchenキッチン  Indoor (11 May 2013) Shooting
室内(2013年11月)撮影
Local appearance photo現地外観写真  Indoor (11 May 2013) Shooting
室内(2013年11月)撮影
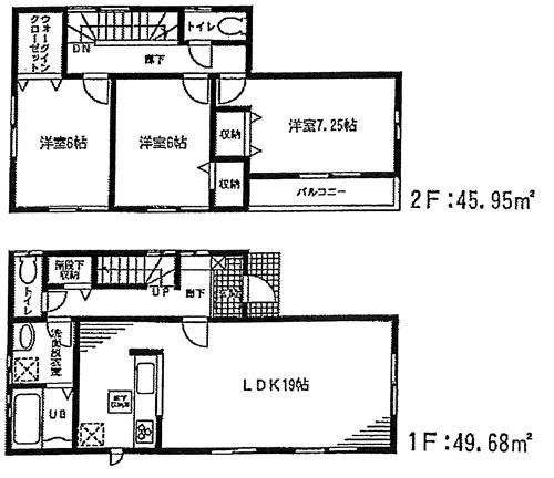
Floor plan間取り図  (8 Building), Price 33,800,000 yen, 4LDK, Land area 125.29 sq m , Building area 98.95 sq m
(8号棟)、価格3380万円、4LDK、土地面積125.29m2、建物面積98.95m2
Livingリビング  Indoor (11 May 2013) Shooting
室内(2013年11月)撮影
Bathroom浴室  Indoor (11 May 2013) Shooting
室内(2013年11月)撮影
Non-living roomリビング以外の居室  Japanese-style room 6 Pledge (November 2013) Shooting
和室6帖(2013年11月)撮影
Wash basin, toilet洗面台・洗面所  Indoor (11 May 2013) Shooting
室内(2013年11月)撮影
Construction ・ Construction method ・ specification構造・工法・仕様  Standard adopted "rebar-filled concrete mat foundation" to the foundation in this property. The base portion is Haisuji the 13mm rebar in a grid pattern in 200mm pitch, It made by pouring concrete. Because solid foundation to cover the basis of the whole ground, It can be transmitted to the ground by dispersing a load of the building, It is possible to improve the durability and earthquake resistance against immobility subsidence. or, Because under the floor over the entire surface is concrete will also be moisture-proof measures.
当物件では基礎に「鉄筋入りコンクリートベタ基礎」を標準採用。ベース部分には13mmの鉄筋を200mmピッチで碁盤目状に配筋し、コンクリートを流し込んで造ります。ベタ基礎は地面全体を基礎で覆うため、建物の加重を分散して地面に伝えることができ、不動沈下に対する耐久性や耐震性を向上することができます。又、床下全面がコンクリートになるので防湿対策にもなります。
Other Equipmentその他設備  Since the counter kitchen, You can also chat with family while making the dishes.
カウンターキッチンなので、お料理を作りながら家族とおしゃべりもできます。
Kindergarten ・ Nursery幼稚園・保育園  Social welfare corporation 279m to the same dust Board Cherry Garden Nursery
社会福祉法人同塵会チェリーガーデン保育園まで279m
 Local guide map
現地案内図
Otherその他  Kaminagaya is in front of the station there is also Ito-Yokado.
上永谷駅前にはイトーヨーカ堂もあります。
Floor plan間取り図  (10 Building), Price 32,800,000 yen, 3LDK, Land area 125.61 sq m , Building area 95.63 sq m
(10号棟)、価格3280万円、3LDK、土地面積125.61m2、建物面積95.63m2
Non-living roomリビング以外の居室  Indoor (11 May 2013) Shooting
室内(2013年11月)撮影
Construction ・ Construction method ・ specification構造・工法・仕様  In this listing is, Using a ceramic system of siding on the outer wall finish,
当物件では、外壁仕上材に窯業系のサイディングを使用して、
Other Equipmentその他設備  It is a stop of the kind other vanity cloudy.
曇り止めの類他洗面化粧台です。
Primary school小学校  788m to Yokohama City Nagano Elementary School
横浜市立永野小学校まで788m
Otherその他  Bank of Yokohama is Kaminagaya Station 1-minute walk.
横浜銀行は上永谷駅徒歩1分です。
Floor plan間取り図  (7 Building), Price 35,800,000 yen, 4LDK, Land area 125.53 sq m , Building area 99.37 sq m
(7号棟)、価格3580万円、4LDK、土地面積125.53m2、建物面積99.37m2
Construction ・ Construction method ・ specification構造・工法・仕様  To prevent the deterioration of the building, It is important the elimination of under the floor of the moisture that causes corrosion of the structural part.
建物の劣化を防ぐには、構造部の腐食の原因となる床下の湿気の排除が重要です。
Floor plan間取り図  Compartment figure
区画図
Junior high school中学校  161m to Yokohama Municipal Kaminagaya junior high school
横浜市立上永谷中学校まで161m
Other Equipmentその他設備  In spacious bath of 1 pyeong type, Also stretch enough foot.
1坪タイプのゆったりとしたお風呂で、足も十分に伸ばせます。
 Many windows, Guests can also enjoy a reunion of the open and family.
窓も多く、開放的で家族との団らんも楽しめます。
 Since there is next to the living room, Remove the sliding door of a Japanese-style room and living room, You can use To spacious.
リビングの横にありますので、和室とリビングの襖をはずして、広々と使えます。
Park公園  Shimonagaya 150m until the fourth park
下永谷第4公園まで150m
Convenience storeコンビニ  community ・ 565m until the store Sukeyuki Kaminagaya shop
コミュニティ・ストア上永谷すけゆき店まで565m
Drug storeドラッグストア  Drugstore Matsumotokiyoshi to Kaminagaya shop 1426m
ドラッグストアマツモトキヨシ上永谷店まで1426m
Hospital病院  1103m until the medical corporation Takeo Board Asakura hospital
医療法人健生会朝倉病院まで1103m
 1694m until the medical corporation Association Shigehito Board Nagata hospital
医療法人社団成仁会長田病院まで1694m
Bank銀行  Yokohama credit union Serigaya to the branch 964m
横浜信用金庫芹が谷支店まで964m
Location
|