2014January
35,800,000 yen, 4LDK, 96.58 sq m
New Homes » Kanto » Kanagawa Prefecture » Yokohama City Konan-ku
 
| | Yokohama-shi, Kanagawa-ku, Konan 神奈川県横浜市港南区 |
| JR Keihin Tohoku Line "Yokodai" walk 20 minutes JR京浜東北線「洋光台」歩20分 |
Price 価格 | | 35,800,000 yen 3580万円 | Floor plan 間取り | | 4LDK 4LDK | Units sold 販売戸数 | | 1 units 1戸 | Land area 土地面積 | | 76.2 sq m (registration) 76.2m2(登記) | Building area 建物面積 | | 96.58 sq m (registration) 96.58m2(登記) | Driveway burden-road 私道負担・道路 | | 129 sq m , Southeast 4.5m width (contact the road width 4.3m), East 4.5m width 129m2、南東4.5m幅(接道幅4.3m)、東4.5m幅 | Completion date 完成時期(築年月) | | November 2013 2013年11月 | Address 住所 | | Yokohama-shi, Kanagawa-ku, Konan cowpea 4 神奈川県横浜市港南区笹下4 | Traffic 交通 | | JR Keihin Tohoku Line "Yokodai" walk 20 minutes Keikyu main line "folding screen Ura" walk 15 minutes JR京浜東北線「洋光台」歩20分 京急本線「屏風浦」歩15分
| Person in charge 担当者より | | The person in charge Katsumi Yamaguchi 担当者山口克美 | Contact お問い合せ先 | | Mitsui Rehouse Kamiooka shop Kanagawa south Rehouse (Ltd.) TEL: 0120-854254 [Toll free] Please contact the "saw SUUMO (Sumo)" 三井のリハウス上大岡店神奈川南リハウス(株)TEL:0120-854254【通話料無料】「SUUMO(スーモ)を見た」と問い合わせください | Building coverage, floor area ratio 建ぺい率・容積率 | | 60% ・ 150% 60%・150% | Time residents 入居時期 | | January 2014 2014年1月 | Land of the right form 土地の権利形態 | | Ownership 所有権 | Structure and method of construction 構造・工法 | | Wooden 2-story 木造2階建 | Use district 用途地域 | | Two mid-high 2種中高 | Other limitations その他制限事項 | | All eight buildings This selling 8 buildings 全8棟今回販売8棟 | Overview and notices その他概要・特記事項 | | Contact: Katsumi Yamaguchi 担当者:山口克美 | Company profile 会社概要 | | <Mediation> Governor of Kanagawa Prefecture (10) No. 009704 (the company), Kanagawa Prefecture Building Lots and Buildings Transaction Business Association (Corporation) metropolitan area real estate Fair Trade Council member Mitsui Rehouse Kamiooka shop Kanagawa south Rehouse Co. Yubinbango233-0002 Yokohama-shi, Kanagawa-ku, Konan Kamiookanishi 1-12-11 Maruibiru first floor <仲介>神奈川県知事(10)第009704号(社)神奈川県宅地建物取引業協会会員 (公社)首都圏不動産公正取引協議会加盟三井のリハウス上大岡店神奈川南リハウス(株)〒233-0002 神奈川県横浜市港南区上大岡西1-12-11 マルイビル1階 |
 Local appearance photo
現地外観写真
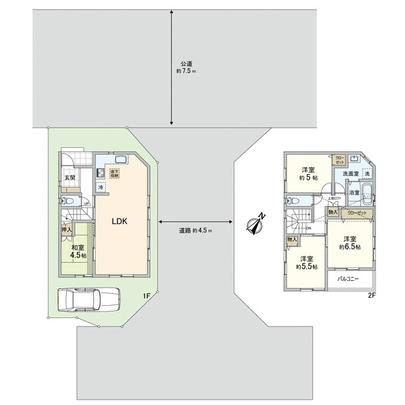
 Floor plan
間取り図
Location
|