New Homes » Kanto » Kanagawa Prefecture » Yokohama Midori-ku
 
| | Yokohama-shi, Kanagawa-ku, green 神奈川県横浜市緑区 |
| JR Yokohama Line "Zhongshan" walk 18 minutes JR横浜線「中山」歩18分 |
| 10-year warranty ・ Home peace of mind in the charm dwelling insurance pressurized coercive! Clean streets of development subdivision! Yes Car space, Roof is a balcony! ! 10年保証・まもりすまい保険加保で安心の家!開発分譲地の綺麗な街並み!カースペースあり、ルーフバルコニーつきです!! |
| Corresponding to the flat-35S, Super close, It is close to the city, System kitchen, Bathroom Dryer, Yang per good, All room storage, Or more before road 6m, Washbasin with shower, Face-to-face kitchen, Toilet 2 places, 2 or more sides balcony, Warm water washing toilet seat, The window in the bathroom, TV monitor interphone, Leafy residential area, Urban neighborhood, Ventilation good, All living room flooring, All room 6 tatami mats or more, Three-story or more, Living stairs, roof balcony, Development subdivision in フラット35Sに対応、スーパーが近い、市街地が近い、システムキッチン、浴室乾燥機、陽当り良好、全居室収納、前道6m以上、シャワー付洗面台、対面式キッチン、トイレ2ヶ所、2面以上バルコニー、温水洗浄便座、浴室に窓、TVモニタ付インターホン、緑豊かな住宅地、都市近郊、通風良好、全居室フローリング、全居室6畳以上、3階建以上、リビング階段、ルーフバルコニー、開発分譲地内 |
Features pickup 特徴ピックアップ | | Corresponding to the flat-35S / Super close / It is close to the city / System kitchen / Bathroom Dryer / Yang per good / All room storage / Or more before road 6m / Washbasin with shower / Face-to-face kitchen / Toilet 2 places / 2 or more sides balcony / Warm water washing toilet seat / The window in the bathroom / TV monitor interphone / Leafy residential area / Urban neighborhood / Ventilation good / All living room flooring / All room 6 tatami mats or more / Three-story or more / Living stairs / roof balcony / Development subdivision in フラット35Sに対応 /スーパーが近い /市街地が近い /システムキッチン /浴室乾燥機 /陽当り良好 /全居室収納 /前道6m以上 /シャワー付洗面台 /対面式キッチン /トイレ2ヶ所 /2面以上バルコニー /温水洗浄便座 /浴室に窓 /TVモニタ付インターホン /緑豊かな住宅地 /都市近郊 /通風良好 /全居室フローリング /全居室6畳以上 /3階建以上 /リビング階段 /ルーフバルコニー /開発分譲地内 | Price 価格 | | 27,960,000 yen ~ 30,960,000 yen 2796万円 ~ 3096万円 | Floor plan 間取り | | 1LDK + 2S (storeroom) ~ 3LDK 1LDK+2S(納戸) ~ 3LDK | Units sold 販売戸数 | | 10 units 10戸 | Land area 土地面積 | | 50.46 sq m ~ 71.92 sq m (registration) 50.46m2 ~ 71.92m2(登記) | Building area 建物面積 | | 89.01 sq m ~ 102.25 sq m (registration) 89.01m2 ~ 102.25m2(登記) | Driveway burden-road 私道負担・道路 | | Road width: 6m ・ 4.5m 道路幅:6m・4.5m | Completion date 完成時期(築年月) | | August 2013 2013年8月 | Address 住所 | | Yokohama-shi, Kanagawa-ku, green Hakusan 1-23 神奈川県横浜市緑区白山1-23 | Traffic 交通 | | JR Yokohama Line "Zhongshan" walk 18 minutes JR Yokohama Line "lintel" walk 16 minutes Green Line "Kawawa town" walk 39 minutes JR横浜線「中山」歩18分 JR横浜線「鴨居」歩16分 グリーンライン「川和町」歩39分
| Related links 関連リンク | | [Related Sites of this company] 【この会社の関連サイト】 | Person in charge 担当者より | | Rep KiriSawa Satoshi Age: 30 Daigyokai experience: the purchase of 8-year real estate ・ The sale is a big milestone in your life. "Better service to be able to provide," we are working on the day-to-day work with at the moment to be the turning point. Standing in your position, We try to correspond with a good faith. 担当者桐澤 聡年齢:30代業界経験:8年不動産の購入・売却はお客様の人生の大きな節目となります。その節目となる瞬間に「より良いサービスが提供できるように」と日々仕事に取り組んでいます。お客様の立場に立ち、誠意を持った対応を心がけています。 | Contact お問い合せ先 | | TEL: 0800-603-8928 [Toll free] mobile phone ・ Also available from PHS Caller ID is not notified Please contact the "saw SUUMO (Sumo)" If it does not lead, If the real estate company TEL:0800-603-8928【通話料無料】携帯電話・PHSからもご利用いただけます 発信者番号は通知されません 「SUUMO(スーモ)を見た」と問い合わせください つながらない方、不動産会社の方は
| Most price range 最多価格帯 | | 27 million yen ・ 29 million yen ・ 30 million yen 29.96 million yen (each 4 units) 2700万円台・2900万円台・3000万円台2996万円(各4戸) | Building coverage, floor area ratio 建ぺい率・容積率 | | Kenpei rate: 60% ・ 70%, Volume ratio: 200% 建ペい率:60%・70%、容積率:200% | Time residents 入居時期 | | Consultation 相談 | Land of the right form 土地の権利形態 | | Ownership 所有権 | Structure and method of construction 構造・工法 | | Wooden three-story 木造3階建 | Use district 用途地域 | | Industry 工業 | Land category 地目 | | Residential land 宅地 | Overview and notices その他概要・特記事項 | | Contact: KiriSawa Satoshi, Building confirmation number: No. 12KAK Ken確 06458 担当者:桐澤 聡、建築確認番号:第12KAK建確06458号 | Company profile 会社概要 | | <Mediation> Kanagawa Governor (2) the first 026,950 No. Century 21 Corporation Yokohama estate Yubinbango222-0033 Yokohama-shi, Kanagawa-ku, Yokohama, Kohoku 3-21-12 <仲介>神奈川県知事(2)第026950号センチュリー21(株)ヨコハマ地所〒222-0033 神奈川県横浜市港北区新横浜3-21-12 |
Local photos, including front road前面道路含む現地写真  Local (June 2013) Shooting
現地(2013年6月)撮影
Local appearance photo現地外観写真  Local (June 2013) Shooting
現地(2013年6月)撮影
Floor plan間取り図  (Building 2), Price 29,960,000 yen, 1LDK+2S, Land area 51.83 sq m , Building area 95.83 sq m
(2号棟)、価格2996万円、1LDK+2S、土地面積51.83m2、建物面積95.83m2
Shopping centreショッピングセンター  Ronron 1440m to Zhongshan Station Building
ロンロン中山駅ビルまで1440m
 The entire compartment Figure
全体区画図
Floor plan間取り図  (3 Building), Price 27,960,000 yen, 1LDK+2S, Land area 50.46 sq m , Building area 89.01 sq m
(3号棟)、価格2796万円、1LDK+2S、土地面積50.46m2、建物面積89.01m2
Supermarketスーパー  Until Piago Zhongshan shop 1600m
ピアゴ中山店まで1600m
Floor plan間取り図  (10 Building), Price 29,960,000 yen, 2LDK+S, Land area 55.54 sq m , Building area 102.25 sq m
(10号棟)、価格2996万円、2LDK+S、土地面積55.54m2、建物面積102.25m2
Supermarketスーパー  1760m until the Big Rise Zhongshan shop
ビッグライズ中山店まで1760m
Hospital病院  Minagawa to pediatric clinic 1360m
皆川小児科医院まで1360m
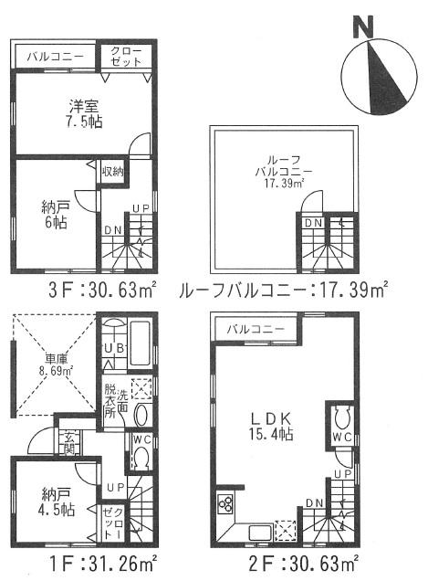
Floor plan間取り図  (12 Building), Price 30,960,000 yen, 3LDK, Land area 51.93 sq m , Building area 100.73 sq m
(12号棟)、価格3096万円、3LDK、土地面積51.93m2、建物面積100.73m2
Hospital病院  Yamamoto 1520m to clinic
やまもとクリニックまで1520m
Floor plan間取り図  (13 Building), Price 29,960,000 yen, 1LDK+2S, Land area 52.58 sq m , Building area 98.52 sq m
(13号棟)、価格2996万円、1LDK+2S、土地面積52.58m2、建物面積98.52m2
Junior high school中学校  1433m to Yokohama Municipal lintel junior high school
横浜市立鴨居中学校まで1433m
Primary school小学校  1427m to Yokohama City Tatsumidori Elementary School
横浜市立緑小学校まで1427m
Location
|