New Homes » Kanto » Kanagawa Prefecture » Yokohama Midori-ku
 
| | Yokohama-shi, Kanagawa-ku, green 神奈川県横浜市緑区 |
| JR Yokohama Line "Zhongshan" walk 15 minutes JR横浜線「中山」歩15分 |
| System kitchen, Yang per good, Flat to the station, LDK15 tatami mats or moreese-style room, Washbasin with shower, Face-to-face kitchen, 2-story, TV monitor interphone, Water filter, City gas システムキッチン、陽当り良好、駅まで平坦、LDK15畳以上、和室、シャワー付洗面台、対面式キッチン、2階建、TVモニタ付インターホン、浄水器、都市ガス |
| System kitchen, Yang per good, Flat to the station, LDK15 tatami mats or moreese-style room, Washbasin with shower, Face-to-face kitchen, 2-story, TV monitor interphone, Water filter, City gas システムキッチン、陽当り良好、駅まで平坦、LDK15畳以上、和室、シャワー付洗面台、対面式キッチン、2階建、TVモニタ付インターホン、浄水器、都市ガス |
Features pickup 特徴ピックアップ | | System kitchen / Yang per good / Flat to the station / LDK15 tatami mats or more / Japanese-style room / Washbasin with shower / Face-to-face kitchen / 2-story / TV monitor interphone / Water filter / City gas システムキッチン /陽当り良好 /駅まで平坦 /LDK15畳以上 /和室 /シャワー付洗面台 /対面式キッチン /2階建 /TVモニタ付インターホン /浄水器 /都市ガス | Price 価格 | | 37,958,000 yen ・ 39,158,000 yen 3795万8000円・3915万8000円 | Floor plan 間取り | | 4LDK 4LDK | Units sold 販売戸数 | | 2 units 2戸 | Total units 総戸数 | | 3 units 3戸 | Land area 土地面積 | | 125.21 sq m (measured) 125.21m2(実測) | Building area 建物面積 | | 97.7 sq m ・ 99.36 sq m (measured) 97.7m2・99.36m2(実測) | Driveway burden-road 私道負担・道路 | | Road width: 4m, Sloped portion about 20% Yes 道路幅:4m、傾斜部分約20%有 | Completion date 完成時期(築年月) | | 2013 early December 2013年12月上旬 | Address 住所 | | Yokohama-shi, Kanagawa-ku, green Terayama-cho 神奈川県横浜市緑区寺山町 | Traffic 交通 | | JR Yokohama Line "Zhongshan" walk 15 minutes Green Line "Zhongshan" walk 15 minutes JR Yokohama Line "lintel" walk 39 minutes JR横浜線「中山」歩15分 グリーンライン「中山」歩15分 JR横浜線「鴨居」歩39分
| Related links 関連リンク | | [Related Sites of this company] 【この会社の関連サイト】 | Person in charge 担当者より | | Person in charge of real-estate and building in the buttocks Taiki Age: 40s 担当者宅建殿内 泰喜年齢:40代 | Contact お問い合せ先 | | TEL: 0800-603-0785 [Toll free] mobile phone ・ Also available from PHS Caller ID is not notified Please contact the "saw SUUMO (Sumo)" If it does not lead, If the real estate company TEL:0800-603-0785【通話料無料】携帯電話・PHSからもご利用いただけます 発信者番号は通知されません 「SUUMO(スーモ)を見た」と問い合わせください つながらない方、不動産会社の方は
| Building coverage, floor area ratio 建ぺい率・容積率 | | Kenpei rate: 50%, Volume ratio: 80% 建ペい率:50%、容積率:80% | Time residents 入居時期 | | Consultation 相談 | Land of the right form 土地の権利形態 | | Ownership 所有権 | Structure and method of construction 構造・工法 | | Wooden 2-story 木造2階建 | Use district 用途地域 | | Urbanization control area 市街化調整区域 | Land category 地目 | | Residential land 宅地 | Overview and notices その他概要・特記事項 | | Contact: Tonouchi Taiki, Building Permits reason: City Planning Law Enforcement Ordinance Article 36 corresponds to 1, Item No. 3 b, Building confirmation number: 01211.01212 担当者:殿内 泰喜、建築許可理由:都市計画法施行令36条1項3号ロに該当、建築確認番号:01211.01212 | Company profile 会社概要 | | <Mediation> Minister of Land, Infrastructure and Transport (7) No. 003744 No. Asahi Land and Building Co., Ltd. Zhongshan branch sales Division 1 Yubinbango226-0011 Yokohama-shi, Kanagawa-ku, green Nakayama-cho, 306-1 Miyoshi's seed building first floor <仲介>国土交通大臣(7)第003744号朝日土地建物(株)中山支店営業1課〒226-0011 神奈川県横浜市緑区中山町306-1 ミヨシズシードビル1階 |
 Local appearance photo
現地外観写真
 Same specifications photos (living)
同仕様写真(リビング)
 Same specifications photo (kitchen)
同仕様写真(キッチン)
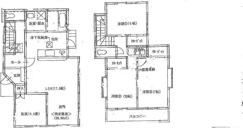
Floor plan間取り図  (2), Price 37,958,000 yen, 4LDK, Land area 125.21 sq m , Building area 97.7 sq m
(2)、価格3795万8000円、4LDK、土地面積125.21m2、建物面積97.7m2
 Same specifications photo (kitchen)
同仕様写真(キッチン)
 (3), Price 39,158,000 yen, 4LDK, Land area 125.21 sq m , Building area 99.36 sq m
(3)、価格3915万8000円、4LDK、土地面積125.21m2、建物面積99.36m2
Location
|