New Homes » Kanto » Kanagawa Prefecture » Yokohama Midori-ku
 
| | Yokohama-shi, Kanagawa-ku, green 神奈川県横浜市緑区 |
| JR Yokohama Line "lintel" bus 7 minutes Hakusan green walk 3 minutes JR横浜線「鴨居」バス7分白山みどり歩3分 |
| Design Detached nestled in a quiet residential area. Per south road, Sunny. Car space two possible. Enhancement of equipment and specifications content. 閑静な住宅街に佇むデザイナーズ戸建。南側道路につき、日当たり良好。カースペース2台可能。充実の設備と仕様内容。 |
| Over Recommended point-to ● sunny ● equipment and specifications contents of the car space two ● enhancement ・ In the case of our alliance mortgage available, The entire period up to -1.7 preferential treatment ・ The application, Conditions, there is a review ・ Weekdays, Saturday and Sunday, will guide you regardless of holiday ・ It can come to pick you up in the car ーオススメポイントー●日当たり良好●カースペース2台●充実の設備と仕様内容・弊社の提携住宅ローン利用の場合、全期間最大-1.7優遇・適用には、条件,審査がございます・平日,土日,祝日問わずご案内致します・車でお迎えに伺います |
Features pickup 特徴ピックアップ | | Corresponding to the flat-35S / Vibration Control ・ Seismic isolation ・ Earthquake resistant / Seismic fit / Parking two Allowed / 2 along the line more accessible / LDK18 tatami mats or more / Fiscal year Available / It is close to Tennis Court / Super close / It is close to the city / Facing south / System kitchen / Bathroom Dryer / Yang per good / All room storage / Siemens south road / A quiet residential area / Around traffic fewer / Corner lot / Japanese-style room / Shaping land / Washbasin with shower / Face-to-face kitchen / Security enhancement / Barrier-free / Toilet 2 places / Natural materials / Bathroom 1 tsubo or more / 2-story / 2 or more sides balcony / South balcony / Otobasu / High speed Internet correspondence / Warm water washing toilet seat / Underfloor Storage / The window in the bathroom / TV monitor interphone / High-function toilet / Ventilation good / All living room flooring / Walk-in closet / Water filter / City gas / All rooms are two-sided lighting / BS ・ CS ・ CATV / Maintained sidewalk フラット35Sに対応 /制震・免震・耐震 /耐震適合 /駐車2台可 /2沿線以上利用可 /LDK18畳以上 /年度内入居可 /テニスコートが近い /スーパーが近い /市街地が近い /南向き /システムキッチン /浴室乾燥機 /陽当り良好 /全居室収納 /南側道路面す /閑静な住宅地 /周辺交通量少なめ /角地 /和室 /整形地 /シャワー付洗面台 /対面式キッチン /セキュリティ充実 /バリアフリー /トイレ2ヶ所 /自然素材 /浴室1坪以上 /2階建 /2面以上バルコニー /南面バルコニー /オートバス /高速ネット対応 /温水洗浄便座 /床下収納 /浴室に窓 /TVモニタ付インターホン /高機能トイレ /通風良好 /全居室フローリング /ウォークインクロゼット /浄水器 /都市ガス /全室2面採光 /BS・CS・CATV /整備された歩道 | Price 価格 | | 40,800,000 yen ~ 42,800,000 yen 4080万円 ~ 4280万円 | Floor plan 間取り | | 3LDK ~ 4LDK 3LDK ~ 4LDK | Units sold 販売戸数 | | 2 units 2戸 | Total units 総戸数 | | 2 units 2戸 | Land area 土地面積 | | 112.29 sq m ~ 125.06 sq m 112.29m2 ~ 125.06m2 | Building area 建物面積 | | 86.25 sq m ~ 103.14 sq m 86.25m2 ~ 103.14m2 | Completion date 完成時期(築年月) | | January 2014 will 2014年1月予定 | Address 住所 | | Yokohama-shi, Kanagawa-ku, green Hakusan 4 神奈川県横浜市緑区白山4 | Traffic 交通 | | JR Yokohama Line "lintel" bus 7 minutes Hakusan green walk 3 minutes JR Yokohama Line "Zhongshan" walk 33 minutes Sagami Railway Main Line "Nishitani" walk 41 minutes JR横浜線「鴨居」バス7分白山みどり歩3分 JR横浜線「中山」歩33分 相鉄本線「西谷」歩41分
| Related links 関連リンク | | [Related Sites of this company] 【この会社の関連サイト】 | Person in charge 担当者より | | Rep Kimura 担当者木村 | Contact お問い合せ先 | | TEL: 0800-603-7122 [Toll free] mobile phone ・ Also available from PHS Caller ID is not notified Please contact the "saw SUUMO (Sumo)" If it does not lead, If the real estate company TEL:0800-603-7122【通話料無料】携帯電話・PHSからもご利用いただけます 発信者番号は通知されません 「SUUMO(スーモ)を見た」と問い合わせください つながらない方、不動産会社の方は
| Building coverage, floor area ratio 建ぺい率・容積率 | | Kenpei rate: 40%, Volume ratio: 80% 建ペい率:40%、容積率:80% | Time residents 入居時期 | | February 2014 schedule 2014年2月予定 | Land of the right form 土地の権利形態 | | Ownership 所有権 | Use district 用途地域 | | One low-rise 1種低層 | Overview and notices その他概要・特記事項 | | Contact: Kimura, Building confirmation number: 01522 担当者:木村、建築確認番号:01522 | Company profile 会社概要 | | <Mediation> Minister of Land, Infrastructure and Transport (2) the first 007,684 No. + HOUSE Yokohama Office (Ltd.) propoxycarbonyl life Yubinbango230-0062 Kanagawa Prefecture Tsurumi-ku, Yokohama City Toyooka-cho, 8-24 first floor <仲介>国土交通大臣(2)第007684号+HOUSE横浜Office(株)プロポライフ〒230-0062 神奈川県横浜市鶴見区豊岡町8-24 1階 |
Same specifications photos (living)同仕様写真(リビング)  Same construction company construction cases
同施工会社施工例
Same specifications photo (kitchen)同仕様写真(キッチン)  Same construction company construction cases
同施工会社施工例
Same specifications photo (bathroom)同仕様写真(浴室)  Same construction company construction cases
同施工会社施工例
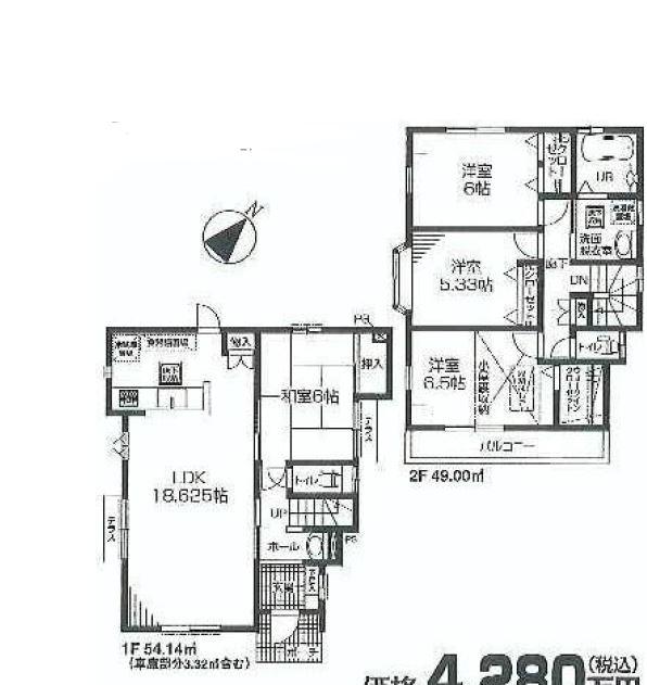
Floor plan間取り図  (1 Building), Price 42,800,000 yen, 4LDK, Land area 125.06 sq m , Building area 103.14 sq m
(1号棟)、価格4280万円、4LDK、土地面積125.06m2、建物面積103.14m2
Rendering (introspection)完成予想図(内観)  Same construction company construction cases
同施工会社施工例
 Other
その他
Floor plan間取り図  (Building 2), Price 40,800,000 yen, 3LDK, Land area 112.29 sq m , Building area 88.25 sq m
(2号棟)、価格4080万円、3LDK、土地面積112.29m2、建物面積88.25m2
Location
|