New Homes » Kanto » Kanagawa Prefecture » Yokohama Midori-ku
 
| | Yokohama-shi, Kanagawa-ku, green 神奈川県横浜市緑区 |
| JR Yokohama Line "Nagatsuta" walk 4 minutes JR横浜線「長津田」歩4分 |
| Corresponding to the flat-35S, 2 along the line more accessible, LDK18 tatami mats or more, Fiscal year Available, Super close, It is close to the city, System kitchen, Bathroom Dryer, Yang per good, All room storage, Shower Tsukearai フラット35Sに対応、2沿線以上利用可、LDK18畳以上、年度内入居可、スーパーが近い、市街地が近い、システムキッチン、浴室乾燥機、陽当り良好、全居室収納、シャワー付洗 |
| Corresponding to the flat-35S, 2 along the line more accessible, LDK18 tatami mats or more, Fiscal year Available, Super close, It is close to the city, System kitchen, Bathroom Dryer, Yang per good, All room storage, Washbasin with shower, Toilet 2 places, Bathroom 1 tsubo or more, South balcony, Dish washing dryer, Water filter フラット35Sに対応、2沿線以上利用可、LDK18畳以上、年度内入居可、スーパーが近い、市街地が近い、システムキッチン、浴室乾燥機、陽当り良好、全居室収納、シャワー付洗面台、トイレ2ヶ所、浴室1坪以上、南面バルコニー、食器洗乾燥機、浄水器 |
Features pickup 特徴ピックアップ | | Corresponding to the flat-35S / 2 along the line more accessible / LDK18 tatami mats or more / Fiscal year Available / Super close / It is close to the city / System kitchen / Bathroom Dryer / Yang per good / All room storage / Washbasin with shower / Toilet 2 places / Bathroom 1 tsubo or more / South balcony / Dish washing dryer / Water filter フラット35Sに対応 /2沿線以上利用可 /LDK18畳以上 /年度内入居可 /スーパーが近い /市街地が近い /システムキッチン /浴室乾燥機 /陽当り良好 /全居室収納 /シャワー付洗面台 /トイレ2ヶ所 /浴室1坪以上 /南面バルコニー /食器洗乾燥機 /浄水器 | Price 価格 | | 54,800,000 yen ~ 58,800,000 yen 5480万円 ~ 5880万円 | Floor plan 間取り | | 4LDK 4LDK | Units sold 販売戸数 | | 3 units 3戸 | Land area 土地面積 | | 103.14 sq m ~ 113.31 sq m (registration) 103.14m2 ~ 113.31m2(登記) | Building area 建物面積 | | 104.13 sq m ~ 109.3 sq m (registration) 104.13m2 ~ 109.3m2(登記) | Driveway burden-road 私道負担・道路 | | Road width: 4.0m ~ 80.2m, Setback: 14.32 sq m (6 Building), 13.87 sq m (7 Building) Driveway: 112 sq m × 1 / 5 (1.2.4 Building) 道路幅:4.0m ~ 80.2m、セットバック:14.32m2(6号棟)、13.87m2(7号棟) 私道:112m2×1/5(1.2.4号棟) | Completion date 完成時期(築年月) | | February 2014 schedule 2014年2月予定 | Address 住所 | | Yokohama-shi, Kanagawa-ku, green Nagatsuta 4 神奈川県横浜市緑区長津田4 | Traffic 交通 | | JR Yokohama Line "Nagatsuta" walk 4 minutes Denentoshi Tokyu "Nagatsuta" walk 4 minutes Denentoshi Tokyu "Tsukushino" walk 21 minutes JR横浜線「長津田」歩4分 東急田園都市線「長津田」歩4分 東急田園都市線「つくし野」歩21分
| Related links 関連リンク | | [Related Sites of this company] 【この会社の関連サイト】 | Person in charge 担当者より | | Personnel Kaneko Yuya Age: will continue to support my best the best of properties to choose in their 20s customers! 担当者金子 郁矢年齢:20代お客様に最高の物件選びを精一杯サポートしていきます! | Contact お問い合せ先 | | TEL: 0800-603-0786 [Toll free] mobile phone ・ Also available from PHS Caller ID is not notified Please contact the "saw SUUMO (Sumo)" If it does not lead, If the real estate company TEL:0800-603-0786【通話料無料】携帯電話・PHSからもご利用いただけます 発信者番号は通知されません 「SUUMO(スーモ)を見た」と問い合わせください つながらない方、不動産会社の方は
| Building coverage, floor area ratio 建ぺい率・容積率 | | Kenpei rate: 60%, Volume ratio: 150% 建ペい率:60%、容積率:150% | Time residents 入居時期 | | February 2014 schedule 2014年2月予定 | Land of the right form 土地の権利形態 | | Ownership 所有権 | Structure and method of construction 構造・工法 | | Wooden 2-story 木造2階建 | Use district 用途地域 | | One middle and high 1種中高 | Land category 地目 | | Residential land 宅地 | Overview and notices その他概要・特記事項 | | Contact: Kaneko Yuya, Building confirmation number: 02911 No. other 担当者:金子 郁矢、建築確認番号:02911号他 | Company profile 会社概要 | | <Mediation> Minister of Land, Infrastructure and Transport (7) No. 003744 No. Asahi Land and Building Co., Ltd. Zhongshan branch sales 2 Division Yubinbango226-0011 Yokohama-shi, Kanagawa-ku, green Nakayama-cho, 306-1 Miyoshi's seed building first floor <仲介>国土交通大臣(7)第003744号朝日土地建物(株)中山支店営業2課〒226-0011 神奈川県横浜市緑区中山町306-1 ミヨシズシードビル1階 |
Rendering (appearance)完成予想図(外観)  Rendering
完成予想図
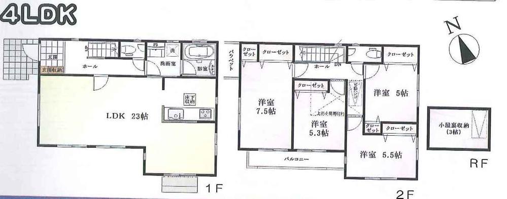
Floor plan間取り図  (1), Price 57,800,000 yen, 4LDK, Land area 113.31 sq m , Building area 105.16 sq m
(1)、価格5780万円、4LDK、土地面積113.31m2、建物面積105.16m2
 (4), Price 54,800,000 yen, 4LDK, Land area 103.89 sq m , Building area 109.3 sq m
(4)、価格5480万円、4LDK、土地面積103.89m2、建物面積109.3m2
 (6), Price 58,800,000 yen, 4LDK, Land area 103.14 sq m , Building area 104.13 sq m
(6)、価格5880万円、4LDK、土地面積103.14m2、建物面積104.13m2
Location
|