New Homes » Kanto » Kanagawa Prefecture » Yokohama Midori-ku
 
| | Yokohama-shi, Kanagawa-ku, green 神奈川県横浜市緑区 |
| JR Yokohama Line "Zhongshan" walk 2 minutes JR横浜線「中山」歩2分 |
| 2-wire Available commute, Convenient location to go to school ・ Ward office, Post office 4-minute walk ・ Southwest, Good day per southeast dwelling unit ・ You can preview every two Building building completed already, Please feel free to contact us. 2線利用可の通勤、通学に便利な立地・区役所、郵便局徒歩4分・南西、南東向き住戸につき日当たり良好・2号棟建物完成済につき内覧可能です、お気軽にお問い合わせください。 |
| Solid base specification with excellent earthquake resistance ・ Living down light 4 with lights (with dimming function) ・ All rooms have double-glazing ・ Dishwasher in the kitchen, All-in-one water purification plug Yes ・ Intercom with color monitor, Bathroom heating function with dryer, Washlet such as in-room facilities enhancement 耐震性に優れたベタ基礎仕様・リビングダウンライト4灯付(調光機能付)・全室ペアガラス・システムキッチンに食洗器、オールインワン浄水栓有・カラーモニター付インターホン、浴室暖房機能付乾燥機、ウォシュレット等室内設備充実 |
Features pickup 特徴ピックアップ | | 2 along the line more accessible / LDK20 tatami mats or more / System kitchen / Bathroom Dryer / All room storage / Japanese-style room / Shaping land / Mist sauna / Face-to-face kitchen / Toilet 2 places / Bathroom 1 tsubo or more / 2-story / 2 or more sides balcony / Double-glazing / Warm water washing toilet seat / TV with bathroom / Underfloor Storage / The window in the bathroom / TV monitor interphone / Southwestward / Dish washing dryer / Water filter / City gas / Storeroom / All rooms are two-sided lighting / All rooms southwestward / roof balcony / Attic storage 2沿線以上利用可 /LDK20畳以上 /システムキッチン /浴室乾燥機 /全居室収納 /和室 /整形地 /ミストサウナ /対面式キッチン /トイレ2ヶ所 /浴室1坪以上 /2階建 /2面以上バルコニー /複層ガラス /温水洗浄便座 /TV付浴室 /床下収納 /浴室に窓 /TVモニタ付インターホン /南西向き /食器洗乾燥機 /浄水器 /都市ガス /納戸 /全室2面採光 /全室南西向き /ルーフバルコニー /屋根裏収納 | Price 価格 | | 29,800,000 yen ~ 44,800,000 yen 2980万円 ~ 4480万円 | Floor plan 間取り | | 2LDK + 2S (storeroom) ~ 4LDK 2LDK+2S(納戸) ~ 4LDK | Units sold 販売戸数 | | 19 units 19戸 | Land area 土地面積 | | 46.47 sq m ~ 123.5 sq m (14.05 tsubo ~ 37.35 tsubo) (measured) 46.47m2 ~ 123.5m2(14.05坪 ~ 37.35坪)(実測) | Building area 建物面積 | | 58.33 sq m ~ 117.07 sq m (17.64 tsubo ~ 35.41 tsubo) (measured) 58.33m2 ~ 117.07m2(17.64坪 ~ 35.41坪)(実測) | Completion date 完成時期(築年月) | | 2014 end of June schedule 2014年6月末予定 | Address 住所 | | Yokohama-shi, Kanagawa-ku, green Daimler-cho 神奈川県横浜市緑区台村町 | Traffic 交通 | | JR Yokohama Line "Zhongshan" walk 2 minutes Green Line "Zhongshan" walk 2 minutes JR横浜線「中山」歩2分 グリーンライン「中山」歩2分
| Person in charge 担当者より | | We are dedicating personnel system for each person in charge customers. [Your tour of the day is also possible! ] Inquiry of the Property Century 21 Global Home "residence of the Information Center" sales staff to please feel free to! 0800-603-7494 担当者お客様毎に専属担当者制です。【当日のご見学も可能です!】本物件のお問い合わせはセンチュリー21グローバルホーム「住まいの情報館」営業スタッフまでお気軽にどうぞ!0800-603-7494 | Contact お問い合せ先 | | TEL: 0800-603-7494 [Toll free] mobile phone ・ Also available from PHS Caller ID is not notified Please contact the "saw SUUMO (Sumo)" If it does not lead, If the real estate company TEL:0800-603-7494【通話料無料】携帯電話・PHSからもご利用いただけます 発信者番号は通知されません 「SUUMO(スーモ)を見た」と問い合わせください つながらない方、不動産会社の方は
| Most price range 最多価格帯 | | 37 million yen (5 units) 3700万円台(5戸) | Building coverage, floor area ratio 建ぺい率・容積率 | | Building coverage: 80%, Volume ratio: 300% 建ぺい率:80%、容積率:300% | Time residents 入居時期 | | 2014 end of June schedule 2014年6月末予定 | Land of the right form 土地の権利形態 | | Ownership 所有権 | Use district 用途地域 | | Residential 近隣商業 | Other limitations その他制限事項 | | Irregular land 不整形地 | Overview and notices その他概要・特記事項 | | The person in charge: is dedicating personnel system for each customer. , Building confirmation number: No. H25 confirmation architecture KBI05800 other 担当者:お客様毎に専属担当者制です。、建築確認番号:第H25確認建築KBI05800号他 | Company profile 会社概要 | | <Mediation> Kanagawa Governor (2) the first 026,326 No. Century 21 Global Home Co., Ltd. Yubinbango221-0825 Yokohama-shi, Kanagawa, Kanagawa-ku, Sorimachi 4-37-3 Nissin building Yokohama Sorimachi first floor ・ Second floor <仲介>神奈川県知事(2)第026326号センチュリー21グローバルホーム(株)〒221-0825 神奈川県横浜市神奈川区反町4-37-3 日伸ビル横浜反町1階・2階 |
Local appearance photo現地外観写真  Local (November 26, 2013) Shooting
現地(2013年11月26日)撮影
Livingリビング  Indoor (November 26, 2013) Shooting
室内(2013年11月26日)撮影
Kitchenキッチン  Indoor (November 26, 2013) Shooting
室内(2013年11月26日)撮影
Floor plan間取り図  (Building 2), Price 43,800,000 yen, 2LDK+2S, Land area 111.69 sq m , Building area 100.39 sq m
(2号棟)、価格4380万円、2LDK+2S、土地面積111.69m2、建物面積100.39m2
Livingリビング  Indoor (November 26, 2013) Shooting
室内(2013年11月26日)撮影
Bathroom浴室  Indoor (November 26, 2013) Shooting
室内(2013年11月26日)撮影
Non-living roomリビング以外の居室  Indoor (November 26, 2013) Shooting
室内(2013年11月26日)撮影
Wash basin, toilet洗面台・洗面所  Indoor (November 26, 2013) Shooting
室内(2013年11月26日)撮影
Receipt収納  Indoor (November 26, 2013) Shooting
室内(2013年11月26日)撮影
Toiletトイレ  Indoor (November 26, 2013) Shooting
室内(2013年11月26日)撮影
Balconyバルコニー  (November 26, 2013) Shooting
(2013年11月26日)撮影
Station駅  160m until the JR Yokohama Line "Zhongshan" station
JR横浜線「中山」駅まで160m
Other introspectionその他内観  Double sash (November 26, 2013) Shooting
二重サッシ(2013年11月26日)撮影
 The entire compartment Figure
全体区画図
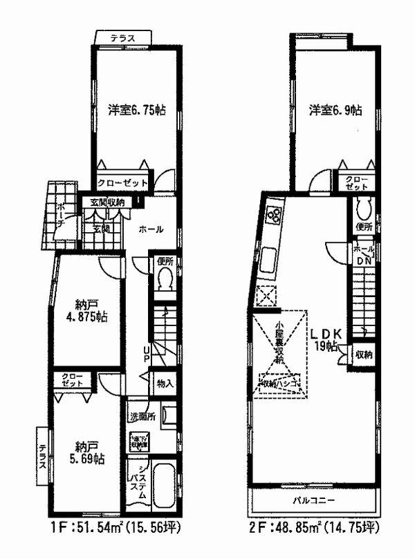
Floor plan間取り図  (3 Building), Price 44,800,000 yen, 4LDK, Land area 123.5 sq m , Building area 100.29 sq m
(3号棟)、価格4480万円、4LDK、土地面積123.5m2、建物面積100.29m2
Livingリビング  Indoor (November 26, 2013) Shooting
室内(2013年11月26日)撮影
Non-living roomリビング以外の居室  Storeroom (November 26, 2013) Shooting
納戸(2013年11月26日)撮影
Receipt収納  Indoor (November 26, 2013) Shooting
室内(2013年11月26日)撮影
Balconyバルコニー  (November 26, 2013) Shooting
(2013年11月26日)撮影
Other introspectionその他内観  Attic storage (November 26, 2013) Shooting
小屋裏収納(2013年11月26日)撮影
Floor plan間取り図  (4 Building), Price 36,800,000 yen, 2LDK+2S, Land area 66.09 sq m , Building area 101.26 sq m
(4号棟)、価格3680万円、2LDK+2S、土地面積66.09m2、建物面積101.26m2
Location
|