New Homes » Kanto » Kanagawa Prefecture » Yokohama Midori-ku
 
| | Yokohama-shi, Kanagawa-ku, green 神奈川県横浜市緑区 |
| JR Yokohama Line "lintel" walk 9 minutes JR横浜線「鴨居」歩9分 |
| ◆ JR Yokohama Line "lintel" station 7-minute walk of the good location! 4LDK of the site area of about 40 square meters ☆ Car space two Allowed! Flat 35S corresponding! primary school, Very good child-rearing living environment in the supermarket close! Enhancement also premises equipment! ◆JR横浜線「鴨居」駅徒歩7分の好立地!敷地面積約40坪の4LDK☆カースペース2台可!フラット35S対応!小学校、スーパー至近で子育て住環境大変良好!宅内設備も充実! |
| ◆ Property Point !! ・ Good location of "kamoi station" 7 minutes walk! Useful in a large shopping mall "LaLaport" within walking distance! ・ Such as guarantee "ground support system" is also peace of mind in the enhancement! ・ Good per sun in the southeast road! Car space two Allowed! ・ Dishwasher system Kitchen ・ Bathroom heating dryer ・ LED lighting ・ Enhancement also entrance card keys and the like equipment! ・ Walk-in closet, Underfloor Storage, Storage space rich in all the living room storage! ◆ Since the popularity of land local guide is recommended as soon as possible! ◆ ◆ Detailed materials for this property, Current and local photos now, You can send it also summarized another listing in the vicinity of "lintel," "Shin-Yokohama" station! First of all, please contact us ◆ ◆ Measures to conserve energy, Corresponding to the flat-35S, Pre-ground survey ◆物件Point!!・「鴨居駅」徒歩7分の好立地!大型ショッピングモール「ららぽーと」徒歩圏内で便利!・「地盤サポートシステム」等保証も充実で安心!・南東道路で陽当たり良好!カースペース2台可!・食洗機付システムキッチン・浴室暖房乾燥機・LED照明・玄関カードキー等設備も充実!・ウォークインクローゼット、床下収納、全居室収納で収納スペース豊富!◆人気の土地なので現地案内はお早めをオススメ!◆◆この物件の詳しい資料、今現在の現地写真と、「鴨居」「新横浜」駅付近の別の物件情報もまとめてお送りする事ができます!まずはお問い合わせ下さい◆◆省エネルギー対策、フラット35Sに対応、地盤調査済 |
Features pickup 特徴ピックアップ | | Measures to conserve energy / Corresponding to the flat-35S / Pre-ground survey / Vibration Control ・ Seismic isolation ・ Earthquake resistant / Parking two Allowed / 2 along the line more accessible / Super close / It is close to the city / System kitchen / Bathroom Dryer / Yang per good / All room storage / LDK15 tatami mats or more / Japanese-style room / Washbasin with shower / Face-to-face kitchen / Toilet 2 places / Bathroom 1 tsubo or more / 2-story / South balcony / Double-glazing / Underfloor Storage / The window in the bathroom / TV monitor interphone / High-function toilet / Dish washing dryer / Walk-in closet / Water filter / City gas / terrace 省エネルギー対策 /フラット35Sに対応 /地盤調査済 /制震・免震・耐震 /駐車2台可 /2沿線以上利用可 /スーパーが近い /市街地が近い /システムキッチン /浴室乾燥機 /陽当り良好 /全居室収納 /LDK15畳以上 /和室 /シャワー付洗面台 /対面式キッチン /トイレ2ヶ所 /浴室1坪以上 /2階建 /南面バルコニー /複層ガラス /床下収納 /浴室に窓 /TVモニタ付インターホン /高機能トイレ /食器洗乾燥機 /ウォークインクロゼット /浄水器 /都市ガス /テラス | Event information イベント情報 | | Local guide Board (Please be sure to ask in advance) schedule / Every Saturday, Sunday and public holidays time / 9:00 ~ 21:00 ※ Local guide the Board does not matter special time. For example, a weekday night 20 pm ~ , 21 pm ~ Also we will correspond in such. (Except Wednesday) Please feel free to tell us. -=-=-=-=-=-=-=-=-=-=-=-=-=-=-=-=-=-=-=--=-=-=-=-=-=-=-=-=-=-=-=-=-=-=-=-=-=-=--=-=-=-=-=-=-=-=-=-=-=-=-=-=-=-=-=-=-=-=-=-=- ■ ■ ■ Mortgage Consultation Notice ■ ■ ■ Tell ・ The Corporation, We have carried out at any time mortgage Consultation. You can estimate the properties that you can buy from the annual income, Loan estimates the property to be worried about, Any cost that take time to actually buy real estate? , Specific financial planning simulation Please leave. Such as anxiety and questions in the case of real estate purchase, In words that our professional staff is easy to understand even the general public, Carefully eliminated ・ We support. Also, Since this can be a guide when looking for property on the net, Please feel free to contact us first. →→→ toll-free [0800-808-9889] ←←← access map http: / / www.teru-c.co.jp / company / map.html ※ Wednesday will be a regular holiday. In the case of Wednesday, Please contact us from the bottom of the orange document request button. -=-=-=-=-=-=-=-=-=-=-=-=-=-=-=-=-=-=-=--=-=-=-=-=-=-=-=-=-=-=-=-=-=-=-=-=-=-=--=-=-=-=-=-=-=-=-=-=-=-=-=-=-=-=-=-=-=-=-=-=- 現地案内会(事前に必ずお問い合わせください)日程/毎週土日祝時間/9:00 ~ 21:00※現地案内会は特別時間は問いません。例えば平日夜20時 ~ 、21時 ~ などでも対応いたします。(水曜日を除く)お気軽にお申し付けください。-=-=-=-=-=-=-=-=-=-=-=-=-=-=-=-=-=-=-=--=-=-=-=-=-=-=-=-=-=-=-=-=-=-=-=-=-=-=--=-=-=-=-=-=-=-=-=-=-=-=-=-=-=-=-=-=-=-=-=-=-■■■住宅ローン相談会のお知らせ■■■テル・コーポレーションでは、随時住宅ローン相談会を実施しております。年収から買える物件を試算したり、気になる物件のローン試算、実際不動産を購入する際どんな費用がかかるの?なども含め、具体的な資金計画シュミレーションもお任せください。不動産ご購入の際の不安や疑問点などは、弊社の専門のスタッフが一般の方々でもわかりやすい言葉で、丁寧に解消・サポートいたします。また、ネットで物件を探す際の目安にもなりますので、まずお気軽にお問い合わせください。 →→→フリーダイヤル 【0800-808-9889】←←← アクセスマップ http://www.teru-c.co.jp/company/map.html ※水曜日は定休日となります。水曜日の場合は、下部のオレンジ色資料請求ボタンよりお問い合わせください。-=-=-=-=-=-=-=-=-=-=-=-=-=-=-=-=-=-=-=--=-=-=-=-=-=-=-=-=-=-=-=-=-=-=-=-=-=-=--=-=-=-=-=-=-=-=-=-=-=-=-=-=-=-=-=-=-=-=-=-=- | Property name 物件名 | | ◆ ◆ Kamoi station 7 minutes walk ◆ 4LDK of land about 40 square meters ・ Two-story ◆ Car space two Allowed! ◆ ◆ ◆◆鴨居駅徒歩7分◆土地約40坪の4LDK・2階建て◆カースペース2台可!◆◆ | Price 価格 | | 47,958,000 yen 4795万8000円 | Floor plan 間取り | | 4LDK 4LDK | Units sold 販売戸数 | | 2 units 2戸 | Total units 総戸数 | | 2 units 2戸 | Land area 土地面積 | | 131.97 sq m ~ 132.14 sq m (39.92 tsubo ~ 39.97 tsubo) (measured) 131.97m2 ~ 132.14m2(39.92坪 ~ 39.97坪)(実測) | Building area 建物面積 | | 94.2 sq m ~ 96.06 sq m (28.49 tsubo ~ 29.05 tsubo) (measured) 94.2m2 ~ 96.06m2(28.49坪 ~ 29.05坪)(実測) | Driveway burden-road 私道負担・道路 | | The building area including porch part 0.62 sq m (2 Building only) 建物面積にポーチ部分0.62m2含む(2号棟のみ) | Completion date 完成時期(築年月) | | February 2014 early schedule 2014年2月初旬予定 | Address 住所 | | Yokohama-shi, Kanagawa-ku, green lintel 4 神奈川県横浜市緑区鴨居4 | Traffic 交通 | | JR Yokohama Line "lintel" walk 9 minutes Green Line "Kawawa town" walk 44 minutes JR Yokohama Line "Zhongshan" walk 38 minutes JR横浜線「鴨居」歩9分 グリーンライン「川和町」歩44分 JR横浜線「中山」歩38分
| Related links 関連リンク | | [Related Sites of this company] 【この会社の関連サイト】 | Person in charge 担当者より | | Rep Wakaguri Nobuyuki Age: 30s I think in probably the highest shopping in the real estate purchase life. It is multiplied by the consent able time to expensive ones, We will give a variety of knowledge, We will be qualified suggestions as who can give pleasure to your purchase in the best form 担当者若栗 宣幸年齢:30代不動産の購入人生でおそらく一番高いお買い物になるのではないでしょうか。高価な物にはご納得頂ける時間をかけ、様々な知識を得て頂き、最良の形でご購入する喜びを得て頂けるよう適格なご提案をさせて頂きます | Contact お問い合せ先 | | TEL: 0800-808-9889 [Toll free] mobile phone ・ Also available from PHS Caller ID is not notified Please contact the "saw SUUMO (Sumo)" If it does not lead, If the real estate company TEL:0800-808-9889【通話料無料】携帯電話・PHSからもご利用いただけます 発信者番号は通知されません 「SUUMO(スーモ)を見た」と問い合わせください つながらない方、不動産会社の方は
| Building coverage, floor area ratio 建ぺい率・容積率 | | Building coverage: 50%, Volume ratio: 80% 建ぺい率:50%、容積率:80% | Time residents 入居時期 | | February 2014 early schedule 2014年2月初旬予定 | Land of the right form 土地の権利形態 | | Ownership 所有権 | Structure and method of construction 構造・工法 | | Wooden 2-story 木造2階建 | Use district 用途地域 | | One low-rise 1種低層 | Land category 地目 | | Residential land 宅地 | Other limitations その他制限事項 | | Height district 高度地区 | Overview and notices その他概要・特記事項 | | Contact: Wakaguri Nobuyuki, Building confirmation number: 2140 担当者:若栗 宣幸、建築確認番号:2140 | Company profile 会社概要 | | <Mediation> Kanagawa Governor (2) No. 025129 (Ltd.) Tel ・ Corporation Yubinbango220-0011 Kanagawa Prefecture, Nishi-ku, Yokohama-shi Takashima 2-6-32 <仲介>神奈川県知事(2)第025129号(株)テル・コーポレーション〒220-0011 神奈川県横浜市西区高島2-6-32 |
Same specifications photos (appearance)同仕様写真(外観)  ※ It is a photograph of the company's specification example. Local guides are available! It is recommended for those looking for a car space two properties in walking distance from the lintel Station!
※同社仕様例の外観写真です。現地案内可能です!鴨居駅から徒歩圏でカースペース2台の物件をお探しの方にオススメです!
Same specifications photos (living)同仕様写真(リビング)  Conversation bouncy face-to-face kitchen type of living 15 quires! There LD integrally available Japanese-style room! (Building 2) (company specification example)
会話弾む対面キッチン式のリビング15帖!LDと一体利用可能な和室有り!(2号棟)(同社仕様例)
Same specifications photo (kitchen)同仕様写真(キッチン)  System kitchen with a dishwasher is excellent usability! Population marble top plate ☆ (The company specification example)
食洗機付のシステムキッチンは使い勝手抜群!人口大理石天板☆(同社仕様例)
Same specifications photo (bathroom)同仕様写真(浴室)  Bathroom with heating dryer! LED lighting is also attractive! (The company specification example)
浴室暖房乾燥機付!LED照明も魅力!(同社仕様例)
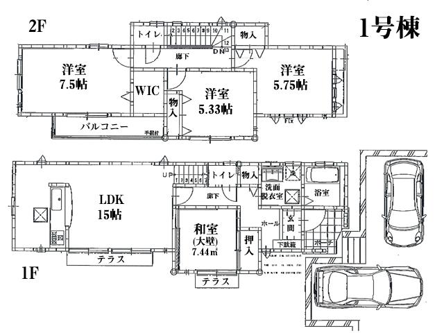
Floor plan間取り図  (1 Building), Price 47,958,000 yen, 4LDK, Land area 131.97 sq m , Building area 94.2 sq m
(1号棟)、価格4795万8000円、4LDK、土地面積131.97m2、建物面積94.2m2
Primary school小学校  Yokohama Municipal lintel 300m up to elementary school
横浜市立鴨居小学校まで300m
Same specifications photos (Other introspection)同仕様写真(その他内観)  (The company specification example)
(同社仕様例)
 The entire compartment Figure
全体区画図
Otherその他  Restaurant ・ Movie theater ・ This is useful in a fashion such as store a variety of "LaLaport Yokohama" within walking distance
レストラン・映画館・ファッション等店舗多彩な「ららぽーと横浜」徒歩圏内で便利です
Floor plan間取り図  (Building 2), Price 47,958,000 yen, 4LDK, Land area 132.14 sq m , Building area 96.06 sq m
(2号棟)、価格4795万8000円、4LDK、土地面積132.14m2、建物面積96.06m2
Junior high school中学校  Yokohama Tatsuhigashi lintel up to junior high school 900m
横浜市立東鴨居中学校まで900m
Same specifications photos (Other introspection)同仕様写真(その他内観)  (The company specification example)
(同社仕様例)
Station駅  550m until JR kamoi station
JR鴨居駅まで550m
Supermarketスーパー  550m to business super lintel shop
業務スーパー鴨居店まで550m
Kindergarten ・ Nursery幼稚園・保育園  Cherry Mirai Go 320m to nursery school
さくらの郷みらい保育園まで320m
Hospital病院  Lintel 320m to the hospital
鴨居病院まで320m
Location
|