New Homes » Kanto » Kanagawa Prefecture » Yokohama Midori-ku
 
| | Yokohama-shi, Kanagawa-ku, green 神奈川県横浜市緑区 |
| Denentoshi Tokyu "Aobadai" 20 minutes Ayumi Sugisawa 1 minute bus 東急田園都市線「青葉台」バス20分杉沢歩1分 |
| 3 Station Available commute, Convenient location to go to school ・ Leafy quiet residential area ・ Good day every south-facing dwelling unit ・ Flat 35S corresponding housing ・ Local will guide you, Please feel free to contact us. 3駅利用可の通勤、通学に便利な立地・緑豊かな閑静な住宅街・南向き住戸につき日当たり良好・フラット35S対応住宅・現地ご案内いたします、お気軽にお問い合わせください。 |
| Building 20 year warranty ・ Livable 2-story, 4LDK ・ Sick measures specification housing in consideration of the health and the environment ・ Thermal insulation properties, Pair glass sash adopted with excellent sound insulation ・ Reheating function, Shower Dresser, TV Intercom such as in-room facilities enhancement 建物20年保証付・暮らしやすい2階建、4LDK・健康や環境に配慮したシックハウス対策仕様住宅・断熱性、遮音性に優れたペアガラスサッシ採用・追い焚き機能、シャワードレッサー、TVドアホン等室内設備充実 |
Features pickup 特徴ピックアップ | | Design house performance with evaluation / Corresponding to the flat-35S / Pre-ground survey / Parking two Allowed / 2 along the line more accessible / Fiscal year Available / Facing south / System kitchen / Yang per good / All room storage / Siemens south road / A quiet residential area / Or more before road 6m / Japanese-style room / Starting station / Washbasin with shower / Face-to-face kitchen / Toilet 2 places / Bathroom 1 tsubo or more / 2-story / South balcony / Double-glazing / Zenshitsuminami direction / Nantei / Underfloor Storage / The window in the bathroom / TV monitor interphone / All living room flooring / Walk-in closet / Water filter / City gas / All rooms are two-sided lighting / Maintained sidewalk / Flat terrain / Development subdivision in 設計住宅性能評価付 /フラット35Sに対応 /地盤調査済 /駐車2台可 /2沿線以上利用可 /年度内入居可 /南向き /システムキッチン /陽当り良好 /全居室収納 /南側道路面す /閑静な住宅地 /前道6m以上 /和室 /始発駅 /シャワー付洗面台 /対面式キッチン /トイレ2ヶ所 /浴室1坪以上 /2階建 /南面バルコニー /複層ガラス /全室南向き /南庭 /床下収納 /浴室に窓 /TVモニタ付インターホン /全居室フローリング /ウォークインクロゼット /浄水器 /都市ガス /全室2面採光 /整備された歩道 /平坦地 /開発分譲地内 | Property name 物件名 | | "Lush living environment! Building 20-year warranty! "Midori-ku Miho-cho, new construction condominiums all 17 buildings 《緑豊かな住環境!建物20年保証!》緑区三保町新築分譲住宅全17棟 | Price 価格 | | 30,800,000 yen ~ 37,800,000 yen 3080万円 ~ 3780万円 | Floor plan 間取り | | 4LDK 4LDK | Units sold 販売戸数 | | 8 units 8戸 | Total units 総戸数 | | 17 units 17戸 | Land area 土地面積 | | 125.02 sq m ~ 126.29 sq m (37.81 tsubo ~ 38.20 tsubo) (Registration) 125.02m2 ~ 126.29m2(37.81坪 ~ 38.20坪)(登記) | Building area 建物面積 | | 90.25 sq m ~ 93.98 sq m (27.30 tsubo ~ 28.42 tsubo) (Registration) 90.25m2 ~ 93.98m2(27.30坪 ~ 28.42坪)(登記) | Completion date 完成時期(築年月) | | 2014 end of January schedule 2014年1月末予定 | Address 住所 | | Yokohama-shi, Kanagawa-ku, green Miho-cho 神奈川県横浜市緑区三保町 | Traffic 交通 | | Denentoshi Tokyu "Aobadai" 20 minutes Ayumi Sugisawa 1 minute bus JR Yokohama Line "Tokaichiba" walk 16 minutes Green Line "Zhongshan" walk 20 minutes 東急田園都市線「青葉台」バス20分杉沢歩1分 JR横浜線「十日市場」歩16分 グリーンライン「中山」歩20分
| Person in charge 担当者より | | We are dedicating personnel system for each person in charge customers. 担当者お客様毎に専属担当者制です。 | Contact お問い合せ先 | | TEL: 0800-603-7504 [Toll free] mobile phone ・ Also available from PHS Caller ID is not notified Please contact the "saw SUUMO (Sumo)" If it does not lead, If the real estate company TEL:0800-603-7504【通話料無料】携帯電話・PHSからもご利用いただけます 発信者番号は通知されません 「SUUMO(スーモ)を見た」と問い合わせください つながらない方、不動産会社の方は
| Building coverage, floor area ratio 建ぺい率・容積率 | | Building coverage: 40%, Volume ratio: 80% 建ぺい率:40%、容積率:80% | Time residents 入居時期 | | 2014 end of January schedule 2014年1月末予定 | Land of the right form 土地の権利形態 | | Ownership 所有権 | Use district 用途地域 | | One low-rise 1種低層 | Other limitations その他制限事項 | | Height district, Height ceiling Yes, Site area minimum Yes 高度地区、高さ最高限度有、敷地面積最低限度有 | Overview and notices その他概要・特記事項 | | The person in charge: is dedicating personnel system for each customer. , Building confirmation number: No. HPA-13-03806-1 other 担当者:お客様毎に専属担当者制です。、建築確認番号:第HPA-13-03806-1号他 | Company profile 会社概要 | | <Mediation> Kanagawa Governor (2) the first 026,326 No. Century 21 Global Home Co., Ltd. Sales Lesson 5 Yubinbango221-0825 Kanagawa Prefecture, Kanagawa-ku, Yokohama-shi Sorimachi 4-37-3 Nissin building Yokohama Sorimachi first floor ・ Second floor <仲介>神奈川県知事(2)第026326号センチュリー21グローバルホーム(株)営業5課〒221-0825 神奈川県横浜市神奈川区反町4-37-3 日伸ビル横浜反町1階・2階 |
Park公園  Flowing through the nearby located along Umeda River is the "log bridge Medaka Square". It is perfect for a walk of your child or pet.
近くを流れる梅田川沿いにある『一本橋メダカひろば』です。お子さんやペットの散歩にぴったりです。
Local appearance photo現地外観写真  It is N Building appearance, facing the south side of the road. Garden part in the block has been divided on the south side. 2013 December 24, shooting
南側道路に面したN号棟外観です。南側にブロックで庭部分が仕切られています。2013年12月24日撮影
Local photos, including front road前面道路含む現地写真  N ~ The front of the Q Building (south side) is the road. Traffic volume there are not many in spite of road width. The sidewalk is also in place is safe. 2013 December 24, shooting
N ~ Q号棟の前面(南側)道路です。道幅のわりに交通量は多くありません。歩道も整備され安心です。2013年12月24日撮影
Local appearance photo現地外観写真  It will be the development subdivision in the location of all 17 buildings. 2013 December 24, shooting
全17棟の開発分譲地内立地になります。2013年12月24日撮影
Floor plan間取り図  (C Building), Price 35,800,000 yen, 4LDK, Land area 125.04 sq m , Building area 91.91 sq m
(C号棟)、価格3580万円、4LDK、土地面積125.04m2、建物面積91.91m2
Local appearance photo現地外観写真  Is the C building in the south-east road surface. Lighting of the living room has become easy to take window placement most. 2013 December 24, shooting
南東道路面のC棟です。リビングの採光が一番取りやすい窓配置になっています。2013年12月24日撮影
Station駅  JR Yokohama Line and "Tokaichiba" to the station 1280m "Daiei" "Sotetsu Rosen," "Ho Mesto Plaza" located in the peripheral.
JR横浜線「十日市場」駅まで1280m 『ダイエー』『そうてつローゼン』『ホーメストプラザ』などが周辺にあります。
 The entire compartment Figure
全体区画図
Floor plan間取り図  (G Building), Price 35,800,000 yen, 4LDK, Land area 125.16 sq m , Building area 90.25 sq m
(G号棟)、価格3580万円、4LDK、土地面積125.16m2、建物面積90.25m2
Local appearance photo現地外観写真  Is the G building of flag-type land. Have vacant south direction of space, In fact, good per yang! 2013 December 24, shooting
旗型土地のG棟です。南方向の空間が空いていて、実は陽当たり良好です!2013年12月24日撮影
Station駅  Yokohama Line ・ We will be starting station & Yokohama Line rapid stop station of 1600m Green Line to the green line "Zhongshan" station. Station building and "Nakayama Tokyu" is located next.
横浜線・グリーンライン「中山」駅まで1600m グリーンラインの始発駅&横浜線快速停車駅になります。駅ビルや『中山とうきゅう』が隣接しています。
Floor plan間取り図  (H Building), Price 36.5 million yen, 4LDK, Land area 125.04 sq m , Building area 91.91 sq m
(H号棟)、価格3650万円、4LDK、土地面積125.04m2、建物面積91.91m2
Local appearance photo現地外観写真  Is H building facing the turn of the road. It has become a position up, such as the southwest corner lot. 2013 December 24, shooting
道路の転回部に面したH棟です。南西角地のような位置取りになっています。2013年12月24日撮影
Station駅  Tokyu Denentoshi "Aobadai" station up to 3300m Denentoshi express & local express stop station. There are a lot of commercial facilities were, including the "Tokyu Square", Terminal is a station.
東急田園都市線「青葉台」駅まで3300m 田園都市線の急行&準急停車駅。『東急スクエア』をはじめとした商業施設が沢山ある、ターミナル駅です。
Floor plan間取り図  (M Building), Price 30,800,000 yen, 4LDK, Land area 125.02 sq m , Building area 93.56 sq m
(M号棟)、価格3080万円、4LDK、土地面積125.02m2、建物面積93.56m2
Local appearance photo現地外観写真  Is the M building of eyeball price. It will be 3080 yen in the garage of the two 4LDK. 2013 December 24, shooting
目玉価格のM棟です。車庫2台の4LDKで3080万円になります。2013年12月24日撮影
Drug storeドラッグストア  750m to fit care depot Tokaichiba shop
フィットケアデポ十日市場店まで750m
Floor plan間取り図  (N Building), Price 37,800,000 yen, 4LDK, Land area 125.04 sq m , Building area 91.5 sq m
(N号棟)、価格3780万円、4LDK、土地面積125.04m2、建物面積91.5m2
Local appearance photo現地外観写真  Zenshitsuminami orientation is of N Building. Also Actually, large balcony is the best, It is this N Building. 2013 December 24, shooting
全室南向きのN棟です。実はバルコニーが一番広いのも、このN棟です。2013年12月24日撮影
Shopping centreショッピングセンター  Zhongshan to Tokyu 1600m
中山とうきゅうまで1600m
Floor plan間取り図  (O Building), Price 37,400,000 yen, 4LDK, Land area 125.05 sq m , Building area 92.74 sq m
(O号棟)、価格3740万円、4LDK、土地面積125.05m2、建物面積92.74m2
Local appearance photo現地外観写真  Zenshitsuminami direction ・ Is O building with a garden on the south side. 2013 December 24, shooting
全室南向き・南側に庭のあるO棟です。2013年12月24日撮影
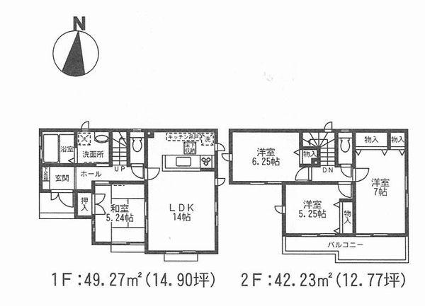
Floor plan間取り図  Flowing through the nearby located along Umeda River is the "log bridge Medaka Square". It is perfect for a walk of your child or pet.
近くを流れる梅田川沿いにある『一本橋メダカひろば』です。お子さんやペットの散歩にぴったりです。
 (Q Building), Price 35,800,000 yen, 4LDK, Land area 126.29 sq m , Building area 93.98 sq m
(Q号棟)、価格3580万円、4LDK、土地面積126.29m2、建物面積93.98m2
Shopping centreショッピングセンター  Shopping mall gathering of the various shops that were, including the 3600m, "Maruetsu," "nojima" "Royal Home Center" to the four seasons of the forest Foreo.
四季の森フォレオまで3600m 『マルエツ』『nojima』『ロイヤルホームセンター』をはじめとした様々なお店の集まるショッピングモールです。
 LaLaport is 4600m, "Ito-Yokado," "Tokyu Hands," "TOHO Cinemas" about 370 stores shopping center tenants gather in the main up to Yokohama.
ららぽーと横浜まで4600m 『イトーヨーカドー』『東急ハンズ』『TOHOシネマズ』をメインに約370店のテナントが集まるショッピングセンターです。
Location
|