New Homes » Kanto » Kanagawa Prefecture » Nishi-ku, Yokohama-shi
 
| | Kanagawa Prefecture, Nishi-ku, Yokohama-shi 神奈川県横浜市西区 |
| JR Tokaido Line "Yokohama" walk 16 minutes JR東海道本線「横浜」歩16分 |
| Yokohama Station, Flat city from Tennōchō Station, Asama-cho Yonchome. Three stories, Penthouse with rooftop, 2SLDK new homes built carport. Super Summit, There Matsubara mall near, Shopping flights good 横浜駅、天王町駅から平坦な街、浅間町四丁目。3階建て、ペントハウス屋上付、ビルトインカーポートの2SLDK新築住宅。スーパーサミット、松原商店街が近くにあり、買物便良好 |
| Flat terrain, Fiscal year Available, Around traffic fewer, Super close, All room storage, Bathroom 1 tsubo or more, 2 along the line more accessible, System kitchen, Bathroom Dryer, Flat to the station, LDK15 tatami mats or more, Starting station, Toilet 2 places, TV monitor interphone, Dish washing dryer, Three-story or more, City gas, roof balcony 平坦地、年度内入居可、周辺交通量少なめ、スーパーが近い、全居室収納、浴室1坪以上、2沿線以上利用可、システムキッチン、浴室乾燥機、駅まで平坦、LDK15畳以上、始発駅、トイレ2ヶ所、TVモニタ付インターホン、食器洗乾燥機、3階建以上、都市ガス、ルーフバルコニー |
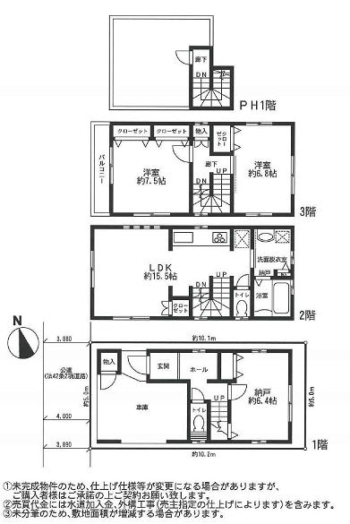
Features pickup 特徴ピックアップ | | 2 along the line more accessible / Fiscal year Available / Super close / System kitchen / Bathroom Dryer / All room storage / Flat to the station / LDK15 tatami mats or more / Around traffic fewer / Starting station / Toilet 2 places / Bathroom 1 tsubo or more / TV monitor interphone / Dish washing dryer / Three-story or more / City gas / roof balcony / Flat terrain 2沿線以上利用可 /年度内入居可 /スーパーが近い /システムキッチン /浴室乾燥機 /全居室収納 /駅まで平坦 /LDK15畳以上 /周辺交通量少なめ /始発駅 /トイレ2ヶ所 /浴室1坪以上 /TVモニタ付インターホン /食器洗乾燥機 /3階建以上 /都市ガス /ルーフバルコニー /平坦地 | Price 価格 | | 41,450,000 yen 4145万円 | Floor plan 間取り | | 2LDK + S (storeroom) 2LDK+S(納戸) | Units sold 販売戸数 | | 1 units 1戸 | Land area 土地面積 | | 51.09 sq m (15.45 tsubo) (measured) 51.09m2(15.45坪)(実測) | Building area 建物面積 | | 107.92 sq m (32.64 tsubo) (measured), Among the first floor garage 11.54 sq m 107.92m2(32.64坪)(実測)、うち1階車庫11.54m2 | Driveway burden-road 私道負担・道路 | | Nothing, West 3.8m width (contact the road width 5m) 無、西3.8m幅(接道幅5m) | Completion date 完成時期(築年月) | | March 2014 2014年3月 | Address 住所 | | Yokohama City, Kanagawa Prefecture, Nishi-ku Sengen-cho 4 神奈川県横浜市西区浅間町4 | Traffic 交通 | | JR Tokaido Line "Yokohama" walk 16 minutes Sagami Railway Main Line "Tenno-cho" walk 12 minutes Sagami Railway Main Line "Nishiyokohama" walk 11 minutes JR東海道本線「横浜」歩16分 相鉄本線「天王町」歩12分 相鉄本線「西横浜」歩11分
| Person in charge 担当者より | | Rep Takao Asahina 担当者朝比奈孝夫 | Contact お問い合せ先 | | Misawa Homes Tokyo Co., Ltd. Yokohama Branch TEL: 0800-603-0342 [Toll free] mobile phone ・ Also available from PHS Caller ID is not notified Please contact the "saw SUUMO (Sumo)" If it does not lead, If the real estate company ミサワホーム東京(株)横浜支店TEL:0800-603-0342【通話料無料】携帯電話・PHSからもご利用いただけます 発信者番号は通知されません 「SUUMO(スーモ)を見た」と問い合わせください つながらない方、不動産会社の方は
| Building coverage, floor area ratio 建ぺい率・容積率 | | 80% ・ 240 percent 80%・240% | Time residents 入居時期 | | March 2014 schedule 2014年3月予定 | Land of the right form 土地の権利形態 | | Ownership 所有権 | Structure and method of construction 構造・工法 | | Wooden three-story (framing method) 木造3階建(軸組工法) | Construction 施工 | | (Ltd.) dwelling Partners (株)すまいパートナーズ | Use district 用途地域 | | Residential 近隣商業 | Other limitations その他制限事項 | | Set-back: already, Height district, Quasi-fire zones セットバック:済、高度地区、準防火地域 | Overview and notices その他概要・特記事項 | | Contact: Takao Asahina, Facilities: Public Water Supply, This sewage, City gas, Building confirmation number: No. 13KAK Ken確 03949, Parking: Garage 担当者:朝比奈孝夫、設備:公営水道、本下水、都市ガス、建築確認番号:第13KAK建確03949号、駐車場:車庫 | Company profile 会社概要 | | <Mediation> Minister of Land, Infrastructure and Transport (12) No. 001064 (one company) National Housing Industry Association (Corporation) metropolitan area real estate Fair Trade Council member Misawa Tokyo Co., Ltd. Yokohama branch Yubinbango244-0805 Kanagawa Prefecture, Totsuka-ku, Yokohama-shi Kawakami cho, 90-6 <仲介>国土交通大臣(12)第001064号(一社)全国住宅産業協会会員 (公社)首都圏不動産公正取引協議会加盟ミサワホーム東京(株)横浜支店〒244-0805 神奈川県横浜市戸塚区川上町90-6 |
Local appearance photo現地外観写真  Local (10 May 2013) Shooting
現地(2013年10月)撮影
Local photos, including front road前面道路含む現地写真  Local (10 May 2013) Shooting
現地(2013年10月)撮影
Floor plan間取り図  41,450,000 yen, 2LDK + S (storeroom), Land area 51.09 sq m , Building area 107.92 sq m
4145万円、2LDK+S(納戸)、土地面積51.09m2、建物面積107.92m2
Otherその他  Neighborhood park
近隣公園
 West Sports Center
西スポーツセンター
Location
|