New Homes » Kanto » Kanagawa Prefecture » Yokohama Sakae-ku


Yokohama-shi, Kanagawa-ku Sakae
JR Negishi Line "Hongodai" 8 minutes Ayumi Naganuma 3 minutes by bus
Imposing building completed! ! Spacious living room, etc. in the 2-story! ! By all means please see once. 2 station 5 routes available! ! Also walk in a 3-minute walk from the bus stop in a convenient location to commute.
※ 2013 December 25 ~ Heisei will carry out the rest until January 2, 2014. New Year will be open from 3 days. 2 along the line more accessible, Siemens south road, A quiet residential area, Around traffic fewer, Corner lot, Shaping land, Super close, System kitchen, Bathroom Dryer, Yang per good, All room storage, LDK15 tatami mats or more, Washbasin with shower, Face-to-face kitchen, Toilet 2 places, Bathroom 1 tsubo or more, Double-glazing, Warm water washing toilet seat, TV monitor interphone, Mu front building, Water filter, City gas, Floor heating, Development subdivision in
Features pickup
2 along the line more accessible / Super close / System kitchen / Bathroom Dryer / Yang per good / All room storage / Siemens south road / A quiet residential area / LDK15 tatami mats or more / Around traffic fewer / Corner lot / Shaping land / Washbasin with shower / Face-to-face kitchen / Toilet 2 places / Bathroom 1 tsubo or more / Double-glazing / Warm water washing toilet seat / TV monitor interphone / Mu front building / Water filter / City gas / Floor heating / Development subdivision in
Event information
Local guide Board (Please be sure to ask in advance) schedule / Every Saturday, Sunday and public holidays time / 10:00 ~ 17:00
Property name
Art House select Hongodai newly built condominiums
Price
26,800,000 yen ~ 32,800,000 yen
Floor plan
3LDK ~ 4LDK
Units sold
4 units
Total units
4 units
Land area
100.07 sq m ~ 122.81 sq m (measured)
Building area
90.42 sq m ~ 99.41 sq m
Completion date
2013 end of December schedule
Address
Yokohama-shi, Kanagawa-ku Sakae Naganuma
Traffic
JR Negishi Line "Hongodai" 8 minutes Ayumi Naganuma 3 minutes by bus
JR Yokosuka Line "Totsuka" bus 9 minutes Ayumi Naganuma 3 minutes
JR Keihin Tohoku Line "Hongodai" walk 26 minutes
Related links
[Related Sites of this company]
Person in charge
Rep Ishikura Yuta Age: 30s
Contact
TEL: 0800-603-6868 [Toll free] mobile phone ・ Also available from PHS
Caller ID is not notified
Please contact the "saw SUUMO (Sumo)"
If it does not lead, If the real estate company
Building coverage, floor area ratio
Kenpei rate: 60%, Volume ratio: 150%
Time residents
Consultation
Land of the right form
Ownership
Structure and method of construction
Wooden 2-story
Use district
Two mid-high
Land category
Residential land
Overview and notices
Contact: Ishikura Yuta, Building confirmation number: KamiKenyasu cooperation 00900Y
Company profile
<Mediation> Kanagawa Governor (2) the first 026,020 No. Art House Co., Ltd. Sales Division 1 Division Yubinbango222-0037 Yokohama-shi, Kanagawa-ku, Kohoku Okurayama 3-3-39 Art building first floor


Local appearance photo

Local appearance photo. Local (February 2013) Shooting
Local (February 2013) Shooting

Local appearance photo. Local (11 May 2013) Shooting
Local (11 May 2013) Shooting

Other

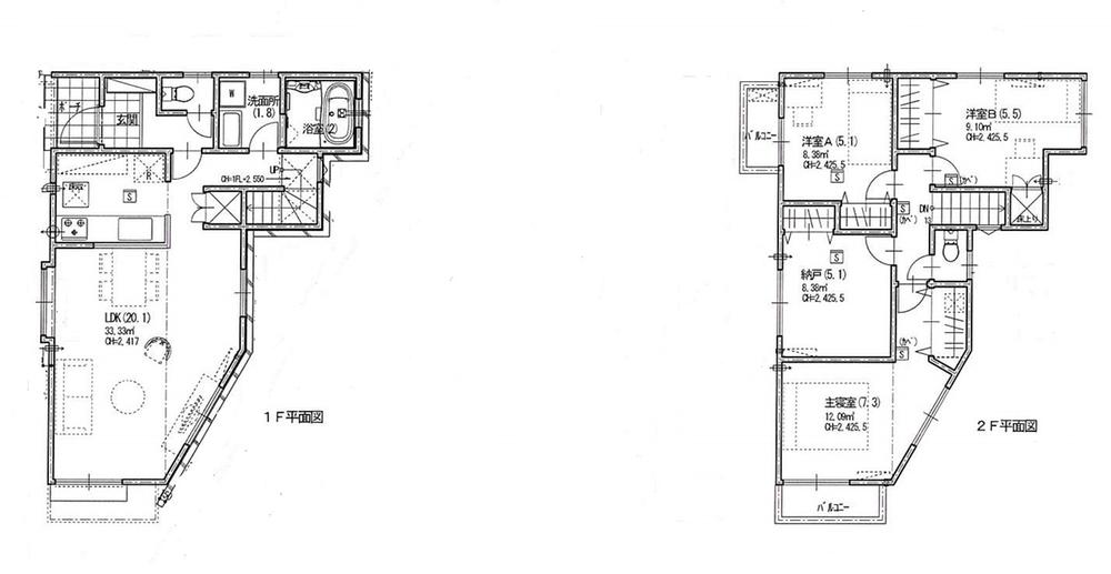
Other. Floor plan (5 Building)
Floor plan (5 Building)

Living

Living. Indoor (12 May 2013) Shooting
Indoor (12 May 2013) Shooting

Bathroom

Bathroom. Indoor (12 May 2013) Shooting
Indoor (12 May 2013) Shooting

Kitchen

Kitchen. Indoor (12 May 2013) Shooting
Indoor (12 May 2013) Shooting

Receipt

Receipt. Indoor (12 May 2013) Shooting
Indoor (12 May 2013) Shooting

Station

station. Hongodai Station
Hongodai Station

Other introspection

Other introspection. Indoor (12 May 2013) Shooting
Indoor (12 May 2013) Shooting

Other

Other. Floor Plan (6 Building)
Floor Plan (6 Building)

Living

Living. Indoor (12 May 2013) Shooting
Indoor (12 May 2013) Shooting

Other Environmental Photo

Other Environmental Photo. 80m to the district center
80m to the district center

Other

Other. Floor Plan (8 Building)
Floor Plan (8 Building)

Other Environmental Photo

Other Environmental Photo. 80m to the district center
80m to the district center

Other

Other. Floor Plan (9 Building)
Floor Plan (9 Building)

Park

park. 160m to the park
160m to the park

Other

Other. Shoe box
Shoe box

Shopping centre

Shopping centre. 280m to Summit
280m to Summit

Park

park. 280m to the park
280m to the park

Supermarket

Supermarket. 220m to Wiz
220m to Wiz

Park

park. 180m to the park
180m to the park



Location