New Homes » Kanto » Kanagawa Prefecture » Yokohama Sakae-ku
 
| | Yokohama-shi, Kanagawa-ku Sakae 神奈川県横浜市栄区 |
| JR Tokaido Line "Totsuka" walk 29 minutes JR東海道本線「戸塚」歩29分 |
Features pickup 特徴ピックアップ | | System kitchen / Bathroom Dryer / All room storage / Flat to the station / LDK15 tatami mats or more / Corner lot / TV monitor interphone / Dish washing dryer / Three-story or more システムキッチン /浴室乾燥機 /全居室収納 /駅まで平坦 /LDK15畳以上 /角地 /TVモニタ付インターホン /食器洗乾燥機 /3階建以上 | Price 価格 | | 31,850,000 yen 3185万円 | Floor plan 間取り | | 3LDK 3LDK | Units sold 販売戸数 | | 1 units 1戸 | Land area 土地面積 | | 52.04 sq m (registration) 52.04m2(登記) | Building area 建物面積 | | 89.22 sq m (registration), Among the first floor garage 10.93 sq m 89.22m2(登記)、うち1階車庫10.93m2 | Driveway burden-road 私道負担・道路 | | Nothing, Northeast 5.2m width (contact the road width 4.1m), Northwest 4.5m width (contact the road width 9.2m) 無、北東5.2m幅(接道幅4.1m)、北西4.5m幅(接道幅9.2m) | Completion date 完成時期(築年月) | | October 2013 2013年10月 | Address 住所 | | Yokohama-shi, Kanagawa-ku Sakae Naganuma 神奈川県横浜市栄区長沼町 | Traffic 交通 | | JR Tokaido Line "Totsuka" walk 29 minutes JR Tokaido Line "Totsuka" 10 minutes Toyoda elementary school before walk 2 minutes by bus JR東海道本線「戸塚」歩29分 JR東海道本線「戸塚」バス10分豊田小学校前歩2分
| Related links 関連リンク | | [Related Sites of this company] 【この会社の関連サイト】 | Contact お問い合せ先 | | TEL: 0800-603-3030 [Toll free] mobile phone ・ Also available from PHS Caller ID is not notified Please contact the "saw SUUMO (Sumo)" If it does not lead, If the real estate company TEL:0800-603-3030【通話料無料】携帯電話・PHSからもご利用いただけます 発信者番号は通知されません 「SUUMO(スーモ)を見た」と問い合わせください つながらない方、不動産会社の方は
| Building coverage, floor area ratio 建ぺい率・容積率 | | 60% ・ 200% 60%・200% | Time residents 入居時期 | | Consultation 相談 | Land of the right form 土地の権利形態 | | Ownership 所有権 | Structure and method of construction 構造・工法 | | Wooden three-story 木造3階建 | Use district 用途地域 | | One dwelling 1種住居 | Overview and notices その他概要・特記事項 | | Facilities: Public Water Supply, This sewage, City gas, Building confirmation number: No. 13KAK Ken確 02177, Parking: Garage 設備:公営水道、本下水、都市ガス、建築確認番号:第13KAK建確02177号、駐車場:車庫 | Company profile 会社概要 | | <Mediation> Governor of Kanagawa Prefecture (3) No. 023784 (Ltd.) Beetle home Totsuka Station shop Yubinbango244-0003 Kanagawa Prefecture, Totsuka-ku, Yokohama-shi Totsuka-cho 16-1 Totsukana fourth floor <仲介>神奈川県知事(3)第023784号(株)ビートルホーム戸塚駅前店〒244-0003 神奈川県横浜市戸塚区戸塚町16-1トツカーナ4階 |
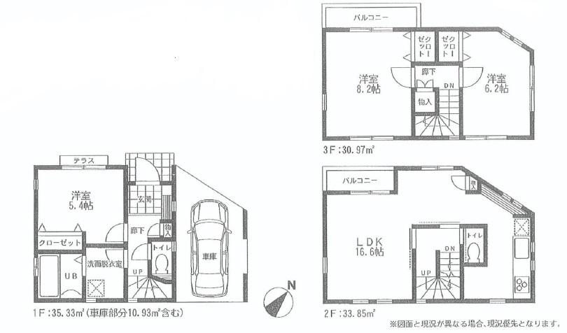
Floor plan間取り図  31,850,000 yen, 3LDK, Land area 52.04 sq m , Building area 89.22 sq m
3185万円、3LDK、土地面積52.04m2、建物面積89.22m2
Compartment figure区画図  31,850,000 yen, 3LDK, Land area 52.04 sq m , Building area 89.22 sq m
3185万円、3LDK、土地面積52.04m2、建物面積89.22m2
Location
|