New Homes » Kanto » Kanagawa Prefecture » Yokohama Seya-ku
 
| | Yokohama-shi, Kanagawa-ku, Seya 神奈川県横浜市瀬谷区 |
| Denentoshi Tokyu "Minami Machida" walk 20 minutes 東急田園都市線「南町田」歩20分 |
Features pickup 特徴ピックアップ | | LDK18 tatami mats or more / Shaping land / Face-to-face kitchen / Three-story or more / Maintained sidewalk LDK18畳以上 /整形地 /対面式キッチン /3階建以上 /整備された歩道 | Price 価格 | | 28,900,000 yen 2890万円 | Floor plan 間取り | | 4LDK 4LDK | Units sold 販売戸数 | | 1 units 1戸 | Total units 総戸数 | | 1 units 1戸 | Land area 土地面積 | | 97.49 sq m (29.49 tsubo) (Registration) 97.49m2(29.49坪)(登記) | Building area 建物面積 | | 98.92 sq m (29.92 tsubo) (measured) 98.92m2(29.92坪)(実測) | Driveway burden-road 私道負担・道路 | | Nothing, Southeast 4.5m width 無、南東4.5m幅 | Completion date 完成時期(築年月) | | November 2013 2013年11月 | Address 住所 | | Yokohama-shi, Kanagawa-ku, Seya Gokanme cho 神奈川県横浜市瀬谷区五貫目町 | Traffic 交通 | | Denentoshi Tokyu "Minami Machida" walk 20 minutes 東急田園都市線「南町田」歩20分
| Related links 関連リンク | | [Related Sites of this company] 【この会社の関連サイト】 | Person in charge 担当者より | | Person in charge of real-estate and building Naoki Fujiwara Age: 40 Daigyokai Experience: 4 years 担当者宅建藤原直樹年齢:40代業界経験:4年 | Contact お問い合せ先 | | TEL: 0800-603-8879 [Toll free] mobile phone ・ Also available from PHS Caller ID is not notified Please contact the "saw SUUMO (Sumo)" If it does not lead, If the real estate company TEL:0800-603-8879【通話料無料】携帯電話・PHSからもご利用いただけます 発信者番号は通知されません 「SUUMO(スーモ)を見た」と問い合わせください つながらない方、不動産会社の方は
|
Local appearance photo現地外観写真  Building completed!
建物完成!
Local photos, including front road前面道路含む現地写真  local
現地
Livingリビング  LDK18 Pledge Now for the Cross, It will be pasted.
LDK18帖 これからクロスが、貼られます。
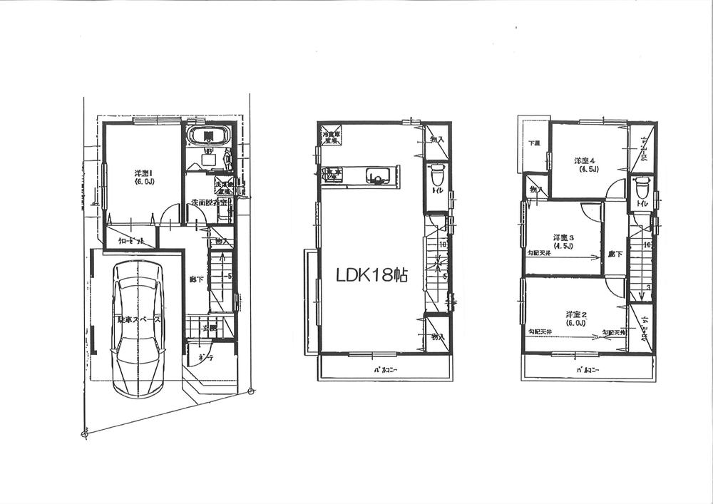
Floor plan間取り図  28,900,000 yen, 4LDK, Land area 97.49 sq m , Building area 98.92 sq m 4LDK, LDK18 Pledge
2890万円、4LDK、土地面積97.49m2、建物面積98.92m2 4LDK、LDK18帖
 Local photos, including front road
前面道路含む現地写真
 Non-living room
リビング以外の居室
Livingリビング  The window also has a lot with.
窓も沢山ついています。
 Parking lot
駐車場
Station駅  1600m until Minamimachida
南町田駅まで1600m
Otherその他  Minami Machida Station Square
南町田駅前広場
 Local appearance photo
現地外観写真
Supermarketスーパー  1610m to Tokyu Store Chain
東急ストアまで1610m
Otherその他  Granbury Mall
グランベリーモール
Shopping centreショッピングセンター  1620m to Granbury Mall
グランベリーモールまで1620m
Otherその他  In Minamimachida Tokyu
南町田駅内東急
Location
|