New Homes » Kanto » Kanagawa Prefecture » Yokohama Seya-ku
 
| | Yokohama-shi, Kanagawa-ku, Seya 神奈川県横浜市瀬谷区 |
| Sagami Railway Main Line "Mitsuzakai" walk 7 minutes 相鉄本線「三ツ境」歩7分 |
| Corner lot, Dish washing dryer, Bathroom Dryer, All living room flooring, A quiet residential area, LDK18 tatami mats or more. ◆ Contact, TEL: 0800-602-5521 Our website "Sue Min" Please also visit 角地、食器洗乾燥機、浴室乾燥機、全居室フローリング、閑静な住宅地、LDK18畳以上。◆お問い合わせ先、TEL:0800-602-5521 当社ホームページ「すーみん」もご覧ください |
Features pickup 特徴ピックアップ | | LDK18 tatami mats or more / Fiscal year Available / System kitchen / Bathroom Dryer / Yang per good / Flat to the station / A quiet residential area / Corner lot / Wide balcony / Bathroom 1 tsubo or more / The window in the bathroom / All living room flooring / Good view / Built garage / Dish washing dryer / Water filter / Three-story or more / City gas / All rooms are two-sided lighting / Flat terrain LDK18畳以上 /年度内入居可 /システムキッチン /浴室乾燥機 /陽当り良好 /駅まで平坦 /閑静な住宅地 /角地 /ワイドバルコニー /浴室1坪以上 /浴室に窓 /全居室フローリング /眺望良好 /ビルトガレージ /食器洗乾燥機 /浄水器 /3階建以上 /都市ガス /全室2面採光 /平坦地 | Price 価格 | | 33,800,000 yen ~ 36,300,000 yen 3380万円 ~ 3630万円 | Floor plan 間取り | | 4LDK 4LDK | Units sold 販売戸数 | | 10 units 10戸 | Total units 総戸数 | | 10 units 10戸 | Land area 土地面積 | | 58.26 sq m ~ 58.3 sq m (measured) 58.26m2 ~ 58.3m2(実測) | Building area 建物面積 | | 99.63 sq m ~ 102.06 sq m (measured) 99.63m2 ~ 102.06m2(実測) | Completion date 完成時期(築年月) | | February 2014 late schedule 2014年2月下旬予定 | Address 住所 | | Yokohama-shi, Kanagawa-ku, Seya Futatsubashi cho 神奈川県横浜市瀬谷区二ツ橋町 | Traffic 交通 | | Sagami Railway Main Line "Mitsuzakai" walk 7 minutes 相鉄本線「三ツ境」歩7分
| Related links 関連リンク | | [Related Sites of this company] 【この会社の関連サイト】 | Person in charge 担当者より | | Person in charge of home supposedly Island Masayuki Age: 30s has been kept sales of customer-oriented, which takes advantage of mobility. Please feel free to contact us. 担当者宅建前島 雅之年齢:30代機動力をいかしたお客様本位の営業を心掛けてます。お気軽にご相談下さい。 | Contact お問い合せ先 | | TEL: 0800-602-5521 [Toll free] mobile phone ・ Also available from PHS Caller ID is not notified Please contact the "saw SUUMO (Sumo)" If it does not lead, If the real estate company TEL:0800-602-5521【通話料無料】携帯電話・PHSからもご利用いただけます 発信者番号は通知されません 「SUUMO(スーモ)を見た」と問い合わせください つながらない方、不動産会社の方は
| Most price range 最多価格帯 | | 33 million yen (8 units) 3300万円台(8戸) | Time residents 入居時期 | | Consultation 相談 | Land of the right form 土地の権利形態 | | Ownership 所有権 | Use district 用途地域 | | One dwelling 1種住居 | Overview and notices その他概要・特記事項 | | Contact: Maejima Masayuki, Building confirmation number: No. 13UDI1K Ken 00437 担当者:前島 雅之、建築確認番号:第13UDI1K建00437号 | Company profile 会社概要 | | <Mediation> Governor of Kanagawa Prefecture (1) the first 027,250 No. Century 21 Mei Fast Co., Ltd. Yubinbango246-0022 Yokohama-shi, Kanagawa-ku, Seya Mitsuzakai 2-8 Yagi building second floor <仲介>神奈川県知事(1)第027250号センチュリー21メイファースト(株)〒246-0022 神奈川県横浜市瀬谷区三ツ境2-8 八木ビル2階 |
 Local appearance photo
現地外観写真
 Rendering (appearance)
完成予想図(外観)
 Rendering (appearance)
完成予想図(外観)
 Bathroom
浴室
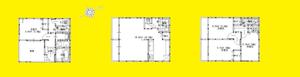
Floor plan間取り図  (k), Price 36,300,000 yen, 4LDK, Land area 58.26 sq m , Building area 102.06 sq m
(k)、価格3630万円、4LDK、土地面積58.26m2、建物面積102.06m2
 Local appearance photo
現地外観写真
 Kitchen
キッチン
 Wash basin, toilet
洗面台・洗面所
 Local photos, including front road
前面道路含む現地写真
Primary school小学校  Futatsubashi until elementary school 200m
二ツ橋小学校まで200m
Junior high school中学校  300m to Higashino junior high school
東野中学校まで300m
Location
|