New Homes » Kanto » Kanagawa Prefecture » Totsuka-ku, Yokohama-shi
 
| | Kanagawa Prefecture, Totsuka-ku, Yokohama-shi 神奈川県横浜市戸塚区 |
| JR Yokosuka Line "Totsuka" bus 6 minutes Nishiyokohama international hospital before walking 6 minutes JR横須賀線「戸塚」バス6分西横浜国際病院前歩6分 |
| Corresponding to the flat-35S, South balcony, Zenshitsuminami direction, Facing south, LDK15 tatami mats or more, Measures to conserve energy, Year Available, Parking two Allowed, System kitchen, Bathroom Dryer, Yang per good, All room revenue フラット35Sに対応、南面バルコニー、全室南向き、南向き、LDK15畳以上、省エネルギー対策、年内入居可、駐車2台可、システムキッチン、浴室乾燥機、陽当り良好、全居室収 |
| ■ Good per sun in the south road ■ Car space parallel Thank 2 car ■ Equipment of enhancement decorate the living, specification ■ Flat 35S corresponding housing ■南道路で陽当たり良好■カースペース並列2台分御座います■暮らしを彩る充実の設備、仕様■フラット35S対応住宅 |
Features pickup 特徴ピックアップ | | Measures to conserve energy / Corresponding to the flat-35S / Year Available / Parking two Allowed / Facing south / System kitchen / Bathroom Dryer / Yang per good / All room storage / Siemens south road / A quiet residential area / LDK15 tatami mats or more / Around traffic fewer / Or more before road 6m / Washbasin with shower / Face-to-face kitchen / Security enhancement / Wide balcony / Toilet 2 places / 2-story / 2 or more sides balcony / South balcony / Zenshitsuminami direction / Warm water washing toilet seat / loft / Underfloor Storage / The window in the bathroom / TV monitor interphone / Leafy residential area / Mu front building / Ventilation good / All living room flooring / Good view / Dish washing dryer / All room 6 tatami mats or more / Water filter / City gas / All rooms are two-sided lighting / Attic storage 省エネルギー対策 /フラット35Sに対応 /年内入居可 /駐車2台可 /南向き /システムキッチン /浴室乾燥機 /陽当り良好 /全居室収納 /南側道路面す /閑静な住宅地 /LDK15畳以上 /周辺交通量少なめ /前道6m以上 /シャワー付洗面台 /対面式キッチン /セキュリティ充実 /ワイドバルコニー /トイレ2ヶ所 /2階建 /2面以上バルコニー /南面バルコニー /全室南向き /温水洗浄便座 /ロフト /床下収納 /浴室に窓 /TVモニタ付インターホン /緑豊かな住宅地 /前面棟無 /通風良好 /全居室フローリング /眺望良好 /食器洗乾燥機 /全居室6畳以上 /浄水器 /都市ガス /全室2面採光 /屋根裏収納 | Price 価格 | | 46,800,000 yen 4680万円 | Floor plan 間取り | | 4LDK 4LDK | Units sold 販売戸数 | | 1 units 1戸 | Total units 総戸数 | | 1 units 1戸 | Land area 土地面積 | | 163.53 sq m (49.46 tsubo) (Registration) 163.53m2(49.46坪)(登記) | Building area 建物面積 | | 100.44 sq m (30.38 tsubo) (measured) 100.44m2(30.38坪)(実測) | Driveway burden-road 私道負担・道路 | | Nothing, South 6.5m width 無、南6.5m幅 | Completion date 完成時期(築年月) | | December 2013 2013年12月 | Address 住所 | | Kanagawa Prefecture, Totsuka-ku, Yokohama-shi Totsuka-cho 神奈川県横浜市戸塚区戸塚町 | Traffic 交通 | | JR Yokosuka Line "Totsuka" bus 6 minutes Nishiyokohama international hospital before walking 6 minutes JR横須賀線「戸塚」バス6分西横浜国際病院前歩6分
| Related links 関連リンク | | [Related Sites of this company] 【この会社の関連サイト】 | Person in charge 担当者より | | Personnel Makoto Inai Age: 20s Yokohama style will follow you in the settlement business representatives and two system. All Yokohama style website http / / Please refer to the www.yokohama-style.jp. 担当者稲井 誠年齢:20代横浜スタイルは決済業務担当と2名体制でお客様をフォロー致します。全ては横浜スタイルホームページhttp://www.yokohama-style.jpをご覧下さい。 | Contact お問い合せ先 | | TEL: 0800-603-8210 [Toll free] mobile phone ・ Also available from PHS Caller ID is not notified Please contact the "saw SUUMO (Sumo)" If it does not lead, If the real estate company TEL:0800-603-8210【通話料無料】携帯電話・PHSからもご利用いただけます 発信者番号は通知されません 「SUUMO(スーモ)を見た」と問い合わせください つながらない方、不動産会社の方は
| Building coverage, floor area ratio 建ぺい率・容積率 | | 40% ・ 80% 40%・80% | Time residents 入居時期 | | Consultation 相談 | Land of the right form 土地の権利形態 | | Ownership 所有権 | Structure and method of construction 構造・工法 | | Wooden 2-story 木造2階建 | Use district 用途地域 | | One low-rise 1種低層 | Other limitations その他制限事項 | | Building Agreement Yes 建築協定有 | Overview and notices その他概要・特記事項 | | Contact: Makoto Inai, Facilities: Public Water Supply, This sewage, City gas, Building confirmation number: first H25SBC- Make 01235Y, Parking: car space 担当者:稲井 誠、設備:公営水道、本下水、都市ガス、建築確認番号:第H25SBC-確01235Y、駐車場:カースペース | Company profile 会社概要 | | <Mediation> Kanagawa Governor (2) the first 026,300 No. Yokohama style (Ltd.) NIKKEIyubinbango231-0047 Yokohama-shi, Kanagawa, Naka-ku, robe-cho 2-4-4 Yokohama RK building 8th floor <仲介>神奈川県知事(2)第026300号横浜スタイル(株)NIKKEI〒231-0047 神奈川県横浜市中区羽衣町2-4-4 横浜RKビル8階 |
Local appearance photo現地外観写真  Local (10 May 2013) Shooting
現地(2013年10月)撮影
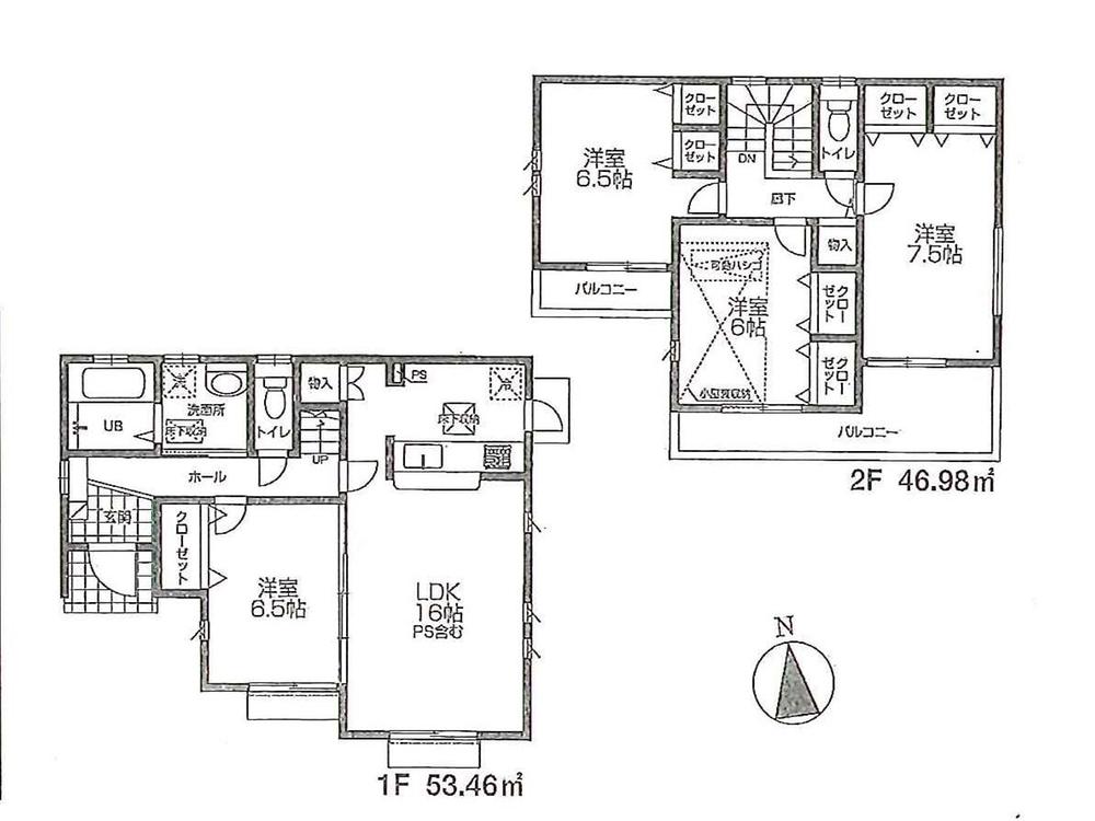
Floor plan間取り図  46,800,000 yen, 4LDK, Land area 163.53 sq m , Building area 100.44 sq m
4680万円、4LDK、土地面積163.53m2、建物面積100.44m2
Local photos, including front road前面道路含む現地写真  Local (10 May 2013) Shooting
現地(2013年10月)撮影
Local appearance photo現地外観写真  Local (10 May 2013) Shooting
現地(2013年10月)撮影
Junior high school中学校  Yokohama Minami Totsuka until junior high school 458m
横浜市立南戸塚中学校まで458m
Local appearance photo現地外観写真  Local (10 May 2013) Shooting
現地(2013年10月)撮影
Primary school小学校  1020m to Yokohama Municipal Shimogo Elementary School
横浜市立下郷小学校まで1020m
Location
|