New Homes » Kanto » Kanagawa Prefecture » Totsuka-ku, Yokohama-shi
 
| | Kanagawa Prefecture, Totsuka-ku, Yokohama-shi 神奈川県横浜市戸塚区 |
| Blue Line "landing" walk 11 minutes ブルーライン「踊場」歩11分 |
| ■ All 12 buildings large field of ■ ■ All building LDK18 Pledge or larger floor plan ■ ■ Land 20 years, Peace of mind with a guarantee of the building 10 years ■ ■ Your visit on weekdays, Holiday will be announced at the usual ■ ■全12棟の大型現場■■全棟LDK18帖以上の大型間取り■■土地20年、建物10年の安心保証付■■ご見学は平日、休日いつもでご案内させていただきます■ |
| Pre-ground survey, 2 along the line more accessible, LDK20 tatami mats or more, Super close, It is close to the city, Facing south, System kitchen, Bathroom Dryer, Yang per good, All room storage, Siemens south road, A quiet residential area, Around traffic fewer, Corner lot, Shaping land, Washbasin with shower, Face-to-face kitchen, Toilet 2 places, Bathroom 1 tsubo or more, 2-story, South balcony, TV with bathroom, Underfloor Storage, The window in the bathroom, All living room flooring, Dish washing dryer, Water filter, Three-story or more, Living stairs, City gas, Maintained sidewalk, Flat terrain 地盤調査済、2沿線以上利用可、LDK20畳以上、スーパーが近い、市街地が近い、南向き、システムキッチン、浴室乾燥機、陽当り良好、全居室収納、南側道路面す、閑静な住宅地、周辺交通量少なめ、角地、整形地、シャワー付洗面台、対面式キッチン、トイレ2ヶ所、浴室1坪以上、2階建、南面バルコニー、TV付浴室、床下収納、浴室に窓、全居室フローリング、食器洗乾燥機、浄水器、3階建以上、リビング階段、都市ガス、整備された歩道、平坦地 |
Features pickup 特徴ピックアップ | | Pre-ground survey / 2 along the line more accessible / LDK20 tatami mats or more / Super close / It is close to the city / Facing south / System kitchen / Bathroom Dryer / Yang per good / All room storage / Siemens south road / A quiet residential area / Around traffic fewer / Corner lot / Shaping land / Washbasin with shower / Face-to-face kitchen / Toilet 2 places / Bathroom 1 tsubo or more / 2-story / South balcony / TV with bathroom / Underfloor Storage / The window in the bathroom / All living room flooring / Dish washing dryer / Water filter / Three-story or more / Living stairs / City gas / Maintained sidewalk / Flat terrain 地盤調査済 /2沿線以上利用可 /LDK20畳以上 /スーパーが近い /市街地が近い /南向き /システムキッチン /浴室乾燥機 /陽当り良好 /全居室収納 /南側道路面す /閑静な住宅地 /周辺交通量少なめ /角地 /整形地 /シャワー付洗面台 /対面式キッチン /トイレ2ヶ所 /浴室1坪以上 /2階建 /南面バルコニー /TV付浴室 /床下収納 /浴室に窓 /全居室フローリング /食器洗乾燥機 /浄水器 /3階建以上 /リビング階段 /都市ガス /整備された歩道 /平坦地 | Event information イベント情報 | | Local guide Board (Please contact us beforehand) local of your visits will have heard from time to time. Since the free consultation we receive at the same time of the mortgage, Please feel free to contact us. 現地案内会(事前に必ずお問い合わせください)現地のご見学は随時承っております。住宅ローンの無料相談同時に承っておりますので、お気軽にお問い合わせください。 | Price 価格 | | 32,800,000 yen ~ 39,800,000 yen 3280万円 ~ 3980万円 | Floor plan 間取り | | 4LDK ~ 4LDK 4LDK ~ 4LDK | Units sold 販売戸数 | | 12 units 12戸 | Total units 総戸数 | | 12 units 12戸 | Land area 土地面積 | | 58.84 sq m ~ 105.09 sq m (measured) 58.84m2 ~ 105.09m2(実測) | Building area 建物面積 | | 105.06 sq m ~ 110.85 sq m (measured) 105.06m2 ~ 110.85m2(実測) | Driveway burden-road 私道負担・道路 | | Seddo on the east side road 5.7m 東側公道5.7mに接道 | Completion date 完成時期(築年月) | | 2013 end of September 2013年9月末 | Address 住所 | | Kanagawa Prefecture, Totsuka-ku, Yokohama-shi Gumizawa 5 神奈川県横浜市戸塚区汲沢5 | Traffic 交通 | | Blue Line "landing" walk 11 minutes Blue Line "Nakata" walk 17 minutes JR Yokosuka Line "Totsuka" walk 29 minutes ブルーライン「踊場」歩11分 ブルーライン「中田」歩17分 JR横須賀線「戸塚」歩29分
| Related links 関連リンク | | [Related Sites of this company] 【この会社の関連サイト】 | Person in charge 担当者より | | Person in charge of real-estate and building Tokuyama Hitoshi tree Age: The father of the 30's two children. It is always the customer's point of view, We will carry out suggestions of looking important My Home. Your house hunting can become a comfortable stay with peace of mind, Patiently, We will be happy to help in all sincerity. Please feel free to contact us. 担当者宅建徳山 仁樹年齢:30代二児の父親です。常にお客様の目線で、大切なマイホーム探しのご提案をさせていただきます。安心して快適にお過ごしになれるお家探しを、根気よく、誠心誠意お手伝いさせていただきます。お気軽にご相談下さい。 | Contact お問い合せ先 | | TEL: 0800-603-1899 [Toll free] mobile phone ・ Also available from PHS Caller ID is not notified Please contact the "saw SUUMO (Sumo)" If it does not lead, If the real estate company TEL:0800-603-1899【通話料無料】携帯電話・PHSからもご利用いただけます 発信者番号は通知されません 「SUUMO(スーモ)を見た」と問い合わせください つながらない方、不動産会社の方は
| Building coverage, floor area ratio 建ぺい率・容積率 | | Building coverage 60%, Volume rate of 200% 建ぺい率60%、容積率200% | Time residents 入居時期 | | Immediate available 即入居可 | Land of the right form 土地の権利形態 | | Ownership 所有権 | Use district 用途地域 | | One dwelling 1種住居 | Land category 地目 | | Residential land 宅地 | Overview and notices その他概要・特記事項 | | Contact: Tokuyama Jin Ju, Building confirmation number: 05317 担当者:徳山 仁樹、建築確認番号:05317 | Company profile 会社概要 | | <Mediation> Minister of Land, Infrastructure and Transport (2) No. 007,179 (one company) Real Estate Association (Corporation) metropolitan area real estate Fair Trade Council member (Ltd.) Benhausu business Lesson 2 Yubinbango220-0003 Kanagawa Prefecture, Nishi-ku, Yokohama-shi Kusu, Mie 10-1 <仲介>国土交通大臣(2)第007179号(一社)不動産協会会員 (公社)首都圏不動産公正取引協議会加盟(株)ベンハウス営業第2課〒220-0003 神奈川県横浜市西区楠町10-1 |
Rendering (appearance)完成予想図(外観)  Rendering
完成予想図
 Cityscape Rendering
街並完成予想図
Otherその他  Life in formation
ライフインフォーメーション
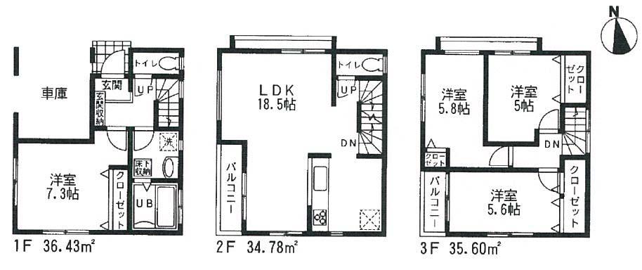
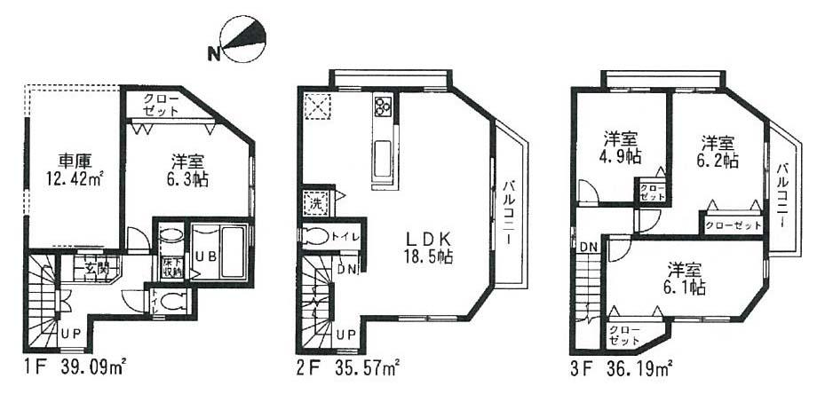
Floor plan間取り図  (1 Building), Price 32,800,000 yen, 4LDK, Land area 63.53 sq m , Building area 106.81 sq m
(1号棟)、価格3280万円、4LDK、土地面積63.53m2、建物面積106.81m2
 (3 Building), Price 39,800,000 yen, 4LDK, Land area 105.09 sq m , Building area 105.06 sq m
(3号棟)、価格3980万円、4LDK、土地面積105.09m2、建物面積105.06m2
 (6 Building), Price 33,800,000 yen, 4LDK, Land area 58.84 sq m , Building area 110.85 sq m
(6号棟)、価格3380万円、4LDK、土地面積58.84m2、建物面積110.85m2
Location
|