New Homes » Kanto » Kanagawa Prefecture » Totsuka-ku, Yokohama-shi
 
| | Kanagawa Prefecture, Totsuka-ku, Yokohama-shi 神奈川県横浜市戸塚区 |
| Blue Line "Maioka" walk 16 minutes ブルーライン「舞岡」歩16分 |
| It Kamikurata the town is three buildings site that finally situated in Totsuka Ward of the battleground as published "Hakone Ekiden relay station". For the current under construction, Enhancement facilities to meet the living in the same building construction, You can see up to convincing ついに公開された『箱根駅伝中継所』として激戦区の戸塚区に建ちます上倉田町3棟現場です。現在建築中の為、同施工建物で生活を満たす充実設備等、納得いくまでご覧いただけます |
| ■ JR Yokosuka Line ・ JR Shonan-Shinjuku Line ・ JR Tokaido Line of 3 routes available. ■ Close to, seven Eleven ・ clinic ・ Yes, such as the post office, It is also a breeze just 15 minutes and the shopping until "Apita Totsuka" which is also doing online supermarket. ■ Since it is a southeast road, We can offer a warm My home sunny ■JR横須賀線・JR湘南新宿ライン・JR東海道本線の3路線利用可能。■近隣には、セブンイレブン・クリニック・郵便局などあり、 ネットスーパーもやっている『アピタ戸塚』までわずか15分とお買いものも楽々です。■南東道路ですので、陽の当たる暖かいマイホームをご提供できます |
Features pickup 特徴ピックアップ | | 2 along the line more accessible / Facing south / System kitchen / Yang per good / All room storage / A quiet residential area / LDK15 tatami mats or more / Shaping land / Washbasin with shower / Face-to-face kitchen / Toilet 2 places / Bathroom 1 tsubo or more / South balcony / Double-glazing / Warm water washing toilet seat / The window in the bathroom / TV monitor interphone / Ventilation good / Built garage / Walk-in closet / Flat terrain 2沿線以上利用可 /南向き /システムキッチン /陽当り良好 /全居室収納 /閑静な住宅地 /LDK15畳以上 /整形地 /シャワー付洗面台 /対面式キッチン /トイレ2ヶ所 /浴室1坪以上 /南面バルコニー /複層ガラス /温水洗浄便座 /浴室に窓 /TVモニタ付インターホン /通風良好 /ビルトガレージ /ウォークインクロゼット /平坦地 | Event information イベント情報 | | [ Transportation to Tokyo and tourist attractions convenient Totsuka area comfortable good live redevelopment progresses ] ・ There in the old Tokaido post town, Tokyo and Yokohama ・ Convenient to Shonan and access to the Kamakura of JR Totsuka Station. In Totsuka Station East is, Round food 遊館 ・ Bookstore ・ Department stores such as Uniqlo enters "modi" ・ It is convenient for shopping there is a "lapis" super ^^ On the other hand, But there is also a shopping center and supermarket also on the west side, Redevelopment especially of the west exit heck expected that the increase is. ・ Not only commercial facility, For cram school often, A lot of children are many healthy elderly live region. Culture and sports in close contact with the community ・ Welfare facilities also substantial ^^ ・ "Gender Equality Center Yokohama (nickname: Forum) is, Facility, which was built for the purpose of "men and women are both live vividly society". Fitness program Ya, Women's heart and health seminars for the body, Cooking for men ・ It has been held, such as housework participation workshop, Also I'm happy for anyone available ・ And ・ ・ ・ . Annual event of the New Year is not to be missed than anything that takes place on January 2 and 3 days every year "Hakone Ekiden". District 3 from District 2 forward, Relay station of the 9th district from the 8th district of the return path, Forward "Totsuka relay station" of the national highway along Route 1, which is also carried out start advancing in the battleground that ace of each school as "2 wards of flowers" is turned on, Various drama unfolds every year. Every year, We will look at the second district of the flower to be relayed as I say always show the upsurge in relay around the corner !! 【 都内や観光地へ交通至便 再開発が進む住み心地のいい戸塚エリア 】・旧東海道の宿場町であり、東京や横浜・湘南や鎌倉へのアクセスにも便利なJR戸塚駅。戸塚駅東口には、まるい食遊館・書店・ユニクロなどが入る百貨店『modi』・『ラピス』スーパーがあり買い物にとっても便利です^^一方、西側にも商店街やスーパーもありますが、期待が高まるのは特に西口一体の再開発。・商業施設だけでなく、学習塾が多いため、子供が多く元気な高齢者もたくさん住まう地域。地域に密着した文化やスポーツ・福祉施設も充実しています^^・「男女共同参画センター横浜(愛称:フォーラム)は、「男女がともにいきいきと暮らせる社会」を目的に造られた施設。フィットネスプログラムや、女性のこころとからだのための健康セミナー、男性向けの料理・家事参加ワークショップなどを開催しており、誰でも利用できるのも嬉しいですよね・そして・・・。なんといっても見逃せないのが毎年1月2日と3日に行われるお正月の恒例行事「箱根駅伝」。往路2区から3区、復路の8区から9区の中継所が、国道1号線沿いの「戸塚中継所」往路は「花の2区」として各校のエースが投入される激戦区で繰り上げスタートも行われ、毎年様々なドラマが繰り広げられる。毎年、中継でも盛り上がりを見せ必ずと言っていいほど中継される花の2区を間近に見れますよ!! | Price 価格 | | 37,850,000 yen ~ 38,850,000 yen 3785万円 ~ 3885万円 | Floor plan 間取り | | 3LDK + S (storeroom) ~ 4LDK 3LDK+S(納戸) ~ 4LDK | Units sold 販売戸数 | | 3 units 3戸 | Total units 総戸数 | | 3 units 3戸 | Land area 土地面積 | | 60.65 sq m ~ 80.13 sq m (registration) 60.65m2 ~ 80.13m2(登記) | Building area 建物面積 | | 101.01 sq m ~ 105.56 sq m (registration) 101.01m2 ~ 105.56m2(登記) | Driveway burden-road 私道負担・道路 | | Southeast road contact road 南東道路接道 | Completion date 完成時期(築年月) | | 2013 late December 2013年12月下旬 | Address 住所 | | Kanagawa Prefecture, Totsuka-ku, Yokohama-shi Kamikurata-cho, 2033 神奈川県横浜市戸塚区上倉田町2033 | Traffic 交通 | | Blue Line "Maioka" walk 16 minutes JR Yokosuka Line "Totsuka" walk 20 minutes Blue Line "Shimonagaya" walk 28 minutes ブルーライン「舞岡」歩16分 JR横須賀線「戸塚」歩20分 ブルーライン「下永谷」歩28分
| Related links 関連リンク | | [Related Sites of this company] 【この会社の関連サイト】 | Person in charge 担当者より | | The person in charge Iwamoto Hiroyuki industry experience: 9 years beginning has been. It is Iwamoto of land Factory Co., Ltd.. Or everybody your house hunting is Irasshai promoting fun? , trust, Amount of information has both let me and your house hunting! ! 担当者岩本 裕之業界経験:9年初めまして。ランドファクトリー(株)の岩本です。皆様お家探しは楽しく進めていらっしゃいますか?経験、信頼感、情報量を兼ね備えた私とお家探しをしましょう!! | Contact お問い合せ先 | | TEL: 0800-808-9234 [Toll free] mobile phone ・ Also available from PHS Caller ID is not notified Please contact the "saw SUUMO (Sumo)" If it does not lead, If the real estate company TEL:0800-808-9234【通話料無料】携帯電話・PHSからもご利用いただけます 発信者番号は通知されません 「SUUMO(スーモ)を見た」と問い合わせください つながらない方、不動産会社の方は
| Building coverage, floor area ratio 建ぺい率・容積率 | | Building coverage: 60% Volume ratio: 200% 建ぺい率:60% 容積率:200% | Time residents 入居時期 | | Consultation 相談 | Land of the right form 土地の権利形態 | | Ownership 所有権 | Structure and method of construction 構造・工法 | | 2-story wooden 木造2階建て | Use district 用途地域 | | Quasi-residence 準住居 | Other limitations その他制限事項 | | Height district, Quasi-fire zones 高度地区、準防火地域 | Overview and notices その他概要・特記事項 | | Contact: Iwamoto Hiroyuki, Building confirmation number: No. 13KAK Ken確 04156 ・ 04700 No. ・ 05119 No. 担当者:岩本 裕之、建築確認番号:第13KAK建確04156号・04700号・05119号 | Company profile 会社概要 | | <Mediation> Governor of Kanagawa Prefecture (1) the first 028,126 No. land Factory Co., Ltd. Yubinbango231-0015 Yokohama-shi, Kanagawa, Naka-ku, Onoe-cho 6-83 <仲介>神奈川県知事(1)第028126号ランドファクトリー(株)〒231-0015 神奈川県横浜市中区尾上町6-83 |
Otherその他  LandFactory is, It boasts of the store with the image of the west coast of the cafe
LandFactoryは、西海岸のカフェをイメージした自慢の店内です
Local appearance photo現地外観写真  Local (11 May 2013) Shooting
現地(2013年11月)撮影
Local photos, including front road前面道路含む現地写真  Local (11 May 2013) Shooting
現地(2013年11月)撮影
 Local (11 May 2013) Shooting
現地(2013年11月)撮影
Floor plan間取り図  (A No. etc.), Price 38,850,000 yen, 3LDK+S, Land area 60.65 sq m , Building area 105.56 sq m
(A号等)、価格3885万円、3LDK+S、土地面積60.65m2、建物面積105.56m2
Park公園  Kamikurata 200m until the first park
上倉田第一公園まで200m
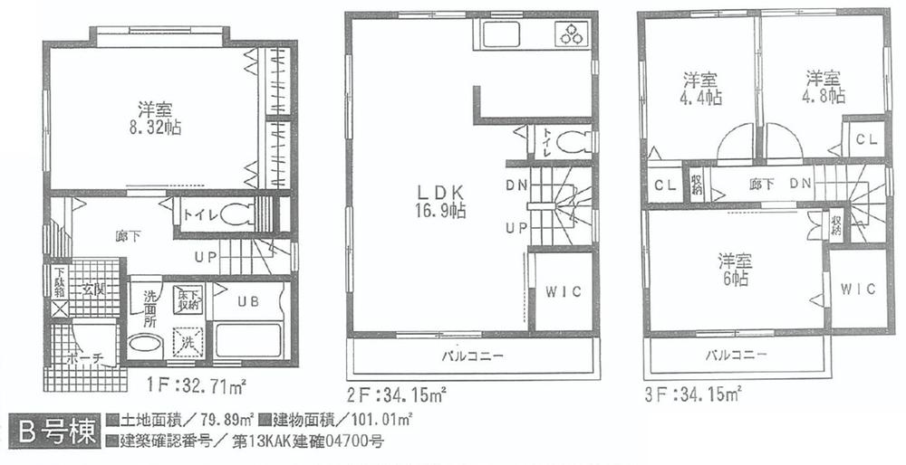
Floor plan間取り図  (B Building), Price 37,850,000 yen, 4LDK, Land area 79.89 sq m , Building area 101.01 sq m
(B号棟)、価格3785万円、4LDK、土地面積79.89m2、建物面積101.01m2
Primary school小学校  1019m to Yokohama Municipal Kurata Elementary School
横浜市立倉田小学校まで1019m
Floor plan間取り図  (C Building), Price 37,850,000 yen, 3LDK+S, Land area 80.13 sq m , Building area 103.3 sq m
(C号棟)、価格3785万円、3LDK+S、土地面積80.13m2、建物面積103.3m2
Hospital病院  Totsuka Kyoritsu until the first hospital 1940m
戸塚共立第1病院まで1940m
Station駅  JR 1600m to Totsuka Station
JR 戸塚駅まで1600m
 Blue Line 1200m to Maioka Station
ブルーライン 舞岡駅まで1200m
Location
|