New Homes » Kanto » Kanagawa Prefecture » Totsuka-ku, Yokohama-shi
 
| | Kanagawa Prefecture, Totsuka-ku, Yokohama-shi 神奈川県横浜市戸塚区 |
| JR Tokaido Line "Totsuka" 12 minutes Niken'ya walk 8 minutes by bus JR東海道本線「戸塚」バス12分二軒家歩8分 |
Features pickup 特徴ピックアップ | | Parking three or more possible / Facing south / System kitchen / Yang per good / LDK15 tatami mats or more / Japanese-style room / Face-to-face kitchen / Toilet 2 places / 2-story / Zenshitsuminami direction / Warm water washing toilet seat / TV monitor interphone / City gas / roof balcony 駐車3台以上可 /南向き /システムキッチン /陽当り良好 /LDK15畳以上 /和室 /対面式キッチン /トイレ2ヶ所 /2階建 /全室南向き /温水洗浄便座 /TVモニタ付インターホン /都市ガス /ルーフバルコニー | Price 価格 | | 36,800,000 yen 3680万円 | Floor plan 間取り | | 4LDK 4LDK | Units sold 販売戸数 | | 1 units 1戸 | Land area 土地面積 | | 200.86 sq m (registration) 200.86m2(登記) | Building area 建物面積 | | 99.36 sq m (registration) 99.36m2(登記) | Driveway burden-road 私道負担・道路 | | Share equity 29.33 sq m × (1 / 2), South 4.5m width (contact the road width 7.5m) 共有持分29.33m2×(1/2)、南4.5m幅(接道幅7.5m) | Completion date 完成時期(築年月) | | December 2013 2013年12月 | Address 住所 | | Kanagawa Prefecture, Totsuka-ku, Yokohama-shi Gumizawa cho 神奈川県横浜市戸塚区汲沢町 | Traffic 交通 | | JR Tokaido Line "Totsuka" 12 minutes Niken'ya walk 8 minutes by bus Blue Line "Totsuka" 12 minutes Niken'ya walk 8 minutes by bus JR Yokosuka Line "Totsuka" 12 minutes Niken'ya walk 8 minutes by bus JR東海道本線「戸塚」バス12分二軒家歩8分 ブルーライン「戸塚」バス12分二軒家歩8分 JR横須賀線「戸塚」バス12分二軒家歩8分
| Related links 関連リンク | | [Related Sites of this company] 【この会社の関連サイト】 | Contact お問い合せ先 | | TEL: 0800-603-3030 [Toll free] mobile phone ・ Also available from PHS Caller ID is not notified Please contact the "saw SUUMO (Sumo)" If it does not lead, If the real estate company TEL:0800-603-3030【通話料無料】携帯電話・PHSからもご利用いただけます 発信者番号は通知されません 「SUUMO(スーモ)を見た」と問い合わせください つながらない方、不動産会社の方は
| Building coverage, floor area ratio 建ぺい率・容積率 | | Fifty percent ・ 80% 50%・80% | Time residents 入居時期 | | Consultation 相談 | Land of the right form 土地の権利形態 | | Ownership 所有権 | Structure and method of construction 構造・工法 | | Wooden 2-story 木造2階建 | Use district 用途地域 | | Unspecified 無指定 | Overview and notices その他概要・特記事項 | | Facilities: Public Water Supply, This sewage, City gas, Building confirmation number: 132, Parking: car space 設備:公営水道、本下水、都市ガス、建築確認番号:132、駐車場:カースペース | Company profile 会社概要 | | <Mediation> Governor of Kanagawa Prefecture (3) No. 023784 (Ltd.) Beetle home Totsuka Station shop Yubinbango244-0003 Kanagawa Prefecture, Totsuka-ku, Yokohama-shi Totsuka-cho 16-1 Totsukana fourth floor <仲介>神奈川県知事(3)第023784号(株)ビートルホーム戸塚駅前店〒244-0003 神奈川県横浜市戸塚区戸塚町16-1トツカーナ4階 |
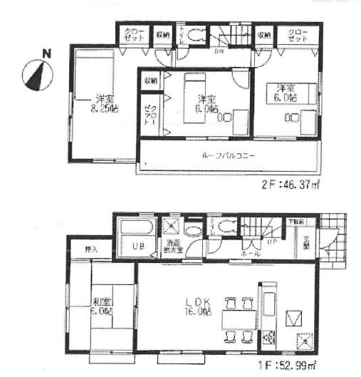
Floor plan間取り図  36,800,000 yen, 4LDK, Land area 200.86 sq m , Building area 99.36 sq m
3680万円、4LDK、土地面積200.86m2、建物面積99.36m2
Compartment figure区画図  36,800,000 yen, 4LDK, Land area 200.86 sq m , Building area 99.36 sq m
3680万円、4LDK、土地面積200.86m2、建物面積99.36m2
Location
|