New Homes » Kanto » Kanagawa Prefecture » Totsuka-ku, Yokohama-shi
 
| | Kanagawa Prefecture, Totsuka-ku, Yokohama-shi 神奈川県横浜市戸塚区 |
| Sagami Railway Izumino Line "Ryokuentoshi" walk 26 minutes 相鉄いずみ野線「緑園都市」歩26分 |
| Immediate Available, 2 along the line more accessible, Energy-saving water heaters, Super close, System kitchen, Bathroom Dryer, Yang per good, All room storage, Flat to the station, Or more before road 6m, Corner lot, Washbasin with shower, toilet 即入居可、2沿線以上利用可、省エネ給湯器、スーパーが近い、システムキッチン、浴室乾燥機、陽当り良好、全居室収納、駅まで平坦、前道6m以上、角地、シャワー付洗面台、トイレ |
| Immediate Available, 2 along the line more accessible, Energy-saving water heaters, Super close, System kitchen, Bathroom Dryer, Yang per good, All room storage, Flat to the station, Or more before road 6m, Corner lot, Washbasin with shower, Toilet 2 places, Warm water washing toilet seat, Underfloor Storage, The window in the bathroom, TV monitor interphone, Leafy residential area, Mu front building, Ventilation good, All living room flooring, Built garage, Dish washing dryer, Water filter, Three-story or more, All rooms southwestward, Flat terrain 即入居可、2沿線以上利用可、省エネ給湯器、スーパーが近い、システムキッチン、浴室乾燥機、陽当り良好、全居室収納、駅まで平坦、前道6m以上、角地、シャワー付洗面台、トイレ2ヶ所、温水洗浄便座、床下収納、浴室に窓、TVモニタ付インターホン、緑豊かな住宅地、前面棟無、通風良好、全居室フローリング、ビルトガレージ、食器洗乾燥機、浄水器、3階建以上、全室南西向き、平坦地 |
Features pickup 特徴ピックアップ | | Immediate Available / 2 along the line more accessible / Energy-saving water heaters / Super close / System kitchen / Bathroom Dryer / Yang per good / All room storage / Flat to the station / Or more before road 6m / Corner lot / Washbasin with shower / Toilet 2 places / Warm water washing toilet seat / Underfloor Storage / The window in the bathroom / TV monitor interphone / Leafy residential area / Mu front building / Ventilation good / All living room flooring / Built garage / Dish washing dryer / Water filter / All rooms southwestward / Flat terrain 即入居可 /2沿線以上利用可 /省エネ給湯器 /スーパーが近い /システムキッチン /浴室乾燥機 /陽当り良好 /全居室収納 /駅まで平坦 /前道6m以上 /角地 /シャワー付洗面台 /トイレ2ヶ所 /温水洗浄便座 /床下収納 /浴室に窓 /TVモニタ付インターホン /緑豊かな住宅地 /前面棟無 /通風良好 /全居室フローリング /ビルトガレージ /食器洗乾燥機 /浄水器 /全室南西向き /平坦地 | Event information イベント情報 | | Local sales Association (please make a reservation beforehand) schedule / Every Saturday, Sunday and public holidays time / 10:00 ~ 17:00 現地販売会(事前に必ず予約してください)日程/毎週土日祝時間/10:00 ~ 17:00 | Price 価格 | | 25,800,000 yen 2580万円 | Floor plan 間取り | | 3LDK 3LDK | Units sold 販売戸数 | | 1 units 1戸 | Land area 土地面積 | | 45.7 sq m 45.7m2 | Building area 建物面積 | | 84.25 sq m (registration), Among the first floor garage 9.66 sq m 84.25m2(登記)、うち1階車庫9.66m2 | Driveway burden-road 私道負担・道路 | | Nothing, Southwest 6.4m width 無、南西6.4m幅 | Completion date 完成時期(築年月) | | August 2013 2013年8月 | Address 住所 | | Kanagawa Prefecture, Totsuka-ku, Yokohama-shi Kamiyabe cho 神奈川県横浜市戸塚区上矢部町 | Traffic 交通 | | Sagami Railway Izumino Line "Ryokuentoshi" walk 26 minutes Sagami Railway Izumino Line "Yayoidai" walk 28 minutes Blue Line "Nakata" walk 35 minutes 相鉄いずみ野線「緑園都市」歩26分 相鉄いずみ野線「弥生台」歩28分 ブルーライン「中田」歩35分
| Related links 関連リンク | | [Related Sites of this company] 【この会社の関連サイト】 | Person in charge 担当者より | | The person in charge Moriya Satoshi Age: 30 Daigyokai experience: you will find the 10-year happily willing to enjoy you live by your together. By leveraging business history of 10 years of knowledge and experience to the full and do my best to be of service to our customers of our 担当者森谷 悟史年齢:30代業界経験:10年楽しく喜んでいただけるお住まい探しをご一緒させていただきます。業歴10年の知識と経験をフルに活用してお客様のお役に立てるようにがんばります | Contact お問い合せ先 | | TEL: 0800-808-9455 [Toll free] mobile phone ・ Also available from PHS Caller ID is not notified Please contact the "saw SUUMO (Sumo)" If it does not lead, If the real estate company TEL:0800-808-9455【通話料無料】携帯電話・PHSからもご利用いただけます 発信者番号は通知されません 「SUUMO(スーモ)を見た」と問い合わせください つながらない方、不動産会社の方は
| Building coverage, floor area ratio 建ぺい率・容積率 | | 60% ・ 200% 60%・200% | Time residents 入居時期 | | Immediate available 即入居可 | Land of the right form 土地の権利形態 | | Ownership 所有権 | Structure and method of construction 構造・工法 | | Wooden three-story (framing method) 木造3階建(軸組工法) | Use district 用途地域 | | One dwelling 1種住居 | Other limitations その他制限事項 | | Height district, Quasi-fire zones 高度地区、準防火地域 | Overview and notices その他概要・特記事項 | | Contact: Moriya Satoshi, Facilities: Public Water Supply, This sewage, Individual LPG, Parking: car space 担当者:森谷 悟史、設備:公営水道、本下水、個別LPG、駐車場:カースペース | Company profile 会社概要 | | <Mediation> Governor of Kanagawa Prefecture (7) No. Hidekazu Shoji Co., Ltd. Yubinbango231-0033 Kanagawa Prefecture medium Yokohama District No. 014900 Chojamachi 3-8-13 TK Kannai Plaza 205 <仲介>神奈川県知事(7)第014900号秀和商事(株)〒231-0033 神奈川県横浜市中区長者町3-8-13 TK関内プラザ205 |
Local appearance photo現地外観写真  Local (12 May 2013) Shooting
現地(2013年12月)撮影
Kitchenキッチン  Indoor (12 May 2013) Shooting
室内(2013年12月)撮影
Bathroom浴室  Indoor (12 May 2013) Shooting
室内(2013年12月)撮影
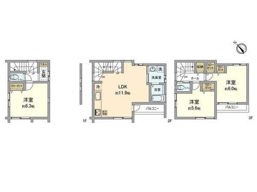
Floor plan間取り図  25,800,000 yen, 3LDK, Land area 45.7 sq m , Building area 84.25 sq m
2580万円、3LDK、土地面積45.7m2、建物面積84.25m2
Local appearance photo現地外観写真  Local (12 May 2013) Shooting
現地(2013年12月)撮影
Livingリビング  Indoor (12 May 2013) Shooting
室内(2013年12月)撮影
Kitchenキッチン  Indoor (12 May 2013) Shooting
室内(2013年12月)撮影
Non-living roomリビング以外の居室  Indoor (12 May 2013) Shooting
室内(2013年12月)撮影
Entrance玄関  Local (12 May 2013) Shooting
現地(2013年12月)撮影
Wash basin, toilet洗面台・洗面所  Indoor (12 May 2013) Shooting
室内(2013年12月)撮影
Receipt収納  Indoor (12 May 2013) Shooting
室内(2013年12月)撮影
Toiletトイレ  Indoor (12 May 2013) Shooting
室内(2013年12月)撮影
Balconyバルコニー  Local (12 May 2013) Shooting
現地(2013年12月)撮影
View photos from the dwelling unit住戸からの眺望写真  View from the site (December 2013) Shooting
現地からの眺望(2013年12月)撮影
Local appearance photo現地外観写真  Local (12 May 2013) Shooting
現地(2013年12月)撮影
Non-living roomリビング以外の居室  Indoor (12 May 2013) Shooting
室内(2013年12月)撮影
Entrance玄関  Local (12 May 2013) Shooting
現地(2013年12月)撮影
Receipt収納  Indoor (12 May 2013) Shooting
室内(2013年12月)撮影
Non-living roomリビング以外の居室  Indoor (12 May 2013) Shooting
室内(2013年12月)撮影
 Indoor (12 May 2013) Shooting
室内(2013年12月)撮影
Location
|