New Homes » Kanto » Kanagawa Prefecture » Tsurumi-ku, Yokohama City
 
| | Kanagawa Prefecture Tsurumi-ku, Yokohama City 神奈川県横浜市鶴見区 |
| Keikyu main line "Tsurumiichiba" walk 5 minutes 京急本線「鶴見市場」歩5分 |
| Keikyu main line "Tsurumiichiba" station walk 5 minutes! All room storage & 7.5 quires more Western-style is the abode to live comfortably in 2 rooms. 15 Pledge than, Conversation of the family is momentum in the face-to-face kitchen 京急本線「鶴見市場」駅徒歩5分!全居室収納&7.5帖以上の洋室が2部屋でゆったりと暮らせる住まいです。15帖超、対面式キッチンで家族の会話が弾みます |
| Corresponding to the flat-35S, 2 along the line more accessible, Or more before road 6m, LDK15 tatami mats or more, System kitchen, Face-to-face kitchen, Dish washing dryer, All room storage, Toilet 2 places, The window in the bathroom, All rooms are two-sided lighting, Super close, City gas フラット35Sに対応、2沿線以上利用可、前道6m以上、LDK15畳以上、システムキッチン、対面式キッチン、食器洗乾燥機、全居室収納、トイレ2ヶ所、浴室に窓、全室2面採光、スーパーが近い、都市ガス |
Features pickup 特徴ピックアップ | | Corresponding to the flat-35S / 2 along the line more accessible / Super close / System kitchen / All room storage / LDK15 tatami mats or more / Or more before road 6m / Face-to-face kitchen / Toilet 2 places / The window in the bathroom / Dish washing dryer / City gas / All rooms are two-sided lighting フラット35Sに対応 /2沿線以上利用可 /スーパーが近い /システムキッチン /全居室収納 /LDK15畳以上 /前道6m以上 /対面式キッチン /トイレ2ヶ所 /浴室に窓 /食器洗乾燥機 /都市ガス /全室2面採光 | Price 価格 | | 44,800,000 yen ・ 45,900,000 yen 4480万円・4590万円 | Floor plan 間取り | | 3LDK + S (storeroom) 3LDK+S(納戸) | Units sold 販売戸数 | | 2 units 2戸 | Total units 総戸数 | | 2 units 2戸 | Land area 土地面積 | | 65.35 sq m ・ 65.36 sq m (measured) 65.35m2・65.36m2(実測) | Building area 建物面積 | | 110.12 sq m (measured) 110.12m2(実測) | Driveway burden-road 私道負担・道路 | | Road width: 6.07m 道路幅:6.07m | Completion date 完成時期(築年月) | | 2013 in late November 2013年11月下旬 | Address 住所 | | Kanagawa Prefecture Tsurumi-ku, Yokohama City Ichibayamato cho 神奈川県横浜市鶴見区市場大和町 | Traffic 交通 | | Keikyu main line "Tsurumiichiba" walk 5 minutes Keikyu main line "Hatchonawate" walk 14 minutes JR Nambu Line "Kawasaki Shimmachi" walk 18 minutes 京急本線「鶴見市場」歩5分 京急本線「八丁畷」歩14分 JR南武線「川崎新町」歩18分
| Related links 関連リンク | | [Related Sites of this company] 【この会社の関連サイト】 | Person in charge 担当者より | | Personnel Ryota Nakamura Age: 20 Daigyokai experience: to come across to your satisfaction you live in the three-year customer, We will thoroughly dating. The joy of a new life in my home, Me and please feel together! * Not for each property attaches responsible for each customer 担当者中村亮太年齢:20代業界経験:3年お客様にご満足いただけるお住まいに出逢うまで、とことん付き合って参ります。マイホームでの新たな生活の喜びを、私と一緒に体感してください!*物件毎ではなくお客様毎に担当がつきます | Contact お問い合せ先 | | TEL: 0800-603-1506 [Toll free] mobile phone ・ Also available from PHS Caller ID is not notified Please contact the "saw SUUMO (Sumo)" If it does not lead, If the real estate company TEL:0800-603-1506【通話料無料】携帯電話・PHSからもご利用いただけます 発信者番号は通知されません 「SUUMO(スーモ)を見た」と問い合わせください つながらない方、不動産会社の方は
| Building coverage, floor area ratio 建ぺい率・容積率 | | Kenpei rate: 60%, Volume ratio: 200% 建ペい率:60%、容積率:200% | Time residents 入居時期 | | Consultation 相談 | Land of the right form 土地の権利形態 | | Ownership 所有権 | Structure and method of construction 構造・工法 | | Wooden three-story 木造3階建 | Use district 用途地域 | | One dwelling 1種住居 | Land category 地目 | | Residential land 宅地 | Overview and notices その他概要・特記事項 | | Contact: Ryota Nakamura, Building confirmation number: first H25SBC- Make 01172Y No. (1 Building), The H25SBC- Make 01173Y No. (Building 2) 担当者:中村亮太、建築確認番号:第H25SBC-確01172Y号(1号棟)、第H25SBC-確01173Y号(2号棟) | Company profile 会社概要 | | <Mediation> Minister of Land, Infrastructure and Transport (2) No. 007124 (Corporation) All Japan Real Estate Association (Corporation) metropolitan area real estate Fair Trade Council member (Ltd.) living life Kawasaki branch Yubinbango210-0012 Kawasaki City, Kanagawa Prefecture, Kawasaki-ku, Miyamae-cho, 2-3 living life Kawasaki building <仲介>国土交通大臣(2)第007124号(公社)全日本不動産協会会員 (公社)首都圏不動産公正取引協議会加盟(株)リビングライフ川崎支店〒210-0012 神奈川県川崎市川崎区宮前町2-3 リビングライフ川崎ビル |
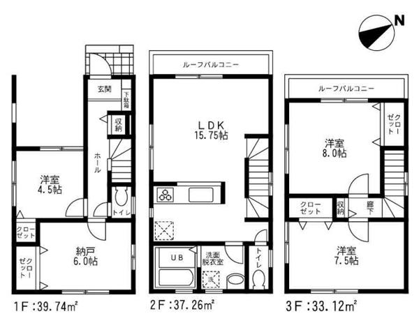
Floor plan間取り図  (1 Building), Price 45,900,000 yen, 3LDK+S, Land area 65.36 sq m , Building area 110.12 sq m
(1号棟)、価格4590万円、3LDK+S、土地面積65.36m2、建物面積110.12m2
Primary school小学校  820m to Yokohama Municipal peace elementary school
横浜市立平安小学校まで820m
 The entire compartment Figure
全体区画図
Floor plan間取り図  (Building 2), Price 44,800,000 yen, 3LDK+S, Land area 65.35 sq m , Building area 110.12 sq m
(2号棟)、価格4480万円、3LDK+S、土地面積65.35m2、建物面積110.12m2
Junior high school中学校  160m to Yokohama Municipal market Junior High School
横浜市立市場中学校まで160m
Kindergarten ・ Nursery幼稚園・保育園  619m to exciting the forest nursery
わくわくの森保育園まで619m
Park公園  699m to market the old Tokaido park
市場旧東海道公園まで699m
Hospital病院  1300m until the medical corporation Association Hisashiharukai Majima hospital
医療法人社団恒春会馬嶋病院まで1300m
Location
|