New Homes » Kanto » Kanagawa Prefecture » Tsurumi-ku, Yokohama City
 
| | Kanagawa Prefecture Tsurumi-ku, Yokohama City 神奈川県横浜市鶴見区 |
| Keikyu main line "Tsurumiichiba" walk 3 minutes 京急本線「鶴見市場」歩3分 |
| Keihin Electric Express Railway main line "Tsurumi-Ichiba Station" a 3-minute walk. All seven buildings, Floor heating is standard equipment! ! 京浜急行本線「鶴見市場駅」徒歩3分。全7棟、床暖房標準装備です!! |
| Floor heating, Face-to-face kitchen, Parking two Allowed, Warm water washing toilet seat, Bathroom Dryer, Flat to the station, Corresponding to the flat-35S, Pre-ground survey, Energy-saving water heaters, System kitchen, Yang per good, All room storage, A quiet residential area, Washbasin with shower, Toilet 2 places, Bathroom 1 tsubo or more, 2 or more sides balcony, Double-glazing, Otobasu, Underfloor Storage, The window in the bathroom, TV monitor interphone, All living room flooring, Three-story or more, Flat terrain 床暖房、対面式キッチン、駐車2台可、温水洗浄便座、浴室乾燥機、駅まで平坦、フラット35Sに対応、地盤調査済、省エネ給湯器、システムキッチン、陽当り良好、全居室収納、閑静な住宅地、シャワー付洗面台、トイレ2ヶ所、浴室1坪以上、2面以上バルコニー、複層ガラス、オートバス、床下収納、浴室に窓、TVモニタ付インターホン、全居室フローリング、3階建以上、平坦地 |
Features pickup 特徴ピックアップ | | Corresponding to the flat-35S / Pre-ground survey / Parking two Allowed / 2 along the line more accessible / Energy-saving water heaters / Super close / System kitchen / Bathroom Dryer / Yang per good / All room storage / Flat to the station / A quiet residential area / LDK15 tatami mats or more / Around traffic fewer / Washbasin with shower / Face-to-face kitchen / Toilet 2 places / Bathroom 1 tsubo or more / 2 or more sides balcony / Double-glazing / Otobasu / Warm water washing toilet seat / Underfloor Storage / The window in the bathroom / TV monitor interphone / All living room flooring / Three-story or more / Flat terrain / Floor heating フラット35Sに対応 /地盤調査済 /駐車2台可 /2沿線以上利用可 /省エネ給湯器 /スーパーが近い /システムキッチン /浴室乾燥機 /陽当り良好 /全居室収納 /駅まで平坦 /閑静な住宅地 /LDK15畳以上 /周辺交通量少なめ /シャワー付洗面台 /対面式キッチン /トイレ2ヶ所 /浴室1坪以上 /2面以上バルコニー /複層ガラス /オートバス /温水洗浄便座 /床下収納 /浴室に窓 /TVモニタ付インターホン /全居室フローリング /3階建以上 /平坦地 /床暖房 | Event information イベント情報 | | Local tours (please visitors to direct local) schedule / Every Saturday, Sunday and public holidays time / 10:30 ~ 17:00 If you wish to weekdays guidance, Please contact us in advance. 現地見学会(直接現地へご来場ください)日程/毎週土日祝時間/10:30 ~ 17:00平日のご案内をご希望の際は、事前にお問い合わせください。 | Property name 物件名 | | Libre Garden Ichibanishinaka cho リーブルガーデン市場西中町 | Price 価格 | | 41,800,000 yen ~ 44,900,000 yen 4180万円 ~ 4490万円 | Floor plan 間取り | | 4LDK 4LDK | Units sold 販売戸数 | | 6 units 6戸 | Total units 総戸数 | | 7 units 7戸 | Land area 土地面積 | | 60.49 sq m ~ 86.18 sq m (measured) 60.49m2 ~ 86.18m2(実測) | Building area 建物面積 | | 87.47 sq m ~ 102.87 sq m 87.47m2 ~ 102.87m2 | Driveway burden-road 私道負担・道路 | | 3.7m width asphalt paving Set back already 0.94 sq m ~ 7.54 sq m 3.7m幅アスファルト舗装 セットバック済0.94m2 ~ 7.54m2 | Completion date 完成時期(築年月) | | 2013 mid-December 2013年12月中旬 | Address 住所 | | Kanagawa Prefecture Tsurumi-ku, Yokohama City Ichibanishinaka cho 神奈川県横浜市鶴見区市場西中町1 | Traffic 交通 | | Keikyu main line "Tsurumiichiba" walk 3 minutes Keikyu main line "Hatchonawate" walk 15 minutes JR Keihin Tohoku Line "Tsurumi" walk 19 minutes 京急本線「鶴見市場」歩3分 京急本線「八丁畷」歩15分 JR京浜東北線「鶴見」歩19分
| Person in charge 担当者より | | [Regarding this property.] Flat in a 3-minute walk from the station. In a quiet residential area, It is the location of a feeling of opening. 【この物件について】駅から平坦に徒歩3分。閑静な住宅街で、開放感のある立地です。 | Contact お問い合せ先 | | (Ltd.) Rial Estate ShigeruKen TEL: 0800-805-6518 [Toll free] mobile phone ・ Also available from PHS Caller ID is not notified Please contact the "saw SUUMO (Sumo)" If it does not lead, If the real estate company (株)リアルエステート秀建TEL:0800-805-6518【通話料無料】携帯電話・PHSからもご利用いただけます 発信者番号は通知されません 「SUUMO(スーモ)を見た」と問い合わせください つながらない方、不動産会社の方は
| Most price range 最多価格帯 | | 41 million yen (3 units) 4100万円台(3戸) | Building coverage, floor area ratio 建ぺい率・容積率 | | Building coverage 60%, Volume rate of 160% 建ぺい率60%、容積率160% | Time residents 入居時期 | | Consultation 相談 | Land of the right form 土地の権利形態 | | Ownership 所有権 | Structure and method of construction 構造・工法 | | Wooden three-story (framing method) 木造3階建(軸組工法) | Use district 用途地域 | | One dwelling 1種住居 | Land category 地目 | | Residential land 宅地 | Other limitations その他制限事項 | | Height district, Quasi-fire zones, Shade limit Yes 高度地区、準防火地域、日影制限有 | Overview and notices その他概要・特記事項 | | Building confirmation number: first 13UDI2T Ken 00541 other 建築確認番号:第13UDI2T建00541他 | Company profile 会社概要 | | <Marketing alliance (agency)> Kanagawa Governor (2) No. 025470 (Ltd.) Rial Estate ShigeruKen Yubinbango210-0806 Kawasaki City, Kanagawa Prefecture, Kawasaki-ku, Nakajima 3-5-11 <販売提携(代理)>神奈川県知事(2)第025470号(株)リアルエステート秀建〒210-0806 神奈川県川崎市川崎区中島3-5-11 |
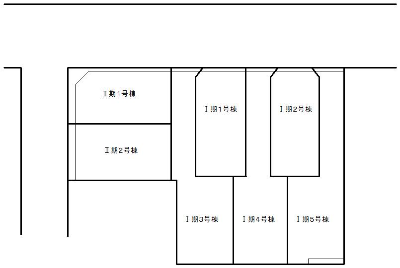
The entire compartment Figure全体区画図  Compartment figure
区画図
Local photos, including front road前面道路含む現地写真  Ground improvement already
地盤改良済
 Local (10 May 2013) Shooting
現地(2013年10月)撮影
 Local (September 2013) Shooting
現地(2013年9月)撮影
Livingリビング  Indoor (December 1, 2013) Shooting
室内(2013年12月1日)撮影
Bathroom浴室  ・ Tub of Relief hard insulation specifications heat. Saving energy costs and the number of times also to reduce reheating. ・ Cleaning folding two of Ease door because packing Les
・熱をにがしにくい断熱仕様の浴槽。追い炊き回数も減らせて光熱費を節約。・パッキンレスなのでお掃除がラクラクな2枚折りドア
View photos from the dwelling unit住戸からの眺望写真  View (3rd floor)
眺望(3階)
Wash basin, toilet洗面台・洗面所  ・ Do not use a heater, Mirror that does not fog over the entire surface → electric bill zero, Worry of forgetting to turn off is also unnecessary ・ Hard to break artificial marble ball ・ Stylish tray, such as cosmetic accessories is definitive
・ヒーターを使わない、全面くもらないミラー →電気代ゼロ、消し忘れの心配も不要です・割れにくい人造大理石ボール・化粧小物などがおけるスタイリッシュなトレイ
Same specifications photo (kitchen)同仕様写真(キッチン)  Design with a sophisticated and stylish design design and ease of use
洗練されたスタイリッシュなデザインデザイン性と使いやすさを備えた設計
Floor plan間取り図  Compartment figure
区画図
 Compartment figure
区画図
 Compartment figure
区画図
 Compartment figure
区画図
 Compartment figure
区画図
 Compartment figure
区画図
Cooling and heating ・ Air conditioning冷暖房・空調設備  Clean air 24-hour ventilation system which performs plan to the discharge of the supply air and dirty air. By moisture easily accumulate room also forced ventilation at all times, It is also effective in the suppression of condensation and mold.
きれいな空気の給気と汚れた空気の排出を計画的に行う24時間換気システム。湿気のたまりやすい部屋も常時強制的に換気することによって、結露やカビの抑制にも効果的です。
Power generation ・ Hot water equipment発電・温水設備  Enhance the thermal efficiency by effectively utilizing the waste heat that occurs when a boil water, If "energy-saving water heater" Eco Jaws, Herase the amount of gas, Since CO2 emissions also become less of, It can contribute to the prevention of global warming, In addition you can also save gas rates.
お湯を沸かすときに発生する排熱を有効利用して熱効率を高めた、“省エネ給湯器”エコジョーズなら、ガスの使用量を減らせ、CO2の排出も少なくなるので、地球温暖化防止に貢献でき、さらにガス料金の節約もできます。
Other Equipmentその他設備  Residential insulation performance will depend largely on the performance of the opening. Door that has been adopted in this property is the thermal insulation specifications to frame. Also, The window glass, Greatly solar heat and ultraviolet light to adopt a thermal barrier Low-e double glass that can be cut, To achieve a reduction of good indoor environment and the heating and cooling load
住宅の断熱性能は開口部の性能に大きく左右されます。当物件で採用しているドアは枠まで断熱仕様です。また、窓ガラスには、日射熱や紫外線を大幅にカットできる遮熱Low-e複層ガラスを採用し、良好な室内環境と冷暖房負荷の軽減を実現します
 The entire compartment Figure
全体区画図
Location
|