New Homes » Kanto » Kanagawa Prefecture » Tsurumi-ku, Yokohama City
 
| | Kanagawa Prefecture Tsurumi-ku, Yokohama City 神奈川県横浜市鶴見区 |
| Tokyu Toyoko Line "Kikuna" walk 22 minutes 東急東横線「菊名」歩22分 |
| Weekly, soil, Sunday local sales held in! ! Please come directly to the local! ! Holding time 13 pm ~ Seventeen 毎週、土、日曜日現地販売開催中!!直接現地にお越し下さい!! 開催時間13時 ~ 17時 |
| Corresponding to the flat-35S, System kitchen, Bathroom Dryer, All room storage, Or more before road 6m, Corner lot, 2 along the line more accessibleese-style room, Idyll, Washbasin with shower, Toilet 2 places, 2-story, Double-glazing, Otobasu, Warm water washing toilet seat, Underfloor Storage, The window in the bathroom, TV monitor interphone, Ventilation good, All living room flooring, Southwestward, Water filter, Flat terrain フラット35Sに対応、システムキッチン、浴室乾燥機、全居室収納、前道6m以上、角地、2沿線以上利用可、和室、田園風景、シャワー付洗面台、トイレ2ヶ所、2階建、複層ガラス、オートバス、温水洗浄便座、床下収納、浴室に窓、TVモニタ付インターホン、通風良好、全居室フローリング、南西向き、浄水器、平坦地 |
Features pickup 特徴ピックアップ | | Corresponding to the flat-35S / 2 along the line more accessible / System kitchen / Bathroom Dryer / All room storage / Or more before road 6m / Corner lot / Japanese-style room / Idyll / Washbasin with shower / Toilet 2 places / 2-story / Double-glazing / Otobasu / Warm water washing toilet seat / Underfloor Storage / The window in the bathroom / TV monitor interphone / Ventilation good / All living room flooring / Southwestward / Water filter / Flat terrain フラット35Sに対応 /2沿線以上利用可 /システムキッチン /浴室乾燥機 /全居室収納 /前道6m以上 /角地 /和室 /田園風景 /シャワー付洗面台 /トイレ2ヶ所 /2階建 /複層ガラス /オートバス /温水洗浄便座 /床下収納 /浴室に窓 /TVモニタ付インターホン /通風良好 /全居室フローリング /南西向き /浄水器 /平坦地 | Event information イベント情報 | | Local sales meetings (please visitors to direct local) schedule / Every Saturday and Sunday time / 13:00 ~ 17:00 現地販売会(直接現地へご来場ください)日程/毎週土日時間/13:00 ~ 17:00 | Property name 物件名 | | Libre Garden Tsurumi Shishigaya All one building リーブルガーデン鶴見 獅子ヶ谷 全1棟 | Price 価格 | | 39,800,000 yen 3980万円 | Floor plan 間取り | | 4LDK 4LDK | Units sold 販売戸数 | | 1 units 1戸 | Total units 総戸数 | | 1 units 1戸 | Land area 土地面積 | | 99.16 sq m (registration) 99.16m2(登記) | Building area 建物面積 | | 78.97 sq m (measured) 78.97m2(実測) | Driveway burden-road 私道負担・道路 | | 0.11 sq m , North 6.9m width (contact the road width 12.6m), Southwest 4.9m width (contact the road width 10m) 0.11m2、北6.9m幅(接道幅12.6m)、南西4.9m幅(接道幅10m) | Completion date 完成時期(築年月) | | December 2013 2013年12月 | Address 住所 | | Kanagawa Prefecture Tsurumi-ku, Yokohama City Shishigaya 3-21-16 神奈川県横浜市鶴見区獅子ケ谷3-21-16 | Traffic 交通 | | Tokyu Toyoko Line "Kikuna" walk 22 minutes Keikyū Main Line "Keikyu Tsurumi" bus 13 minutes Lion months TaniAyumi 7 minutes Tokyu Toyoko Line "Tsunashima" 10 minutes Lion months TaniAyumi 7 minutes by bus 東急東横線「菊名」歩22分 京急本線「京急鶴見」バス13分獅子ヶ谷歩7分 東急東横線「綱島」バス10分獅子ヶ谷歩7分
| Contact お問い合せ先 | | (Ltd.) Miyadai TEL: 0800-601-4725 [Toll free] mobile phone ・ Also available from PHS Caller ID is not notified Please contact the "saw SUUMO (Sumo)" If it does not lead, If the real estate company (株)ミヤダイTEL:0800-601-4725【通話料無料】携帯電話・PHSからもご利用いただけます 発信者番号は通知されません 「SUUMO(スーモ)を見た」と問い合わせください つながらない方、不動産会社の方は
| Expenses 諸費用 | | Town council fee: 300 yen / Month 町会費:300円/月 | Building coverage, floor area ratio 建ぺい率・容積率 | | Fifty percent ・ 80% 50%・80% | Time residents 入居時期 | | Consultation 相談 | Land of the right form 土地の権利形態 | | Ownership 所有権 | Structure and method of construction 構造・工法 | | Wooden 2-story (2 × 4 construction method) 木造2階建(2×4工法) | Use district 用途地域 | | Urbanization control area 市街化調整区域 | Other limitations その他制限事項 | | Setback: upon 0.11 sq m , Residential land development construction regulation area, Height ceiling Yes, Site area minimum Yes, Shade limit Yes セットバック:要0.11m2、宅地造成工事規制区域、高さ最高限度有、敷地面積最低限度有、日影制限有 | Overview and notices その他概要・特記事項 | | Facilities: Public Water Supply, This sewage, Individual LPG, Building Permits reason: control area per building permit requirements, Building confirmation number: first 13UDI2T Ken 00969, Parking: car space 設備:公営水道、本下水、個別LPG、建築許可理由:調整区域につき建築許可要、建築確認番号:第13UDI2T建00969、駐車場:カースペース | Company profile 会社概要 | | <Marketing alliance (agency)> Kanagawa Governor (6) No. 017839 (Ltd.) Miyadai Yubinbango224-0066 Yokohama-shi, Kanagawa-ku, Tsuzuki Mihanayama 34-9 <販売提携(代理)>神奈川県知事(6)第017839号(株)ミヤダイ〒224-0066 神奈川県横浜市都筑区見花山34-9 |
 Local guide map
現地案内図
 Rendering
完成予想図
 Local (September 2013) Shooting
現地(2013年9月)撮影
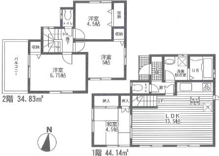
Floor plan間取り図  39,800,000 yen, 4LDK, Land area 99.16 sq m , Building area 78.97 sq m 4LDK Two-story
3980万円、4LDK、土地面積99.16m2、建物面積78.97m2 4LDK 2階建て
Compartment figure区画図  39,800,000 yen, 4LDK, Land area 99.16 sq m , Corner lot of building area 78.97 sq m 2 surface road
3980万円、4LDK、土地面積99.16m2、建物面積78.97m2 2面道路の角地
Otherその他  Local guide map
現地案内図
 Local detailed view
現地詳細図
Same specifications photo (kitchen)同仕様写真(キッチン)  Design with Panasonic system Kitchen sophisticated stylish design design and ease of use
パナソニック製のシステムキッチン洗練されたスタイリッシュなデザインデザイン性と使いやすさを備えた設計
Other Equipmentその他設備  In everyday life, Take Ya climbing stairs, Standing Sitting of toilet, Burden on the legs is a big operation. Also to the safety of others are on the handrail, There is a big role in reducing the burden on the body.
日常生活で、階段の昇り降りや、トイレの立ち座りは、足腰への負担が大きな動作です。手すりには安全のほかにも、身体への負担の軽減という大きな役割があります。
Cooling and heating ・ Air conditioning冷暖房・空調設備  Clean air 24-hour ventilation system which performs plan to the discharge of the supply air and dirty air. By moisture easily accumulate room also forced ventilation at all times, It is also effective in the suppression of condensation and mold.
きれいな空気の給気と汚れた空気の排出を計画的に行う24時間換気システム。湿気のたまりやすい部屋も常時強制的に換気することによって、結露やカビの抑制にも効果的です。
Other Equipmentその他設備  Single-sided grill ・ Outer flame formula. Sensor was mounted in width 600mm all of crater, "Cooking oil overheating prevention device", "Extinction safety device", Three of the safety function of the "forgetting to turn off fire function" has been standard equipment
片面焼グリル・外炎式。幅600mmすべての火口にセンサーを搭載し、「調理油過熱防止装置」、「立ち消え安全装置」、「消し忘れ消火機能」の3つの安全機能を標準装備しています
 Residential insulation performance will depend largely on the performance of the opening. Door that has been adopted in this property is the thermal insulation specifications to frame. Also, The window glass, Greatly solar heat and ultraviolet light to adopt a thermal barrier Low-e double glass that can be cut, To achieve a reduction of good indoor environment and the heating and cooling load.
住宅の断熱性能は開口部の性能に大きく左右されます。当物件で採用しているドアは枠まで断熱仕様です。また、窓ガラスには、日射熱や紫外線を大幅にカットできる遮熱Low-e複層ガラスを採用し、良好な室内環境と冷暖房負荷の軽減を実現します。
 In this listing is, Using a ceramic system of siding on the outer wall finish, Has adopted the "outer wall ventilation method" in which a ventilation space between the wall and the outer wall coverings. This, The moisture of the wall inside the body can be efficiently released into the outside air, To suppress the internal condensation, You can improve the durability. In the summer, The ventilation of the air layer, You can also expect the thermal barrier effect.
当物件では、外壁仕上材に窯業系のサイディングを使用して、壁と外壁仕上材の間に通気スペースを設けた「外壁通気工法」を採用しています。これにより、壁体内の湿気を効率よく外気に放出でき、内部結露を抑制して、耐久性を向上させることができます。夏季には、通気層内の通風により、遮熱効果も期待できます。
Power generation ・ Hot water equipment発電・温水設備  Enhance the thermal efficiency by effectively utilizing the waste heat that occurs when a boil eco Jaws hot water, If "energy-saving water heater" Eco Jaws, Herase the amount of gas, Since CO2 emissions also become less of, It can contribute to the prevention of global warming, In addition you can also save gas rates.
エコジョーズお湯を沸かすときに発生する排熱を有効利用して熱効率を高めた、“省エネ給湯器”エコジョーズなら、ガスの使用量を減らせ、CO2の排出も少なくなるので、地球温暖化防止に貢献でき、さらにガス料金の節約もできます。
Location
|