New Homes » Kanto » Kanagawa Prefecture » Tsurumi-ku, Yokohama City
 
| | Kanagawa Prefecture Tsurumi-ku, Yokohama City 神奈川県横浜市鶴見区 |
| JR Keihin Tohoku Line "Tsurumi" walk 17 minutes JR京浜東北線「鶴見」歩17分 |
| House nestled in a quiet residential area with elegance. I'm happy to car built-in garage. With floor heating in the living room. Questions to the Republic of home sales! ! 気品のある閑静な住宅街に佇む住まい。愛車にうれしいビルトインガレージ。リビングに床暖房付き。ご質問は共和住宅販売へ!! |
| Face-to-face kitchen, LDK15 tatami mats or more, Floor heating, Yang per good, All living room flooring, Around traffic fewer, Pre-ground survey, 2 along the line more accessible, Energy-saving water heaters, Facing south, System kitchen, Bathroom Dryer, All room storage, Siemens south road, A quiet residential area, Washbasin with shower, Toilet 2 places, Bathroom 1 tsubo or more, 2 or more sides balcony, South balcony, Double-glazing, Warm water washing toilet seat, The window in the bathroom, TV monitor interphone, Ventilation good, Built garage, Dish washing dryer, Water filter, Three-story or more, City gas, All rooms are two-sided lighting, Flat terrain 対面式キッチン、LDK15畳以上、床暖房、陽当り良好、全居室フローリング、周辺交通量少なめ、地盤調査済、2沿線以上利用可、省エネ給湯器、南向き、システムキッチン、浴室乾燥機、全居室収納、南側道路面す、閑静な住宅地、シャワー付洗面台、トイレ2ヶ所、浴室1坪以上、2面以上バルコニー、南面バルコニー、複層ガラス、温水洗浄便座、浴室に窓、TVモニタ付インターホン、通風良好、ビルトガレージ、食器洗乾燥機、浄水器、3階建以上、都市ガス、全室2面採光、平坦地 |
Features pickup 特徴ピックアップ | | Pre-ground survey / 2 along the line more accessible / Energy-saving water heaters / Facing south / System kitchen / Bathroom Dryer / Yang per good / All room storage / Siemens south road / A quiet residential area / LDK15 tatami mats or more / Around traffic fewer / Washbasin with shower / Face-to-face kitchen / Toilet 2 places / Bathroom 1 tsubo or more / 2 or more sides balcony / South balcony / Double-glazing / Warm water washing toilet seat / The window in the bathroom / TV monitor interphone / Ventilation good / All living room flooring / Built garage / Three-story or more / City gas / All rooms are two-sided lighting / Flat terrain / Floor heating / Readjustment land within 地盤調査済 /2沿線以上利用可 /省エネ給湯器 /南向き /システムキッチン /浴室乾燥機 /陽当り良好 /全居室収納 /南側道路面す /閑静な住宅地 /LDK15畳以上 /周辺交通量少なめ /シャワー付洗面台 /対面式キッチン /トイレ2ヶ所 /浴室1坪以上 /2面以上バルコニー /南面バルコニー /複層ガラス /温水洗浄便座 /浴室に窓 /TVモニタ付インターホン /通風良好 /全居室フローリング /ビルトガレージ /3階建以上 /都市ガス /全室2面採光 /平坦地 /床暖房 /区画整理地内 | Price 価格 | | 34,300,000 yen ・ 36,300,000 yen 3430万円・3630万円 | Floor plan 間取り | | 3LDK + S (storeroom) ・ 4LDK 3LDK+S(納戸)・4LDK | Units sold 販売戸数 | | 2 units 2戸 | Total units 総戸数 | | 5 units 5戸 | Land area 土地面積 | | 65.55 sq m ・ 78.13 sq m (registration) 65.55m2・78.13m2(登記) | Building area 建物面積 | | 101.43 sq m ・ 110.91 sq m (registration) 101.43m2・110.91m2(登記) | Completion date 完成時期(築年月) | | October 2013 2013年10月 | Address 住所 | | Kanagawa Prefecture Tsurumi-ku, Yokohama City Higashiteraonakadai 神奈川県横浜市鶴見区東寺尾中台 | Traffic 交通 | | JR Keihin Tohoku Line "Tsurumi" walk 17 minutes Keikyu main line "Kagetsuen before" walk 20 minutes JR Tsurumi line "national road" walking 23 minutes JR京浜東北線「鶴見」歩17分 京急本線「花月園前」歩20分 JR鶴見線「国道」歩23分
| Related links 関連リンク | | [Related Sites of this company] 【この会社の関連サイト】 | Person in charge 担当者より | | [Regarding this property.] Tsurumi-ku,, Kanagawa-ku,, Of Kohoku-ku Property is to Ltd. Republic of home sales. Non-public listing because it is community-based it is also rich. We offer the perfect property will let us know what you would like conditions. 【この物件について】鶴見区、神奈川区、港北区の物件は株式会社共和住宅販売へ。地域密着型なので未公開物件情報も豊富です。ご希望条件をお聞かせいただきピッタリな物件をご提案いたします。 | Contact お問い合せ先 | | TEL: 0800-602-5414 [Toll free] mobile phone ・ Also available from PHS Caller ID is not notified Please contact the "saw SUUMO (Sumo)" If it does not lead, If the real estate company TEL:0800-602-5414【通話料無料】携帯電話・PHSからもご利用いただけます 発信者番号は通知されません 「SUUMO(スーモ)を見た」と問い合わせください つながらない方、不動産会社の方は
| Building coverage, floor area ratio 建ぺい率・容積率 | | Kenpei rate: 60%, Volume ratio: 150% 建ペい率:60%、容積率:150% | Time residents 入居時期 | | Immediate available 即入居可 | Land of the right form 土地の権利形態 | | Ownership 所有権 | Structure and method of construction 構造・工法 | | Wooden three-story 木造3階建て | Use district 用途地域 | | Two mid-high 2種中高 | Overview and notices その他概要・特記事項 | | Building confirmation number: 04958 建築確認番号:04958 | Company profile 会社概要 | | <Mediation> Governor of Kanagawa Prefecture (1) No. 027655 (Ltd.) Republic of home sales Yubinbango221-0014 Kanagawa Prefecture, Kanagawa-ku, Yokohama-shi Irie 1-33-28 <仲介>神奈川県知事(1)第027655号(株)共和住宅販売〒221-0014 神奈川県横浜市神奈川区入江1-33-28 |
Livingリビング  Indoor shooting
室内撮影
Local appearance photo現地外観写真  Local shooting
現地撮影
Kitchenキッチン  Indoor shooting
室内撮影
Floor plan間取り図  (4), Price 34,300,000 yen, 3LDK+S, Land area 78.13 sq m , Building area 101.43 sq m
(4)、価格3430万円、3LDK+S、土地面積78.13m2、建物面積101.43m2
Livingリビング  Indoor shooting
室内撮影
Bathroom浴室  Indoor shooting
室内撮影
Non-living roomリビング以外の居室  Indoor shooting
室内撮影
Entrance玄関  Local shooting
現地撮影
Wash basin, toilet洗面台・洗面所  Indoor shooting
室内撮影
Toiletトイレ  Indoor shooting
室内撮影
Local photos, including front road前面道路含む現地写真  Local shooting
現地撮影
Balconyバルコニー  Local shooting
現地撮影
Supermarketスーパー  854m to Sotetsu Rosen Higashiterao shop
そうてつローゼン東寺尾店まで854m
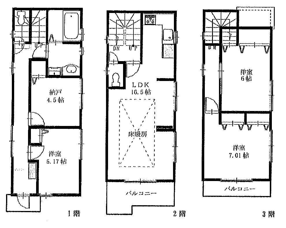
Floor plan間取り図  (5), Price 36,300,000 yen, 4LDK, Land area 65.55 sq m , Building area 110.91 sq m
(5)、価格3630万円、4LDK、土地面積65.55m2、建物面積110.91m2
Convenience storeコンビニ  367m to FamilyMart Higashiteraonakadai shop
ファミリーマート東寺尾中台店まで367m
Primary school小学校  549m to Yokohama Municipal Dongtai Elementary School
横浜市立東台小学校まで549m
Hospital病院  631m until the medical corporation peace meeting peace hospital
医療法人平和会平和病院まで631m
Park公園  1396m to Shirahata park
白幡公園まで1396m
Location
|