New Homes » Kanto » Kanagawa Prefecture » Tsurumi-ku, Yokohama City
 
| | Kanagawa Prefecture Tsurumi-ku, Yokohama City 神奈川県横浜市鶴見区 |
| JR Keihin Tohoku Line "Tsurumi" walk 17 minutes JR京浜東北線「鶴見」歩17分 |
| 2-wire 2 Station Available in a good location ・ 20 year warranty ground by House Warranty ・ Car space two possible (by car) ・ During preview accepted per building completed already, Please feel free to contact us. 2線2駅利用可の好立地・ハウスワランティによる地盤20年保証付・カースペース2台可(車種による)・建物完成済につき内覧受付中、お気軽にお問い合わせください。 |
| With solar power system ・ Good day every south-facing dwelling unit ・ The kitchen is adopted face-to-face kitchen bouncing of conversation ・ Anshin call 24 hours a day, 365 days a year telephone support service 24 corresponding housing ・ Livable 2-story, 4LDK 太陽光発電システム付・南向き住戸につき日当たり良好・キッチンは会話の弾む対面キッチン採用・24時間365日電話対応サービスのあんしんコール24対応住宅・暮らしやすい2階建、4LDK |
Features pickup 特徴ピックアップ | | Year Available / Parking two Allowed / 2 along the line more accessible / Facing south / All room storage / A quiet residential area / LDK15 tatami mats or more / Face-to-face kitchen / Toilet 2 places / 2-story / 2 or more sides balcony / South balcony / Zenshitsuminami direction / Underfloor Storage / The window in the bathroom / City gas / All rooms are two-sided lighting 年内入居可 /駐車2台可 /2沿線以上利用可 /南向き /全居室収納 /閑静な住宅地 /LDK15畳以上 /対面式キッチン /トイレ2ヶ所 /2階建 /2面以上バルコニー /南面バルコニー /全室南向き /床下収納 /浴室に窓 /都市ガス /全室2面採光 | Property name 物件名 | | "On the day you can please visit! Parking two Allowed! South-facing dwelling unit! "Arujina Tsurumi ・ Suwazaka all two buildings 《当日ご見学可能です!駐車2台可!南向き住戸!》アルジーナ鶴見・諏訪坂全2棟 | Price 価格 | | 51,800,000 yen 5180万円 | Floor plan 間取り | | 4LDK 4LDK | Units sold 販売戸数 | | 1 units 1戸 | Land area 土地面積 | | 124.14 sq m (37.55 tsubo) (Registration) 124.14m2(37.55坪)(登記) | Building area 建物面積 | | 98.95 sq m (29.93 tsubo) (Registration) 98.95m2(29.93坪)(登記) | Completion date 完成時期(築年月) | | 2013 end of October 2013年10月末 | Address 住所 | | Kanagawa Prefecture Tsurumi-ku, Yokohama City Suwazaka 神奈川県横浜市鶴見区諏訪坂 | Traffic 交通 | | JR Keihin Tohoku Line "Tsurumi" walk 17 minutes Keikyū Main Line "Keikyu Tsurumi" walk 19 minutes Keikyu main line "Tsurumiichiba" walk 31 minutes JR京浜東北線「鶴見」歩17分 京急本線「京急鶴見」歩19分 京急本線「鶴見市場」歩31分
| Person in charge 担当者より | | We are dedicating personnel system for each person in charge customers. 担当者お客様毎に専属担当者制です。 | Contact お問い合せ先 | | TEL: 0800-603-7498 [Toll free] mobile phone ・ Also available from PHS Caller ID is not notified Please contact the "saw SUUMO (Sumo)" If it does not lead, If the real estate company TEL:0800-603-7498【通話料無料】携帯電話・PHSからもご利用いただけます 発信者番号は通知されません 「SUUMO(スーモ)を見た」と問い合わせください つながらない方、不動産会社の方は
| Building coverage, floor area ratio 建ぺい率・容積率 | | Building coverage: 50%, Volume ratio: 100% 建ぺい率:50%、容積率:100% | Time residents 入居時期 | | Consultation 相談 | Land of the right form 土地の権利形態 | | Ownership 所有権 | Use district 用途地域 | | One low-rise 1種低層 | Other limitations その他制限事項 | | Residential land development construction regulation area, Height district, Quasi-fire zones, Site area minimum Yes 宅地造成工事規制区域、高度地区、準防火地域、敷地面積最低限度有 | Overview and notices その他概要・特記事項 | | The person in charge: is dedicating personnel system for each customer. 担当者:お客様毎に専属担当者制です。 | Company profile 会社概要 | | <Mediation> Kanagawa Governor (2) the first 026,326 No. Century 21 Global Home Co., Ltd. Sales Division 1 Yubinbango221-0825 Kanagawa Prefecture, Kanagawa-ku, Yokohama-shi Sorimachi 4-37-3 Nissin building Yokohama Sorimachi first floor ・ Second floor <仲介>神奈川県知事(2)第026326号センチュリー21グローバルホーム(株)営業1課〒221-0825 神奈川県横浜市神奈川区反町4-37-3 日伸ビル横浜反町1階・2階 |
Livingリビング  B Building Indoor (November 15, 2013) Shooting
B号棟 室内(2013年11月15日)撮影
Local appearance photo現地外観写真  A Building Local (November 15, 2013) Shooting
A号棟 現地(2013年11月15日)撮影
 Panoramic view Local (November 15, 2013) Shooting
全景 現地(2013年11月15日)撮影
Livingリビング  2013 October 22, shooting A Building
2013年10月22日撮影 A号棟
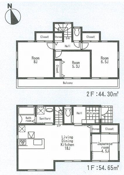
Floor plan間取り図  (A Building), Price 51,800,000 yen, 4LDK, Land area 124.14 sq m , Building area 98.95 sq m
(A号棟)、価格5180万円、4LDK、土地面積124.14m2、建物面積98.95m2
Livingリビング  A Building Indoor (November 15, 2013) Shooting
A号棟 室内(2013年11月15日)撮影
Bathroom浴室  A Building Indoor (November 15, 2013) Shooting
A号棟 室内(2013年11月15日)撮影
Kitchenキッチン  2013 October 22, shooting B Building
2013年10月22日撮影 B号棟
Non-living roomリビング以外の居室  A Building Indoor (November 15, 2013) Shooting
A号棟 室内(2013年11月15日)撮影
Wash basin, toilet洗面台・洗面所  A Building Indoor (November 15, 2013) Shooting
A号棟 室内(2013年11月15日)撮影
Receipt収納  A Building Indoor (November 15, 2013) Shooting
A号棟 室内(2013年11月15日)撮影
Toiletトイレ  A Building Indoor (November 15, 2013) Shooting
A号棟 室内(2013年11月15日)撮影
Parking lot駐車場  A Building Local (November 15, 2013) Shooting
A号棟 現地(2013年11月15日)撮影
Balconyバルコニー  A Building Local (November 15, 2013) Shooting
A号棟 現地(2013年11月15日)撮影
 The entire compartment Figure
全体区画図
Non-living roomリビング以外の居室  A Building Indoor (November 15, 2013) Shooting
A号棟 室内(2013年11月15日)撮影
Receipt収納  A Building Indoor (November 15, 2013) Shooting
A号棟 室内(2013年11月15日)撮影
Non-living roomリビング以外の居室  A Building Indoor (November 15, 2013) Shooting
A号棟 室内(2013年11月15日)撮影
Receipt収納  A Building Indoor (November 15, 2013) Shooting
A号棟 室内(2013年11月15日)撮影
 A Building Indoor (November 15, 2013) Shooting
A号棟 室内(2013年11月15日)撮影
 A Building Indoor (November 15, 2013) Shooting
A号棟 室内(2013年11月15日)撮影
Location
|