New Homes » Kanto » Kanagawa Prefecture » Tsurumi-ku, Yokohama City
 
| | Kanagawa Prefecture Tsurumi-ku, Yokohama City 神奈川県横浜市鶴見区 |
| JR Keihin Tohoku Line "Tsurumi" bus 9 minutes Sotetsu Rosen before walk 4 minutes JR京浜東北線「鶴見」バス9分そうてつローゼン前歩4分 |
| Popular Baba! Your garden house nestled in a quiet residential area! Whole building is also available also spacious space parking 3 cars of the plan building since more than 30 square meters land! ! 人気の馬場!閑静な住宅街に佇むお庭付き住宅!全棟が土地30坪以上なので建物も広々空間駐車3台分のプランもございます!! |
| ◇ 2-storey, 4LDK ◇ south-facing LDK ◇ garden house ◇ parking two, 3 units can be ◇ rich storage ◇ spacious balcony ◇ face-to-face kitchen, Under the floor with storage ◇ flat 35S corresponding housing ◇2階建て、4LDK◇南向きLDK◇庭付き住宅◇駐車2台、3台可能◇豊富な収納◇広々バルコニー◇対面式キッチン、床下収納付き◇フラット35S対応住宅 |
Features pickup 特徴ピックアップ | | Corresponding to the flat-35S / Pre-ground survey / Parking two Allowed / Parking three or more possible / 2 along the line more accessible / LDK20 tatami mats or more / Super close / It is close to the city / Facing south / System kitchen / Bathroom Dryer / Yang per good / All room storage / A quiet residential area / Around traffic fewer / Corner lot / Japanese-style room / Shaping land / Washbasin with shower / Face-to-face kitchen / Wide balcony / Toilet 2 places / Bathroom 1 tsubo or more / 2-story / South balcony / Double-glazing / Zenshitsuminami direction / Warm water washing toilet seat / Underfloor Storage / The window in the bathroom / TV monitor interphone / Leafy residential area / Mu front building / Ventilation good / All living room flooring / Good view / Walk-in closet / All room 6 tatami mats or more / Water filter / City gas / Storeroom / All rooms are two-sided lighting / Located on a hill / A large gap between the neighboring house / roof balcony / Flat terrain / Readjustment land within フラット35Sに対応 /地盤調査済 /駐車2台可 /駐車3台以上可 /2沿線以上利用可 /LDK20畳以上 /スーパーが近い /市街地が近い /南向き /システムキッチン /浴室乾燥機 /陽当り良好 /全居室収納 /閑静な住宅地 /周辺交通量少なめ /角地 /和室 /整形地 /シャワー付洗面台 /対面式キッチン /ワイドバルコニー /トイレ2ヶ所 /浴室1坪以上 /2階建 /南面バルコニー /複層ガラス /全室南向き /温水洗浄便座 /床下収納 /浴室に窓 /TVモニタ付インターホン /緑豊かな住宅地 /前面棟無 /通風良好 /全居室フローリング /眺望良好 /ウォークインクロゼット /全居室6畳以上 /浄水器 /都市ガス /納戸 /全室2面採光 /高台に立地 /隣家との間隔が大きい /ルーフバルコニー /平坦地 /区画整理地内 | Price 価格 | | 45,300,000 yen ~ 49,800,000 yen 4530万円 ~ 4980万円 | Floor plan 間取り | | 3LDK + S (storeroom) ・ 4LDK 3LDK+S(納戸)・4LDK | Units sold 販売戸数 | | 5 units 5戸 | Total units 総戸数 | | 5 units 5戸 | Land area 土地面積 | | 106.52 sq m ~ 151.61 sq m (32.22 tsubo ~ 45.86 tsubo) (Registration) 106.52m2 ~ 151.61m2(32.22坪 ~ 45.86坪)(登記) | Building area 建物面積 | | 96.05 sq m ~ 99.37 sq m (29.05 tsubo ~ 30.05 tsubo) (Registration) 96.05m2 ~ 99.37m2(29.05坪 ~ 30.05坪)(登記) | Driveway burden-road 私道負担・道路 | | Road width: 5.02m ~ 5.03m 道路幅:5.02m ~ 5.03m | Completion date 完成時期(築年月) | | 2014 end of March plan 2014年3月末予定 | Address 住所 | | Kanagawa Prefecture Tsurumi-ku, Yokohama City Baba 4 神奈川県横浜市鶴見区馬場4 | Traffic 交通 | | JR Keihin Tohoku Line "Tsurumi" bus 9 minutes Sotetsu Rosen before walk 4 minutes Keikyū Main Line "Keikyu Tsurumi" bus 9 minutes Sotetsu Rosen before walk 4 minutes Keikyu main line "Kagetsuen before" walk 24 minutes JR京浜東北線「鶴見」バス9分そうてつローゼン前歩4分 京急本線「京急鶴見」バス9分そうてつローゼン前歩4分 京急本線「花月園前」歩24分
| Related links 関連リンク | | [Related Sites of this company] 【この会社の関連サイト】 | Person in charge 担当者より | | [Regarding this property.] Kanagawa-ku, ・ Tsurumi-ku, the property of the Corporation Republic of home sales if it is a thing. It owns unlisted property number. Please tell us your desired conditions. We offer the property to suit you. 【この物件について】神奈川区・鶴見区の物件の事なら株式会社共和住宅販売へ。未公開物件多数保有しております。 ご希望条件をお聞かせ下さい。あなたに合う物件をご提案致します。 | Contact お問い合せ先 | | TEL: 0800-602-5414 [Toll free] mobile phone ・ Also available from PHS Caller ID is not notified Please contact the "saw SUUMO (Sumo)" If it does not lead, If the real estate company TEL:0800-602-5414【通話料無料】携帯電話・PHSからもご利用いただけます 発信者番号は通知されません 「SUUMO(スーモ)を見た」と問い合わせください つながらない方、不動産会社の方は
| Building coverage, floor area ratio 建ぺい率・容積率 | | Kenpei rate: 50%, Volume ratio: 100% 建ペい率:50%、容積率:100% | Time residents 入居時期 | | Consultation 相談 | Land of the right form 土地の権利形態 | | Ownership 所有権 | Structure and method of construction 構造・工法 | | Wooden 2-story 木造2階建 | Use district 用途地域 | | One low-rise 1種低層 | Land category 地目 | | Residential land 宅地 | Overview and notices その他概要・特記事項 | | Building confirmation number: 0012211 建築確認番号:0012211 | Company profile 会社概要 | | <Mediation> Governor of Kanagawa Prefecture (1) No. 027655 (Ltd.) Republic of home sales Yubinbango221-0014 Kanagawa Prefecture, Kanagawa-ku, Yokohama-shi Irie 1-33-28 <仲介>神奈川県知事(1)第027655号(株)共和住宅販売〒221-0014 神奈川県横浜市神奈川区入江1-33-28 |
Local appearance photo現地外観写真  Local shooting
現地撮影
 Local shooting
現地撮影
Local photos, including front road前面道路含む現地写真  Local shooting
現地撮影
Floor plan間取り図  (1), Price 45,300,000 yen, 3LDK+S, Land area 106.53 sq m , Building area 96.05 sq m
(1)、価格4530万円、3LDK+S、土地面積106.53m2、建物面積96.05m2
Supermarketスーパー  309m to Sotetsu Rosen Higashiterao shop
そうてつローゼン東寺尾店まで309m
 The entire compartment Figure
全体区画図
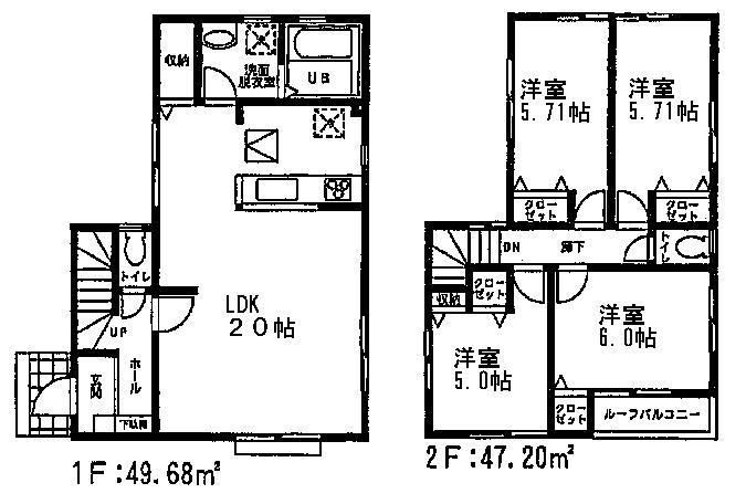
Floor plan間取り図  (2), Price 46,500,000 yen, 4LDK, Land area 106.53 sq m , Building area 96.88 sq m
(2)、価格4650万円、4LDK、土地面積106.53m2、建物面積96.88m2
Home centerホームセンター  (Ltd.) Shimachu Co., Ltd. to Yokohama 1076m
(株)島忠横浜店まで1076m
Floor plan間取り図  (3), Price 48,800,000 yen, 4LDK, Land area 106.52 sq m , Building area 99.36 sq m
(3)、価格4880万円、4LDK、土地面積106.52m2、建物面積99.36m2
Primary school小学校  On the Yokohama Municipal Terao to elementary school 586m
横浜市立上寺尾小学校まで586m
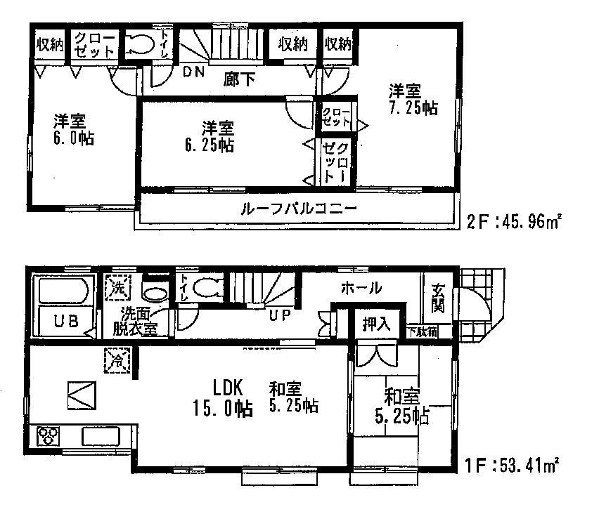
Floor plan間取り図  (4), Price 49,800,000 yen, 4LDK, Land area 113.01 sq m , Building area 99.37 sq m
(4)、価格4980万円、4LDK、土地面積113.01m2、建物面積99.37m2
 (5), Price 47,800,000 yen, 4LDK, Land area 151.61 sq m , Building area 98.95 sq m
(5)、価格4780万円、4LDK、土地面積151.61m2、建物面積98.95m2
Location
|