New Homes » Kanto » Kanagawa Prefecture » Tsurumi-ku, Yokohama City
 
| | Kanagawa Prefecture Tsurumi-ku, Yokohama City 神奈川県横浜市鶴見区 |
| Tokyu Toyoko Line "Kikuna" walk 17 minutes 東急東横線「菊名」歩17分 |
| 2-wire 2 Station Available! 2-story is the birth !! building of the station walk 17 minutes of quiet flat residential area to day ventilation good 3 room + LDK + loft 8.64 Pledge ・ Residential peace of mind in the 10-year ground warranty. 2線2駅利用可!駅徒歩17分の閑静な平坦住宅街に日当り通風良好な3部屋+LDK+ロフト8.64帖の2階建が誕生!!建物・地盤10年保証で安心の住宅です。 |
| ■ Station walk 17 minutes ■ 2-wire 2 Station Available ■ Commuting shopping convenient ■ A quiet residential area ■ Day ventilation good ◎ building ・ 10-year ground guarantee ◎ large loft (Pledge 8.64) ◎ electric shutter ◎ entrance card key ◎ entrance human sensor ◎ dishwasher ・ Water purifier with system kitchen ◎ with bathroom dryer with system bus ◎ bathroom TV ◎ other well-equipped ・ specification ■駅徒歩17分■2線2駅利用可■通勤通学買物至便■閑静な住宅地■日当り通風良好◎建物・地盤10年保証◎大型ロフト付(8.64帖)◎電動シャッター◎玄関カードキー◎玄関人感センサー◎食洗機・浄水器付システムキッチン◎浴室乾燥機付システムバス◎浴室TV付◎その他充実の設備・仕様 |
Features pickup 特徴ピックアップ | | Pre-ground survey / 2 along the line more accessible / Fiscal year Available / System kitchen / Bathroom Dryer / A quiet residential area / Around traffic fewer / Washbasin with shower / Face-to-face kitchen / Bathroom 1 tsubo or more / 2-story / 2 or more sides balcony / Double-glazing / Warm water washing toilet seat / loft / TV with bathroom / Underfloor Storage / The window in the bathroom / TV monitor interphone / Ventilation good / All living room flooring / Dish washing dryer / Water filter / City gas / All rooms are two-sided lighting / Flat terrain 地盤調査済 /2沿線以上利用可 /年度内入居可 /システムキッチン /浴室乾燥機 /閑静な住宅地 /周辺交通量少なめ /シャワー付洗面台 /対面式キッチン /浴室1坪以上 /2階建 /2面以上バルコニー /複層ガラス /温水洗浄便座 /ロフト /TV付浴室 /床下収納 /浴室に窓 /TVモニタ付インターホン /通風良好 /全居室フローリング /食器洗乾燥機 /浄水器 /都市ガス /全室2面採光 /平坦地 | Event information イベント情報 | | Local tours (Please be sure to ask in advance) schedule / During the public time / 10:00 ~ 17:30 現地見学会(事前に必ずお問い合わせください)日程/公開中時間/10:00 ~ 17:30 | Price 価格 | | 29,800,000 yen 2980万円 | Floor plan 間取り | | 3LDK + S (storeroom) 3LDK+S(納戸) | Units sold 販売戸数 | | 1 units 1戸 | Total units 総戸数 | | 1 units 1戸 | Land area 土地面積 | | 68.76 sq m (20.79 square meters) 68.76m2(20.79坪) | Building area 建物面積 | | 68.75 sq m (20.79 square meters) 68.75m2(20.79坪) | Driveway burden-road 私道負担・道路 | | Nothing, Northeast 4m width 無、北東4m幅 | Completion date 完成時期(築年月) | | February 2014 2014年2月 | Address 住所 | | Kanagawa Prefecture Tsurumi-ku, Yokohama City Baba 1 神奈川県横浜市鶴見区馬場1 | Traffic 交通 | | Tokyu Toyoko Line "Kikuna" walk 17 minutes JR Keihin Tohoku Line "Tsurumi" bus 17 minutes cotton Uchida to walk 5 minutes Tokyu Toyoko Line "Kikuna" bus 4 minutes cotton Uchida to walk 5 minutes 東急東横線「菊名」歩17分 JR京浜東北線「鶴見」バス17分わたうちだに歩5分 東急東横線「菊名」バス4分わたうちだに歩5分
| Related links 関連リンク | | [Related Sites of this company] 【この会社の関連サイト】 | Person in charge 担当者より | | Rep Kageyama Tomoyuki Age: 30 Daigyokai experience: we deal with in seven years around the Kawasaki Yokohama. It and the surrounding environment of the area, Of course, please feel free to contact us any thing is if there is a thing that was worrisome for the property. Thank you. 担当者影山 智行年齢:30代業界経験:7年横浜川崎を中心に扱っております。エリアの事や周辺環境、もちろん物件について気になったことがあればどんなことでもお気軽にご相談ください。宜しくお願い致します。 | Contact お問い合せ先 | | TEL: 0800-603-9830 [Toll free] mobile phone ・ Also available from PHS Caller ID is not notified Please contact the "saw SUUMO (Sumo)" If it does not lead, If the real estate company TEL:0800-603-9830【通話料無料】携帯電話・PHSからもご利用いただけます 発信者番号は通知されません 「SUUMO(スーモ)を見た」と問い合わせください つながらない方、不動産会社の方は
| Building coverage, floor area ratio 建ぺい率・容積率 | | 60% ・ Hundred percent 60%・100% | Time residents 入居時期 | | 1 month after the contract 契約後1ヶ月 | Land of the right form 土地の権利形態 | | Ownership 所有権 | Structure and method of construction 構造・工法 | | Wooden 2-story (framing method) 木造2階建(軸組工法) | Use district 用途地域 | | One low-rise 1種低層 | Other limitations その他制限事項 | | Quasi-fire zones 準防火地域 | Overview and notices その他概要・特記事項 | | Contact: Kageyama Tomoyuki, Facilities: Public Water Supply, This sewage, City gas, Building confirmation number: No. 13KAK Ken確 04995, Parking: car space 担当者:影山 智行、設備:公営水道、本下水、都市ガス、建築確認番号:第13KAK建確04995号、駐車場:カースペース | Company profile 会社概要 | | <Mediation> Governor of Kanagawa Prefecture (1) No. 027350 (Ltd.) Fast home Yubinbango223-0053 Yokohama-shi, Kanagawa-ku, Kohoku Tsunashimanishi 1-2-9 <仲介>神奈川県知事(1)第027350号(株)ファーストホーム〒223-0053 神奈川県横浜市港北区綱島西1-2-9 |
Same specifications photos (appearance)同仕様写真(外観)  Appearance - the same construction company construction cases
外観-同施工会社施工例
Compartment figure区画図  29,800,000 yen, 3LDK + S (storeroom), Land area 68.76 sq m , Building area 68.75 sq m
2980万円、3LDK+S(納戸)、土地面積68.76m2、建物面積68.75m2
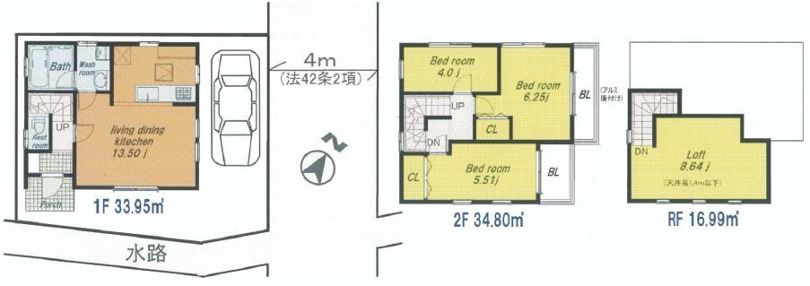
Floor plan間取り図  29,800,000 yen, 3LDK + S (storeroom), Land area 68.76 sq m , Building area 68.75 sq m 3 room + LDK, In addition loft Pledge 8.64
2980万円、3LDK+S(納戸)、土地面積68.76m2、建物面積68.75m2 3部屋+LDK、さらにロフトは8.64帖
Same specifications photos (appearance)同仕様写真(外観)  Car space - the same construction company construction cases
カースペース-同施工会社施工例
Same specifications photos (living)同仕様写真(リビング)  Living - the same construction company construction cases
リビング-同施工会社施工例
Same specifications photo (bathroom)同仕様写真(浴室)  System bus (bathroom dryer ・ Bathroom with TV) - the same specification
システムバス(浴室乾燥機・浴室TV付)-同仕様
Same specifications photo (kitchen)同仕様写真(キッチン)  Dishwasher ・ Water purifier with system kitchen - the same specification
食洗機・浄水器付システムキッチン-同仕様
Primary school小学校  460m to Yokohama Municipal Baba Elementary School
横浜市立馬場小学校まで460m
Same specifications photos (Other introspection)同仕様写真(その他内観)  Shower dresser - the same specification
シャワードレッサー-同仕様
Same specifications photos (living)同仕様写真(リビング)  Living - the same construction company construction cases
リビング-同施工会社施工例
Junior high school中学校  1147m to Yokohama Municipal Kaminomiya junior high school
横浜市立上の宮中学校まで1147m
Same specifications photos (Other introspection)同仕様写真(その他内観)  Remote control with shower toilet - the same specification
リモコン付シャワートイレ-同仕様
Same specifications photos (living)同仕様写真(リビング)  Living - the same construction company construction cases
リビング-同施工会社施工例
Supermarketスーパー  652m to Super Sunrise
スーパーサンライズまで652m
Same specifications photos (Other introspection)同仕様写真(その他内観)  Western-style - the same construction company construction cases
洋室-同施工会社施工例
Convenience storeコンビニ  735m to Seven-Eleven Yokohama Kitaterao 7-chome
セブンイレブン横浜北寺尾7丁目店まで735m
Same specifications photos (Other introspection)同仕様写真(その他内観)  Western-style - the same construction company construction cases
洋室-同施工会社施工例
 Storage - the same construction company construction cases
収納-同施工会社施工例
 Storage - the same construction company construction cases
収納-同施工会社施工例
Location
|