New Homes » Kanto » Kanagawa Prefecture » Yokohama Tsuzuki-ku
 
| | Yokohama City, Kanagawa Prefecture Tsuzuki-ku 神奈川県横浜市都筑区 |
| Green Line "Kawawa town" walk 10 minutes グリーンライン「川和町」歩10分 |
| Flat 10-minute walk to the station! Bus stop a 1-minute walk! A quiet residential area! It is at home that traffic volume of the front road less small children come ally! ! 3 is also commuting and going out at the station, three-wire available of good location ◎! 駅まで平坦徒歩10分!バス停徒歩1分!閑静な住宅街!前面道路の交通量が少なく小さなお子様がいらっしゃるご家庭の味方です!!3駅3線利用可能の好立地で通勤やお出かけも◎! |
| ○ 3 Station 3-wire Available ○ quiet residential area ● 10-year building warranty ● Flat 35 corresponding housing ● enhancement of equipment ・ specification ・ Living floor heating ・ Dishwasher system Kitchen ・ Shower Dresser ・ Shower toilet ・ Bathroom drying heater ○3駅3線利用可○閑静な住宅街●建物10年保証●フラット35対応住宅●充実の設備・仕様 ・リビング床暖房 ・食洗機付システムキッチン ・シャワードレッサー ・シャワートイレ ・浴室乾燥暖房機 |
Features pickup 特徴ピックアップ | | Measures to conserve energy / Corresponding to the flat-35S / Pre-ground survey / 2 along the line more accessible / Fiscal year Available / System kitchen / Bathroom Dryer / All room storage / Flat to the station / A quiet residential area / LDK15 tatami mats or more / Around traffic fewer / Shaping land / Washbasin with shower / Toilet 2 places / Bathroom 1 tsubo or more / 2-story / South balcony / Double-glazing / Warm water washing toilet seat / loft / Underfloor Storage / The window in the bathroom / TV monitor interphone / All living room flooring / Dish washing dryer / Water filter / Living stairs / City gas / All rooms are two-sided lighting / Flat terrain / Floor heating 省エネルギー対策 /フラット35Sに対応 /地盤調査済 /2沿線以上利用可 /年度内入居可 /システムキッチン /浴室乾燥機 /全居室収納 /駅まで平坦 /閑静な住宅地 /LDK15畳以上 /周辺交通量少なめ /整形地 /シャワー付洗面台 /トイレ2ヶ所 /浴室1坪以上 /2階建 /南面バルコニー /複層ガラス /温水洗浄便座 /ロフト /床下収納 /浴室に窓 /TVモニタ付インターホン /全居室フローリング /食器洗乾燥機 /浄水器 /リビング階段 /都市ガス /全室2面採光 /平坦地 /床暖房 | Event information イベント情報 | | Local guide Board (Please be sure to ask in advance) schedule / During the public time / 10:00 ~ 17:30 guidance of the model house is also available. Please feel free to contact. (Stock) in the first home is in real estate Campaign. Please feel free to contact us for more information. 現地案内会(事前に必ずお問い合わせください)日程/公開中時間/10:00 ~ 17:30モデルハウスのご案内も可能です。お気軽にご連絡ください。(株)ファーストホームでは不動産キャンペーン開催中です。詳細はお気軽にお問い合わせください。 | Price 価格 | | 36,850,000 yen ・ 42,850,000 yen 3685万円・4285万円 | Floor plan 間取り | | 3LDK ・ 4LDK 3LDK・4LDK | Units sold 販売戸数 | | 2 units 2戸 | Total units 総戸数 | | 2 units 2戸 | Land area 土地面積 | | 73.5 sq m ・ 103.1 sq m 73.5m2・103.1m2 | Building area 建物面積 | | 79.48 sq m ・ 99.36 sq m 79.48m2・99.36m2 | Completion date 完成時期(築年月) | | February 2014 late schedule 2014年2月下旬予定 | Address 住所 | | Yokohama City, Kanagawa Prefecture Tsuzuki-ku Kawawa cho 神奈川県横浜市都筑区川和町 | Traffic 交通 | | Green Line "Kawawa town" walk 10 minutes Denentoshi Tokyu "Ichigao" 10 minutes Kawawa cho, walk 1 minute bus JR Yokohama Line "Zhongshan" 15 minutes Kawawa cho, walk 1 minute bus グリーンライン「川和町」歩10分 東急田園都市線「市が尾」バス10分川和町歩1分 JR横浜線「中山」バス15分川和町歩1分
| Related links 関連リンク | | [Related Sites of this company] 【この会社の関連サイト】 | Person in charge 担当者より | | Rep Kageyama Tomoyuki Age: 30 Daigyokai experience: we deal with in seven years around the Kawasaki Yokohama. It and the surrounding environment of the area, Of course, please feel free to contact us any thing is if there is a thing that was worrisome for the property. Thank you. 担当者影山 智行年齢:30代業界経験:7年横浜川崎を中心に扱っております。エリアの事や周辺環境、もちろん物件について気になったことがあればどんなことでもお気軽にご相談ください。宜しくお願い致します。 | Contact お問い合せ先 | | TEL: 0800-603-9830 [Toll free] mobile phone ・ Also available from PHS Caller ID is not notified Please contact the "saw SUUMO (Sumo)" If it does not lead, If the real estate company TEL:0800-603-9830【通話料無料】携帯電話・PHSからもご利用いただけます 発信者番号は通知されません 「SUUMO(スーモ)を見た」と問い合わせください つながらない方、不動産会社の方は
| Building coverage, floor area ratio 建ぺい率・容積率 | | Kenpei rate: 50% ・ 60%, Volume ratio: 100% ・ 200% 建ペい率:50%・60%、容積率:100%・200% | Time residents 入居時期 | | 1 month after the contract 契約後1ヶ月 | Land of the right form 土地の権利形態 | | Ownership 所有権 | Structure and method of construction 構造・工法 | | Wooden 2-story 木造2階建 | Use district 用途地域 | | One low-rise, One dwelling 1種低層、1種住居 | Land category 地目 | | Residential land 宅地 | Other limitations その他制限事項 | | Height district, Quasi-fire zones 高度地区、準防火地域 | Overview and notices その他概要・特記事項 | | Contact: Kageyama Tomoyuki, Building confirmation number: first H25SBC- Make 00251Y No. 担当者:影山 智行、建築確認番号:第H25SBC-確00251Y号 | Company profile 会社概要 | | <Mediation> Governor of Kanagawa Prefecture (1) No. 027350 (Ltd.) Fast home Yubinbango223-0053 Yokohama-shi, Kanagawa-ku, Kohoku Tsunashimanishi 1-2-9 <仲介>神奈川県知事(1)第027350号(株)ファーストホーム〒223-0053 神奈川県横浜市港北区綱島西1-2-9 |
Model house photoモデルハウス写真  Same house builders construction cases
同ハウスメーカー施工例
Otherその他  Same house builders construction cases
同ハウスメーカー施工例
Same specifications photo (bathroom)同仕様写真(浴室)  System kitchen - with a bathroom dryer
システムキッチン-浴室乾燥機付
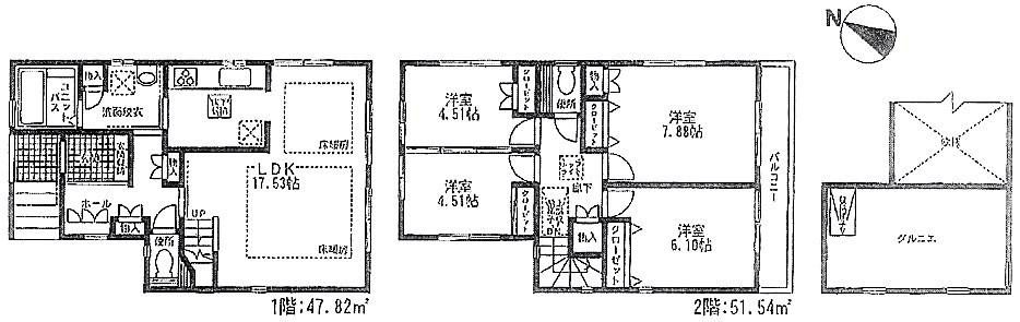
Floor plan間取り図  (B Building), Price 42,850,000 yen, 4LDK, Land area 103.1 sq m , Building area 99.36 sq m
(B号棟)、価格4285万円、4LDK、土地面積103.1m2、建物面積99.36m2
Kitchenキッチン  Same house builders construction cases
同ハウスメーカー施工例
Wash basin, toilet洗面台・洗面所  Same house builders construction cases
同ハウスメーカー施工例
Primary school小学校  697m to Yokohama City Tachikawa sum Elementary School
横浜市立川和小学校まで697m
Other introspectionその他内観  Same house builders construction cases
同ハウスメーカー施工例
Model house photoモデルハウス写真  The House Studio three-story construction cases
同ハウスメーカー3階建施工例
The entire compartment Figure全体区画図  Flat 10-minute walk from the train station! Bus stop a 1-minute walk!
駅から平坦徒歩10分!バス停徒歩1分!
Floor plan間取り図  (A Building), Price 36,850,000 yen, 3LDK, Land area 73.5 sq m , Building area 79.48 sq m
(A号棟)、価格3685万円、3LDK、土地面積73.5m2、建物面積79.48m2
Other introspectionその他内観  Same house builders construction cases
同ハウスメーカー施工例
Model house photoモデルハウス写真  The House Studio three-story construction cases
同ハウスメーカー3階建施工例
Location
|