|
|
Yokohama City, Kanagawa Prefecture Tsuzuki-ku
神奈川県横浜市都筑区
|
|
Green Line "Higashiyamata" walk 7 minutes
グリーンライン「東山田」歩7分
|
|
Yokohama subway Green Line "Higashiyamata" Station 7-minute walk from the location of the! Spacious is comfortable in the LDK The 17 quires more!
横浜地下鉄グリーンライン「東山田」駅徒歩7分の立地!17帖以上あるLDKで広々ゆったりです!
|
|
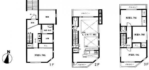
The living there 17 pledge more than it is in the kitchen is equipped with a floor heating has been enhanced is equipped with a dishwasher. The master bedroom is large closet also Living storage ・ Wealth is housed the Hall space storage. By all means, please refer to local.
17帖以上あるリビングには床暖房が付いておりキッチンには食洗機と装備が充実しております。主寝室には大型クローゼットまたリビング収納・ホールスペース収納と収納豊富です。ぜひ現地をご覧下さい。
|
Features pickup 特徴ピックアップ | | Immediate Available / System kitchen / Bathroom Dryer / Yang per good / All room storage / LDK15 tatami mats or more / Or more before road 6m / Face-to-face kitchen / Toilet 2 places / Bathroom 1 tsubo or more / 2 or more sides balcony / Southeast direction / South balcony / Double-glazing / Warm water washing toilet seat / The window in the bathroom / Ventilation good / All living room flooring / Dish washing dryer / Water filter / Three-story or more / Living stairs / City gas / All rooms are two-sided lighting / Floor heating 即入居可 /システムキッチン /浴室乾燥機 /陽当り良好 /全居室収納 /LDK15畳以上 /前道6m以上 /対面式キッチン /トイレ2ヶ所 /浴室1坪以上 /2面以上バルコニー /東南向き /南面バルコニー /複層ガラス /温水洗浄便座 /浴室に窓 /通風良好 /全居室フローリング /食器洗乾燥機 /浄水器 /3階建以上 /リビング階段 /都市ガス /全室2面採光 /床暖房 |
Price 価格 | | 41,950,000 yen 4195万円 |
Floor plan 間取り | | 4LDK 4LDK |
Units sold 販売戸数 | | 1 units 1戸 |
Total units 総戸数 | | 5 units 5戸 |
Land area 土地面積 | | 73.47 sq m (registration) 73.47m2(登記) |
Building area 建物面積 | | 118.19 sq m (registration) 118.19m2(登記) |
Driveway burden-road 私道負担・道路 | | Nothing, North 6m width 無、北6m幅 |
Completion date 完成時期(築年月) | | June 2013 2013年6月 |
Address 住所 | | Yokohama City, Kanagawa Prefecture Tsuzuki-ku Hayabuchi 3 神奈川県横浜市都筑区早渕3 |
Traffic 交通 | | Green Line "Higashiyamata" walk 7 minutes グリーンライン「東山田」歩7分
|
Related links 関連リンク | | [Related Sites of this company] 【この会社の関連サイト】 |
Person in charge 担当者より | | Responsible Shataku Kenboshi Kazuhiro Age: find the 30s your Osumai, We will be happy to help in all sincerity. 担当者宅建星 和宏年齢:30代お客様のお住い探しを、誠心誠意お手伝いさせて頂きます。 |
Contact お問い合せ先 | | TEL: 0800-603-0562 [Toll free] mobile phone ・ Also available from PHS Caller ID is not notified Please contact the "saw SUUMO (Sumo)" If it does not lead, If the real estate company TEL:0800-603-0562【通話料無料】携帯電話・PHSからもご利用いただけます 発信者番号は通知されません 「SUUMO(スーモ)を見た」と問い合わせください つながらない方、不動産会社の方は
|
Building coverage, floor area ratio 建ぺい率・容積率 | | 60% ・ 200% 60%・200% |
Time residents 入居時期 | | Immediate available 即入居可 |
Land of the right form 土地の権利形態 | | Ownership 所有権 |
Structure and method of construction 構造・工法 | | Wooden three-story 木造3階建 |
Use district 用途地域 | | Quasi-residence 準住居 |
Overview and notices その他概要・特記事項 | | Contact: star Kazuhiro, Facilities: Public Water Supply, This sewage, City gas, Parking: Garage 担当者:星 和宏、設備:公営水道、本下水、都市ガス、駐車場:車庫 |
Company profile 会社概要 | | <Mediation> Minister of Land, Infrastructure and Transport (3) No. 006,185 (one company) National Housing Industry Association (Corporation) metropolitan area real estate Fair Trade Council member Asahi Housing Corporation Yokohama Yubinbango221-0835 Yokohama-shi, Kanagawa, Kanagawa-ku, Tsuruya-cho, 2-26 - 2 fourth Yasuda Building second floor <仲介>国土交通大臣(3)第006185号(一社)全国住宅産業協会会員 (公社)首都圏不動産公正取引協議会加盟朝日住宅(株)横浜店〒221-0835 神奈川県横浜市神奈川区鶴屋町2-26ー2 第4安田ビル2階 |