New Homes » Kanto » Kanagawa Prefecture » Yokosuka
 
| | Yokosuka, Kanagawa Prefecture 神奈川県横須賀市 |
| Keikyū Kurihama Line "YRP Nobi" walk 3 minutes 京急久里浜線「YRP野比」歩3分 |
| It is a model house sale of the building conditions without selling the land of all 65 compartments. 全65区画の建築条件無し売地内のモデルハウス販売です。 |
Features pickup 特徴ピックアップ | | Parking two Allowed / LDK20 tatami mats or more / Super close / Facing south / System kitchen / Bathroom Dryer / Or more before road 6m / Washbasin with shower / Barrier-free / Bathroom 1 tsubo or more / 2-story / Underfloor Storage / TV monitor interphone / Walk-in closet / City gas / Located on a hill 駐車2台可 /LDK20畳以上 /スーパーが近い /南向き /システムキッチン /浴室乾燥機 /前道6m以上 /シャワー付洗面台 /バリアフリー /浴室1坪以上 /2階建 /床下収納 /TVモニタ付インターホン /ウォークインクロゼット /都市ガス /高台に立地 | Price 価格 | | 49,800,000 yen 4980万円 | Floor plan 間取り | | 3LDK 3LDK | Units sold 販売戸数 | | 1 units 1戸 | Total units 総戸数 | | 1 units 1戸 | Land area 土地面積 | | 150.35 sq m (registration) 150.35m2(登記) | Building area 建物面積 | | 104.74 sq m (registration) 104.74m2(登記) | Driveway burden-road 私道負担・道路 | | Nothing, North 6.2m width 無、北6.2m幅 | Completion date 完成時期(築年月) | | April 2013 2013年4月 | Address 住所 | | Yokosuka, Kanagawa Prefecture Nagasawa 3 神奈川県横須賀市長沢3 | Traffic 交通 | | Keikyū Kurihama Line "YRP Nobi" walk 3 minutes 京急久里浜線「YRP野比」歩3分
| Person in charge 担当者より | | [Regarding this property.] It is a model house sale of the building conditions without selling the land of all 65 compartments. 【この物件について】全65区画の建築条件無し売地内のモデルハウス販売です。 | Contact お問い合せ先 | | TEL: 0800-603-0006 [Toll free] mobile phone ・ Also available from PHS Caller ID is not notified Please contact the "saw SUUMO (Sumo)" If it does not lead, If the real estate company TEL:0800-603-0006【通話料無料】携帯電話・PHSからもご利用いただけます 発信者番号は通知されません 「SUUMO(スーモ)を見た」と問い合わせください つながらない方、不動産会社の方は
| Building coverage, floor area ratio 建ぺい率・容積率 | | 40% ・ 80% 40%・80% | Time residents 入居時期 | | Consultation 相談 | Land of the right form 土地の権利形態 | | Ownership 所有権 | Structure and method of construction 構造・工法 | | Wooden 2-story 木造2階建 | Use district 用途地域 | | One low-rise 1種低層 | Other limitations その他制限事項 | | Residential land development Regulation Law 宅地造成等規制法 | Overview and notices その他概要・特記事項 | | Facilities: Public Water Supply, This sewage, City gas 設備:公営水道、本下水、都市ガス | Company profile 会社概要 | | <Mediation> Governor of Kanagawa Prefecture (10) Article 010799 No. Usui Home Co., Ltd. Maborikaigan shop Yubinbango239-0801 Yokosuka, Kanagawa Prefecture Maborikaigan 2-27-7 <仲介>神奈川県知事(10)第010799号ウスイホーム(株)馬堀海岸店〒239-0801 神奈川県横須賀市馬堀海岸2-27-7 |
Local appearance photo現地外観写真  Site area 45.48 square meters
敷地面積45.48坪
Livingリビング  LDK 21.1 Pledge
LDKは21.1帖
 Dining is the part
ダイニング部分です
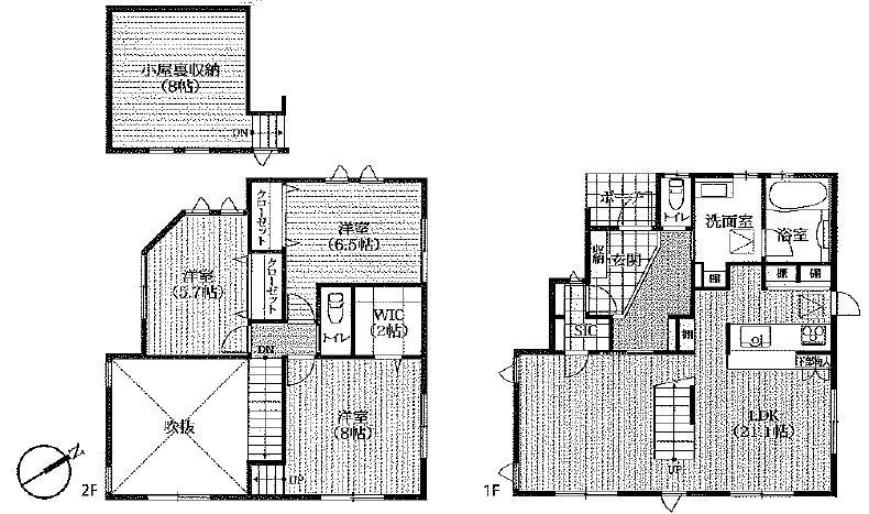
Floor plan間取り図  49,800,000 yen, 3LDK, Land area 150.35 sq m , Building area 104.74 sq m
4980万円、3LDK、土地面積150.35m2、建物面積104.74m2
Bathroom浴室  1 square meters bathroom
1坪浴室
Kitchenキッチン  Is a face-to-face type of kitchen
対面タイプのキッチンです
Non-living roomリビング以外の居室  2nd floor 5.7 Pledge bedroom
2階5.7帖寝室
Receipt収納  Shoebox next to the shoe closet
下駄箱横はシュークローゼット
 Toilet
トイレ
Other introspectionその他内観  Three sides is vanity
3面化粧台です
Otherその他  From 8 pledge bedroom to the attic storage
8帖寝室から小屋裏収納へ
Non-living roomリビング以外の居室  The second floor is 8 quires bedroom
2階8帖寝室です
Receipt収納  Shoe closet
シュークローゼット
Toiletトイレ  8 pledge Western-style of WIC
8帖洋室のWICです
Receipt収納  Attic storage is spacious 8 pledge
小屋裏収納はひろびろ8帖
Location
|