|
|
Yokosuka, Kanagawa Prefecture
神奈川県横須賀市
|
|
Keikyu main line "Uraga" 8 minutes Ayumi Koshigoe 3 minutes by bus
京急本線「浦賀」バス8分腰越歩3分
|
|
Corresponding to the flat-35S, Parking two Allowed, Immediate Available, System kitchen, Bathroom Dryer, Yang per good, All room storage, A quiet residential area, LDK15 tatami mats or more, Shaping land, Face-to-face kitchen, Toilet 2 places,
フラット35Sに対応、駐車2台可、即入居可、システムキッチン、浴室乾燥機、陽当り良好、全居室収納、閑静な住宅地、LDK15畳以上、整形地、対面式キッチン、トイレ2ヶ所、
|
|
Lintel is the introduction of new one detached houses that appeared in the 3-chome, a quiet residential area. South side is good enough per yang has been arranging two cars garden and car space, And do not let all feel a sense of oppression, such as there is a feeling of opening dense residential areas because it is also in the parking space of the adjacent land. I walk there is no hill to the bus stop because it becomes almost flat terrain. The building itself has adopted the method of construction Dairaito, You can peace of mind to you live has become a building that is more strength. Living also widely open and, I am happy to be able to cook while monitoring a small child face-to-face kitchen. Please contact us not so you can building preview. During now campaign is (see the comments section of the staff).
鴨居3丁目の閑静な住宅地内に登場した新築一戸建住宅のご紹介です。南側はお庭とカースペース2台分を配置しており十分に陽当りが良く、しかも隣地の駐車スペースにもなっておりますので開放感があり密集住宅地のような圧迫感を全く感じさせません。ほぼ平坦な地勢になりますのでバス停まで坂がなく歩けます。建物自体はダイライト工法を採用しており、より強度のある建物になっており安心してお住まいいただけます。リビングも広く開放的で、対面式キッチンも小さなお子様を監視しながら料理できるのが嬉しいですね。建物内覧できますので是非お問い合わせくださいませ。只今キャンペーン中(スタッフのコメント欄参照下さい)です。
|
Features pickup 特徴ピックアップ | | Corresponding to the flat-35S / Parking two Allowed / Immediate Available / System kitchen / Bathroom Dryer / Yang per good / All room storage / A quiet residential area / LDK15 tatami mats or more / Shaping land / Face-to-face kitchen / Toilet 2 places / Bathroom 1 tsubo or more / 2-story / South balcony / Double-glazing / Warm water washing toilet seat / Nantei / Underfloor Storage / The window in the bathroom / TV monitor interphone / All living room flooring / Water filter / City gas フラット35Sに対応 /駐車2台可 /即入居可 /システムキッチン /浴室乾燥機 /陽当り良好 /全居室収納 /閑静な住宅地 /LDK15畳以上 /整形地 /対面式キッチン /トイレ2ヶ所 /浴室1坪以上 /2階建 /南面バルコニー /複層ガラス /温水洗浄便座 /南庭 /床下収納 /浴室に窓 /TVモニタ付インターホン /全居室フローリング /浄水器 /都市ガス |
Price 価格 | | 22,800,000 yen 2280万円 |
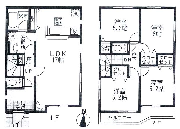
Floor plan 間取り | | 4LDK 4LDK |
Units sold 販売戸数 | | 1 units 1戸 |
Land area 土地面積 | | 289.81 sq m (87.66 tsubo) (measured), Alley-like portion: 25 sq m including, Sloped portion: 20% including 289.81m2(87.66坪)(実測)、路地状部分:25m2含、傾斜部分:20%含 |
Building area 建物面積 | | 92.34 sq m (27.93 tsubo) (Registration) 92.34m2(27.93坪)(登記) |
Driveway burden-road 私道負担・道路 | | Nothing 無 |
Completion date 完成時期(築年月) | | October 2013 2013年10月 |
Address 住所 | | Yokosuka, Kanagawa Prefecture lintel 3 神奈川県横須賀市鴨居3 |
Traffic 交通 | | Keikyu main line "Uraga" 8 minutes Ayumi Koshigoe 3 minutes by bus Keikyu main line "Uraga" walk 35 minutes Keikyu main line "Maborikaigan" walk 46 minutes 京急本線「浦賀」バス8分腰越歩3分 京急本線「浦賀」歩35分 京急本線「馬堀海岸」歩46分
|
Related links 関連リンク | | [Related Sites of this company] 【この会社の関連サイト】 |
Person in charge 担当者より | | Rep Yoshitani 担当者ヨシタニ |
Contact お問い合せ先 | | TEL: 0800-603-2474 [Toll free] mobile phone ・ Also available from PHS Caller ID is not notified Please contact the "saw SUUMO (Sumo)" If it does not lead, If the real estate company TEL:0800-603-2474【通話料無料】携帯電話・PHSからもご利用いただけます 発信者番号は通知されません 「SUUMO(スーモ)を見た」と問い合わせください つながらない方、不動産会社の方は
|
Building coverage, floor area ratio 建ぺい率・容積率 | | 40% ・ 80% 40%・80% |
Time residents 入居時期 | | Immediate available 即入居可 |
Land of the right form 土地の権利形態 | | Ownership 所有権 |
Structure and method of construction 構造・工法 | | Wooden 2-story (framing method) 木造2階建(軸組工法) |
Use district 用途地域 | | One low-rise 1種低層 |
Other limitations その他制限事項 | | Quasi-fire zones 準防火地域 |
Overview and notices その他概要・特記事項 | | Contact: Yoshitani, Facilities: Public Water Supply, This sewage, City gas, Parking: car space 担当者:ヨシタニ、設備:公営水道、本下水、都市ガス、駐車場:カースペース |
Company profile 会社概要 | | <Mediation> Governor of Kanagawa Prefecture (3) No. 022239 No. Heisei housing (Ltd.) Yubinbango238-0007 Yokosuka, Kanagawa Prefecture Wakamatsu-cho 1-18 <仲介>神奈川県知事(3)第022239号平成ハウジング(株)〒238-0007 神奈川県横須賀市若松町1-18 |