New Homes » Kanto » Kanagawa Prefecture » Yokosuka
 
| | Yokosuka, Kanagawa Prefecture 神奈川県横須賀市 |
| Keikyū Kurihama Line "Kitakurihama" bus 14 minutes Oyabe 3-chome, walk 3 minutes 京急久里浜線「北久里浜」バス14分大矢部3丁目歩3分 |
| Site area 40 square meters or more of 4LDK! Car space two garden! 敷地面積40坪以上の4LDK!カースペース2台の庭付き! |
| A quiet residential area, Parking two Allowed, garden, Bathroom 1 tsubo or more, Ventilation good, Yang per good, System kitchen, All room storage, Shaping land, Washbasin with shower, Toilet 2 places, 2-story, Double-glazing, Otobasu, Warm water washing toilet seat, Underfloor Storage, The window in the bathroom, TV monitor interphone, Leafy residential area, All living room flooring, Southwestward, Located on a hill 閑静な住宅地、駐車2台可、庭、浴室1坪以上、通風良好、陽当り良好、システムキッチン、全居室収納、整形地、シャワー付洗面台、トイレ2ヶ所、2階建、複層ガラス、オートバス、温水洗浄便座、床下収納、浴室に窓、TVモニタ付インターホン、緑豊かな住宅地、全居室フローリング、南西向き、高台に立地 |
Features pickup 特徴ピックアップ | | Parking two Allowed / System kitchen / Yang per good / All room storage / A quiet residential area / Shaping land / garden / Washbasin with shower / Toilet 2 places / Bathroom 1 tsubo or more / 2-story / Double-glazing / Otobasu / Warm water washing toilet seat / Underfloor Storage / The window in the bathroom / TV monitor interphone / Leafy residential area / Ventilation good / All living room flooring / Southwestward / Located on a hill 駐車2台可 /システムキッチン /陽当り良好 /全居室収納 /閑静な住宅地 /整形地 /庭 /シャワー付洗面台 /トイレ2ヶ所 /浴室1坪以上 /2階建 /複層ガラス /オートバス /温水洗浄便座 /床下収納 /浴室に窓 /TVモニタ付インターホン /緑豊かな住宅地 /通風良好 /全居室フローリング /南西向き /高台に立地 | Price 価格 | | 29,800,000 yen 2980万円 | Floor plan 間取り | | 4LDK 4LDK | Units sold 販売戸数 | | 1 units 1戸 | Land area 土地面積 | | 132.9 sq m (registration) 132.9m2(登記) | Building area 建物面積 | | 99.36 sq m (measured) 99.36m2(実測) | Driveway burden-road 私道負担・道路 | | Share interests 267 sq m × (1 / 10), West 4m width (contact the road width 9.6m) 共有持分267m2×(1/10)、西4m幅(接道幅9.6m) | Completion date 完成時期(築年月) | | 4 months after the contract 契約後4ヶ月 | Address 住所 | | Yokosuka, Kanagawa Prefecture Oyabe 3 神奈川県横須賀市大矢部3 | Traffic 交通 | | Keikyū Kurihama Line "Kitakurihama" bus 14 minutes Oyabe 3-chome, walk 3 minutes 京急久里浜線「北久里浜」バス14分大矢部3丁目歩3分
| Related links 関連リンク | | [Related Sites of this company] 【この会社の関連サイト】 | Person in charge 担当者より | | Rep Morita Takehiko 担当者守田 岳彦 | Contact お問い合せ先 | | (Ltd.) land Fifty Three TEL: 0800-601-5392 [Toll free] mobile phone ・ Also available from PHS Caller ID is not notified Please contact the "saw SUUMO (Sumo)" If it does not lead, If the real estate company (株)ランドフィフティスリーTEL:0800-601-5392【通話料無料】携帯電話・PHSからもご利用いただけます 発信者番号は通知されません 「SUUMO(スーモ)を見た」と問い合わせください つながらない方、不動産会社の方は
| Building coverage, floor area ratio 建ぺい率・容積率 | | 60% ・ 200% 60%・200% | Time residents 入居時期 | | 5 months after the contract 契約後5ヶ月 | Land of the right form 土地の権利形態 | | Ownership 所有権 | Structure and method of construction 構造・工法 | | Wooden 2-story 木造2階建 | Use district 用途地域 | | One dwelling 1種住居 | Overview and notices その他概要・特記事項 | | Contact: Morita Takehiko, Facilities: Public Water Supply, This sewage, Individual LPG, Building confirmation number: 000025, Parking: car space 担当者:守田 岳彦、設備:公営水道、本下水、個別LPG、建築確認番号:000025、駐車場:カースペース | Company profile 会社概要 | | <Mediation> Governor of Kanagawa Prefecture (1) No. 028400 (Ltd.) land Fifty Three Yubinbango238-0024 Yokosuka, Kanagawa Prefecture Oyabe 2-9-18 <仲介>神奈川県知事(1)第028400号(株)ランドフィフティスリー〒238-0024 神奈川県横須賀市大矢部2-9-18 |
Local appearance photo現地外観写真  Local (11 May 2013) Shooting
現地(2013年11月)撮影
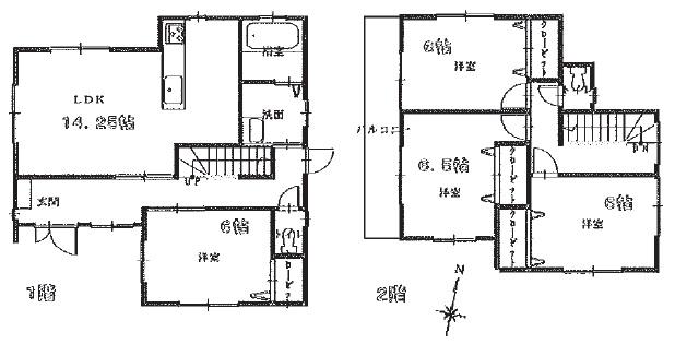
Floor plan間取り図  29,800,000 yen, 4LDK, Land area 132.9 sq m , Building area 99.36 sq m
2980万円、4LDK、土地面積132.9m2、建物面積99.36m2
Other localその他現地  View from local
現地からの眺望
Local photos, including front road前面道路含む現地写真  Local (11 May 2013) Shooting
現地(2013年11月)撮影
Parking lot駐車場  Car space two Allowed
カースペース2台可
Location
|