|
|
Zama City, Kanagawa Prefecture
神奈川県座間市
|
|
Odawara Line Odakyu "Sobudaimae" walk 8 minutes
小田急小田原線「相武台前」歩8分
|
|
"Sobudai" Station 8-minute walk ・ Car space two Allowed ・ Front road about 6m ・ Face-to-face kitchen ・ Spacious LDK ・ Mato loose
「相武台」駅徒歩8分・カースペース2台可・前面道路約6m・対面式キッチン・広々LDK・間取ゆったり
|
|
"Sobudai" Station 8-minute walk of the good location. It is very convenient for commuting. Parking spaces in the can park two car. It is encouraging even when the visitor. Garage because the front road is about 6m easy! Face-to-face kitchen housework is possible while watching the children, Guests can enjoy while taking the communication of your family. About 17 Pledge of LDK is open enough feeling. Aligned your family has become a leisurely unwind able space. Please contact us by all means.
「相武台」駅徒歩8分の好立地。通勤通学に大変便利です。駐車スペースにはお車2台駐車可能。来客時にも心強いですね。前面道路は約6mですので車庫入れも簡単!お子様を見ながら家事が可能な対面式キッチンは、ご家族のコミュニケーションを取りながら楽しく過ごせます。約17帖のLDKは開放感たっぷり。ご家族揃ってゆったりとお寛ぎいただける空間となっています。ぜひお問い合わせ下さいませ。
|
Price 価格 | | 31,800,000 yen 3180万円 |
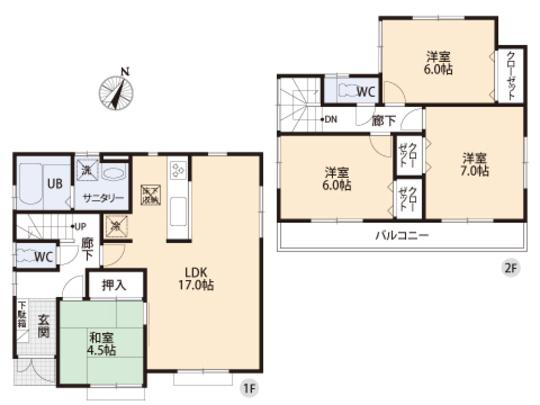
Floor plan 間取り | | 4LDK 4LDK |
Units sold 販売戸数 | | 1 units 1戸 |
Land area 土地面積 | | 131.39 sq m (measured) 131.39m2(実測) |
Building area 建物面積 | | 96.05 sq m (measured) 96.05m2(実測) |
Driveway burden-road 私道負担・道路 | | Nothing 無 |
Completion date 完成時期(築年月) | | December 2013 2013年12月 |
Address 住所 | | Zama City, Kanagawa Prefecture Sobudai 2 神奈川県座間市相武台2 |
Traffic 交通 | | Odawara Line Odakyu "Sobudaimae" walk 8 minutes 小田急小田原線「相武台前」歩8分
|
Related links 関連リンク | | [Related Sites of this company] 【この会社の関連サイト】 |
Contact お問い合せ先 | | TEL: 0800-805-6267 [Toll free] mobile phone ・ Also available from PHS Caller ID is not notified Please contact the "saw SUUMO (Sumo)" If it does not lead, If the real estate company TEL:0800-805-6267【通話料無料】携帯電話・PHSからもご利用いただけます 発信者番号は通知されません 「SUUMO(スーモ)を見た」と問い合わせください つながらない方、不動産会社の方は
|
Building coverage, floor area ratio 建ぺい率・容積率 | | 60% ・ 200% 60%・200% |
Time residents 入居時期 | | Consultation 相談 |
Land of the right form 土地の権利形態 | | Ownership 所有権 |
Structure and method of construction 構造・工法 | | Wooden 2-story 木造2階建 |
Use district 用途地域 | | One dwelling 1種住居 |
Other limitations その他制限事項 | | Land area in the alley-like portions about 40.94m2 including 土地面積内路地状部分約40.94m2含 |
Overview and notices その他概要・特記事項 | | Building confirmation number: Nos. 13-894, Parking: No 建築確認番号:13-894号、駐車場:無 |
Company profile 会社概要 | | <Mediation> Minister of Land, Infrastructure and Transport (3) The 006,183 No. housing Information Center Minamirinkan shop Seongnam Construction (Ltd.) Yubinbango242-0006 Yamato-shi, Kanagawa Minamirinkan 4-7-14 <仲介>国土交通大臣(3)第006183号住宅情報館 南林間店城南建設(株)〒242-0006 神奈川県大和市南林間4-7-14 |