New Homes » Kanto » Kanagawa Prefecture » Zama City
 
| | Zama City, Kanagawa Prefecture 神奈川県座間市 |
| Odawara Line Odakyu "Odakyusagamihara" walk 26 minutes 小田急小田原線「小田急相模原」歩26分 |
| Near children worry is elementary and junior high schools Construction housing performance with evaluation, Design house performance with evaluation, Corresponding to the flat-35S, Pre-ground survey, Seismic fit, Year Available, Parking two Allowed, 2 along the line more accessible, Bathroom Dryer, all 小中学校が近くお子様も安心 建設住宅性能評価付、設計住宅性能評価付、フラット35Sに対応、地盤調査済、耐震適合、年内入居可、駐車2台可、2沿線以上利用可、浴室乾燥機、全 |
| There is also a two car space commercial facilities are also many living environment is also good around. Odakyusagamihara ・ Minamirinkan Station 2 Station Available. Sagamino elementary school elementary school 1300m Sagami junior high 900m Sanwa Sagamigaoka 1300m Sagamidai hospital 2200m Komatsubara kindergarten 650m Construction housing performance with evaluation, Design house performance with evaluation, Corresponding to the flat-35S, Pre-ground survey, Seismic fit, Year Available, Parking two Allowed, 2 along the line more accessible, Bathroom Dryer, All room storage, Washbasin with shower, Face-to-face kitchen, Toilet 2 places, Bathroom 1 tsubo or more, Double-glazing, Warm water washing toilet seat, The window in the bathroom, TV monitor interphone, Dish washing dryer, Water filter, Three-story or more, Living stairs, Development subdivision in 周辺に商業施設も多く生活環境も良好でカースペースも2台あります。小田急相模原・南林間駅2駅利用可。相模野小学校小学校 1300m 相模中学校中学校 900m 三和相模が丘 1300m 相模台病院 2200m 小松原幼稚園 650m 建設住宅性能評価付、設計住宅性能評価付、フラット35Sに対応、地盤調査済、耐震適合、年内入居可、駐車2台可、2沿線以上利用可、浴室乾燥機、全居室収納、シャワー付洗面台、対面式キッチン、トイレ2ヶ所、浴室1坪以上、複層ガラス、温水洗浄便座、浴室に窓、TVモニタ付インターホン、食器洗乾燥機、浄水器、3階建以上、リビング階段、開発分譲地内 |
Features pickup 特徴ピックアップ | | Construction housing performance with evaluation / Design house performance with evaluation / Corresponding to the flat-35S / Pre-ground survey / Seismic fit / Year Available / Parking two Allowed / 2 along the line more accessible / Bathroom Dryer / All room storage / Washbasin with shower / Face-to-face kitchen / Toilet 2 places / Bathroom 1 tsubo or more / Double-glazing / Warm water washing toilet seat / The window in the bathroom / TV monitor interphone / Dish washing dryer / Water filter / Three-story or more / Living stairs / Development subdivision in 建設住宅性能評価付 /設計住宅性能評価付 /フラット35Sに対応 /地盤調査済 /耐震適合 /年内入居可 /駐車2台可 /2沿線以上利用可 /浴室乾燥機 /全居室収納 /シャワー付洗面台 /対面式キッチン /トイレ2ヶ所 /浴室1坪以上 /複層ガラス /温水洗浄便座 /浴室に窓 /TVモニタ付インターホン /食器洗乾燥機 /浄水器 /3階建以上 /リビング階段 /開発分譲地内 | Price 価格 | | 18,800,000 yen 1880万円 | Floor plan 間取り | | 4LDK 4LDK | Units sold 販売戸数 | | 2 units 2戸 | Land area 土地面積 | | 100 sq m (registration) 100m2(登記) | Building area 建物面積 | | 99.36 sq m (measured) 99.36m2(実測) | Driveway burden-road 私道負担・道路 | | Road width: 4m 道路幅:4m | Completion date 完成時期(築年月) | | October 2013 2013年10月 | Address 住所 | | Zama City, Kanagawa Prefecture Komatsubara 1 神奈川県座間市小松原1 | Traffic 交通 | | Odawara Line Odakyu "Odakyusagamihara" walk 26 minutes Sagami Railway Main Line "Sagamino" bus 12 Bun'ue Ayumi Koike 20 minutes Enoshima Odakyu "Minamirinkan" 8 minutes Ayumi Komatsubara 4 minutes by bus 小田急小田原線「小田急相模原」歩26分 相鉄本線「さがみ野」バス12分上小池歩20分 小田急江ノ島線「南林間」バス8分小松原歩4分
| Person in charge 担当者より | | Personnel Ikko Shibata Age: 30 Daigyokai Experience: My name is two years residence in the square of Shibata. But it is a young person, I would like to help you find the best of my home along with everyone. We strive every day we will strive to be of service to you of everyone. Thank you. 担当者柴田一行年齢:30代業界経験:2年住まいの広場の柴田と申します。若輩者ですが、皆様と一緒に最高のマイホーム探しをお手伝いしていきたいと思っています。日々努力し皆様のお役に立てるよう努めていきます。よろしくお願い致します。 | Contact お問い合せ先 | | TEL: 0800-603-8480 [Toll free] mobile phone ・ Also available from PHS Caller ID is not notified Please contact the "saw SUUMO (Sumo)" If it does not lead, If the real estate company TEL:0800-603-8480【通話料無料】携帯電話・PHSからもご利用いただけます 発信者番号は通知されません 「SUUMO(スーモ)を見た」と問い合わせください つながらない方、不動産会社の方は
| Most price range 最多価格帯 | | 18 million yen (2 units) 1800万円台(2戸) | Building coverage, floor area ratio 建ぺい率・容積率 | | Kenpei rate: 60%, Volume ratio: 200% 建ペい率:60%、容積率:200% | Time residents 入居時期 | | Consultation 相談 | Land of the right form 土地の権利形態 | | Ownership 所有権 | Structure and method of construction 構造・工法 | | Wooden 2-story 木造2階建 | Use district 用途地域 | | Industry 工業 | Land category 地目 | | field 畑 | Other limitations その他制限事項 | | Agricultural Land Act notification requirements, Irregular land 農地法届出要、不整形地 | Overview and notices その他概要・特記事項 | | Contact: Ikko Shibata, Building confirmation number: 00750 担当者:柴田一行、建築確認番号:00750 | Company profile 会社概要 | | <Mediation> Kanagawa Governor (2) Article 026 475 issue (stock) residence of square HOMESyubinbango252-0231 Sagamihara, Kanagawa Prefecture, Chuo-ku, Sagamihara 5-1-2A <仲介>神奈川県知事(2)第026475号(株)住まいの広場HOMES〒252-0231 神奈川県相模原市中央区相模原5-1-2A |
Local appearance photo現地外観写真  There is also a two car space commercial facilities are also many living environment is also good around. Odakyusagamihara ・ Minamirinkan Station 2 Station Available.
周辺に商業施設も多く生活環境も良好でカースペースも2台あります。小田急相模原・南林間駅2駅利用可。
Livingリビング  All room pair glass, Shutters standard
全居室ペアガラス、雨戸標準
Kitchenキッチン  Artificial marble counter ・ Pair type water purifier with system Kitchen
人造大理石カウンター・一対型浄水器付システムキッチン
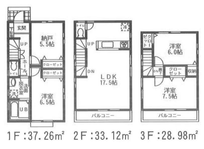
Floor plan間取り図  (3), Price 18,800,000 yen, 4LDK, Land area 100 sq m , Building area 99.36 sq m
(3)、価格1880万円、4LDK、土地面積100m2、建物面積99.36m2
 Local appearance photo
現地外観写真
Bathroom浴室  1 tsubo size ・ Barrier-free type ・ With bathroom dryer
1坪サイズ・バリアフリータイプ・浴室乾燥機付
 Non-living room
リビング以外の居室
 Entrance
玄関
 Wash basin, toilet
洗面台・洗面所
 Receipt
収納
 Toilet
トイレ
 Local photos, including front road
前面道路含む現地写真
 Balcony
バルコニー
Supermarketスーパー  Sanwa until Sagamigaoka 1300m
三和相模が丘まで1300m
 The entire compartment Figure
全体区画図
Floor plan間取り図  (2), Price 18,800,000 yen, 4LDK, Land area 100 sq m , Building area 99.36 sq m
(2)、価格1880万円、4LDK、土地面積100m2、建物面積99.36m2
 Local appearance photo
現地外観写真
 Non-living room
リビング以外の居室
 Receipt
収納
Hospital病院  Sagamidai 2200m to the hospital
相模台病院まで2200m
 Non-living room
リビング以外の居室
Location
|